4 251 700 Р 50 620 $ или 43 700

Информация о помещении и здании

2
Этаж
5
Этажность
Развернуть
Агент
+7 (916) 186-12-41
Начать чат с агентом

Офис в Москва Варшавское ш., 9 (1020 м)

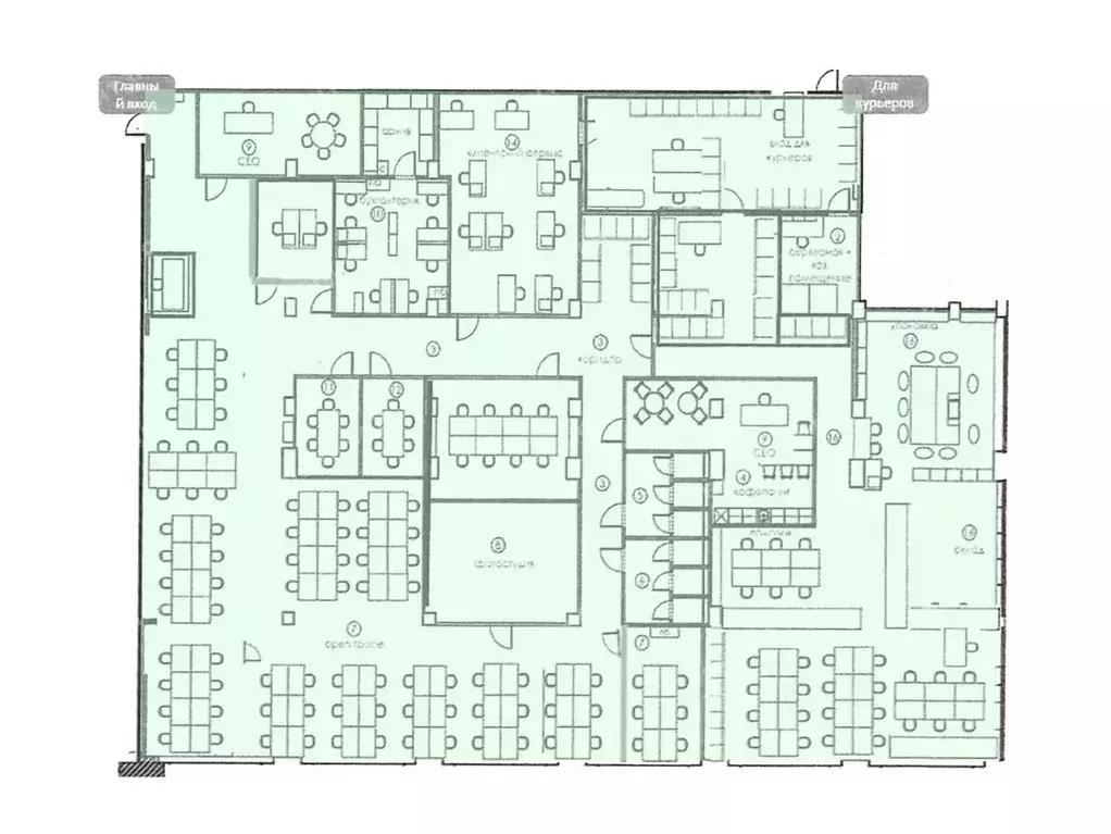
ВАЖНО: БЕЗ КОММИССИ ДЛЯ АРЕНДАТОРОВ, ПРЯМАЯ АРЕНДА ОТ СОБСТВЕННИКАБизнес-центр B+ класса Даниловская Мануфактура расположен по адресу Москва, ЮАО, район Донской, Варшавское ш., дом 9, в пешей доступности от метро Тульская (12 мин).Характеристики здания: 5 этажей, бизнес-центр расположен на первой линии, техническое оснащение и управление климатом по требованиям B+ класса, 26 налоговая.Бизнес-центр оснащен пассажирским лифтом. Есть круглосуточная возможность работы, ресепшен, контроль доступа в здание, круглосуточная охрана, видеонаблюдение, наземный паркинг, подземный паркинг, гостевой паркинг.Предлагаем к аренде офис 1020 м на 1, 2 и 3 этажах. Ваш офис в БЦ Даниловская Мануфактура может работать круглосуточно.Обратитесь за спецусловиями на аренду

Читать полностью
    Позвонить Написать
    4 251 700 Р50 620 $ или 43 700
    Агент
    +7 (916) 186-12-41
    Начать чат с агентом
    Похожие предложения
    Офис в Москва Варшавское ш., 9С1 (1020 м) - Фото 1
    Офис в Москва Варшавское ш., 9С1 (1020 м) - Фото 2
    1-й этаж, всего 6 этажей

    1126438. Предлагаем в аренду офисное помещение площадью 1019,61 кв. м, расположенное в лофт-квартале Даниловская Мануфактура Преимущества объекта: - Здание класса В+- Шаговая доступность от станции метро Тульская (10 минут пешком)- Этаж: 1-3- Помещение...
    • 1/6 эт.
    4 250 074 Р
    Агент
    +7 (938) Показать номер
    Посмотреть контакты
    Офис в Москва Холодильный пер., 3 (874 м) - Фото 1
    Офис в Москва Холодильный пер., 3 (874 м) - Фото 2
    1-й этаж, всего 5 этажей

    Офисное помещение 874 кв. м в бизнес-центре Товарищество Рябовской Мануфактуры .Округ: Южный (ЮАО). Район: Даниловский. Ближайшие станции метро: Тульская. Характеристики:- Класс: B+; - Реконструкция: Да; - Арендопригодная площадь: 42000; - Код налоговой:...
    • 1/5 эт.
    4 355 142 Р
    Агент
    +7 (915) Показать номер
    Посмотреть контакты
    Офис в Москва просп. Лихачева, 5 (1282 м) - Фото 1
    Офис в Москва просп. Лихачева, 5 (1282 м) - Фото 2
    1-й этаж, всего 6 этажей

    Экономьте до 3 недель на переезде - бесплатно разработаем планировку под вашу команду с неограниченными правками.Офис 1 282 м на 161-абочих мест* в бизнес-парке Технопарк ЗИЛ корпус Б (класс A), без комиссии. Открыты к диалогу по условиям аренды.Ключевые...
    • 1/6 эт.
    4 273 333 Р
    Агент
    +7 (980) Показать номер
    Посмотреть контакты
    Офис в Москва Холодильный пер., 3 (874 м) - Фото 1
    Офис в Москва Холодильный пер., 3 (874 м) - Фото 2
    1-й этаж, всего 3 этажа

    ЛотПредложение от Собственника Современный офис в аренду в 2-х минутах от метро тульская. Высокоразвитая инфраструктуру бизнес парка, в том числе транспортная. Функциональная планировка, высокие потолки, два обособленных входа в помещение, су, кухня,...
    • 1/3 эт.
    4 355 434 Р
    Агент
    +7 (986) Показать номер
    Посмотреть контакты
    Офис в Москва Холодильный пер., 3к1с2 (874 м) - Фото 1
    Офис в Москва Холодильный пер., 3к1с2 (874 м) - Фото 2
    1-й этаж, всего 4 этажа

    ВАЖНО: БЕЗ КОММИССИ ДЛЯ АРЕНДАТОРОВ, ПРЯМАЯ АРЕНДА ОТ СОБСТВЕННИКАБизнес-центр B+ класса Рябовская мануфактура расположен по адресу Москва, ЮАО, район Даниловский, Холодильный пер., дом3,к1стр2, в пешей доступности от метро Тульская (2 мин).Характеристики...
    • 1/4 эт.
    4 355 434 Р
    Агент
    +7 (916) Показать номер
    Посмотреть контакты

    Не нашли подходящего объявления?

    Оставьте заявку, и наши риэлторы подберут офис в районе Москвы

    (0)