Россия, Москва, Большая Новодмитровская ул., 23С1
5 533 333 Р 73 550 $ или 62 610

Информация о помещении и здании

3
Этаж
7
Этажность
Развернуть
Агент
+7 (989) 048-35-61
Начать чат с агентом

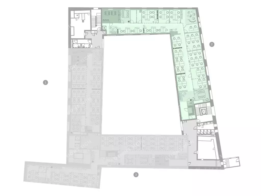
Офис в Москва Большая Новодмитровская ул., 23С1 (1496 м)

Сдается в аренду офисное помещение на 3 этаже в бизнес-центре Стрелецкая Слобода, В+ класса, который находится по адресу: ул. Большая Новодмитровская, д. 23, стр. 1. Без комиссии для Арендатора ЛОКАЦИЯ: Пешая доступность от станций метро Савёловская, Дмитровская. Удобный выезд на ТТК, Бутырскую и Новослободскую улицы.ПОМЕЩЕНИЕ: В помещении стандартная офисная отделка, кабинетная планировка. Приточно-вытяжная система вентиляции, сплит-система. В наличии наземная парковка. Арендные каникулы и ставка подлежат обсуждению. Звоните, отвечаем по будням с 09:00 до 18:00, а в другое время передадим Ваш контакт нашему менеджеру

Читать полностью
    Позвонить Написать
    5 533 333 Р73 550 $ или 62 610
    Агент
    +7 (989) 048-35-61
    Начать чат с агентом
    Похожие предложения
    Офис в Москва Ленинградский просп., 36С10 (682 м) - Фото 1
    Офис в Москва Ленинградский просп., 36С10 (682 м) - Фото 2
    4-й этаж, всего 10 этажей

    Лот: 53358pd. Сервисный оператор SOK предлагает готовые решения в одном из самых атмосферных мест Москвы ВТБ Арена . Комплекс расположен в шаговой доступности от метро Динамо, красивый маршрут через парк займет не более 8 минут. Городской квартал обладает...
    • 4/10 эт.
    5 546 934 Р
    Агент
    +7 (988) Показать номер
    Посмотреть контакты
    Офис в Москва Ветошный пер., 13 (593 м) - Фото 1
    Офис в Москва Ветошный пер., 13 (593 м) - Фото 2
    4-й этаж, всего 6 этажей

    Офисное помещение 593 кв. м в бизнес-центре Мещаниново подворье . Объект скоро освободится. Успейте забронировать на выгодных условиях. Готовность ко въезду уточняется по запросу. Округ: Центральный (ЦАО). Район: Тверской. Ближайшие станции метро: Китай-город,...
    • 4/6 эт.
    5 590 211 Р
    Агент
    +7 (915) Показать номер
    Посмотреть контакты
    Офис (1170 м) - Фото 1
    Офис (1170 м) - Фото 2
    6-й этаж, всего 12 этажей

    Сдается в долгосрочную прямую аренду офисное помещение класса B+ площадью 1170 кв. метров в недавно отреконструированном бизнес-центре Воробьёвский .Москва, ЗАО, Университетский проспект, 12Удобная локация здания:- Автомобиль: близость транспортных магистралей,...
    • 6/12 эт.
    5 574 400 Р
    Агент
    +7 (926) Показать номер
    Посмотреть контакты
    Офис в Москва Вятская ул., 27С7 (1390 м) - Фото 1
    Офис в Москва Вятская ул., 27С7 (1390 м) - Фото 2
    3-й этаж, всего 3 этажа

    РАБОТАЕМ С АГЕНТАМИ И ПЛАТИМ РЕНТАВИК— участник ассоциации агентств КОКОН. Бизнес парк Фактория расположен на своей огороженной территории. Удобный автомобильный доступ с ТТК, Ленинградского проспекта, Дмитровского шоссе. Имеется охраняемая наземная...
    • 3/3 эт.
    5 500 000 Р
    Агент
    +7 (933) Показать номер
    Посмотреть контакты
    Офис в Москва Верхняя Красносельская ул., 2/1С1 (2233 м) - Фото 1
    Офис в Москва Верхняя Красносельская ул., 2/1С1 (2233 м) - Фото 2
    2-й этаж, всего 9 этажей

    РАБОТАЕМ С АГЕНТАМИ И ПЛАТИМ РЕНТАВИК— участник ассоциации агентств КОКОН. Офисное здание находится на территории бывшей Московской обойной фабрики. Удобная транспортная и пешая доступность.Налоговая: 08. Лифты: Есть. Вентиляция: Приточно-вытяжная. Кондиционирование:...
    • 2/9 эт.
    5 582 500 Р
    Агент
    +7 (933) Показать номер
    Посмотреть контакты

    Не нашли подходящего объявления?

    Оставьте заявку, и наши риэлторы подберут офис в районе Москвы

    (0)