Россия, Москва, Старая Басманная улица, 12с1
327 000 Р 3 890 $ или 3 360

Информация о помещении и здании

1
Этаж
9
Этажность
Развернуть
Агент
+7 (930) 441-44-06
Начать чат с агентом

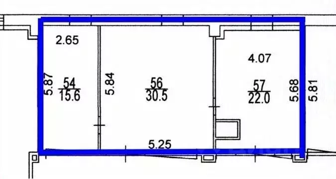
Офис (109 м)

Сдается в аренду офисное помещение на 1 этаже в жилом доме С класса, который находится по адресу: ул. Старая Басманная, д. 12, стр. 5. Без комиссии для Арендатора.ЛОКАЦИЯ:- Пешая доступность от станций метро Курская и Красные ворота.- Удобный выезд на ТТК.ПОМЕЩЕНИЕ:- Помещение с отделкой, смешанная планировка.- Естественная вентиляция, сплит-системы.- Два отдельных входа.- В наличии наземная парковка.- Арендные каникулы и ставка подлежат обсуждению.Звоните, отвечаем по будням с 09:00 до 18:00, а в другое время передадим Ваш контакт нашему менеджеру

Читать полностью
    Позвонить Написать
    327 000 Р3 890 $ или 3 360
    Агент
    +7 (930) 441-44-06
    Начать чат с агентом
    Похожие предложения
    Офис в Москва Яковоапостольский пер., 7С1 (90 м) - Фото 1
    Офис в Москва Яковоапостольский пер., 7С1 (90 м) - Фото 2
    1-й этаж, всего 5 этажей

    ЛотПредложение от Собственника Предлагается в аренду офисный блок с дизайнерским ремонтом площадью 90 кв.м, в офисном здании класса Б. Планировка офиса состоит из 3-х кабинетов, зоны ресепшн и мини кухни. Прямая аренда с предоставлением юр-адреса. Офис...
    • 1/5 эт.
    330 000 Р
    Агент
    +7 (986) Показать номер
    Посмотреть контакты
    Офис (128 м) - Фото 1
    Офис (128 м) - Фото 2
    1-й этаж, всего 22 этажа

    Бизнес-центр «Отель Панорама класса BАренда помещения площадью 128,0 кв.мCтоимость кв. метра 30000, в год, возможен торгБизнес-центр «Отель Панорамаасположен по адресу: улица Мастеркова, 4, Москва
    • 1/22 эт.
    320 000 Р
    Агент
    +7 (495) Показать номер
    Посмотреть контакты
    Офис в Москва ул. Архитектора Власова, 6 (198 м) - Фото 1
    Офис в Москва ул. Архитектора Власова, 6 (198 м) - Фото 2
    2-й этаж, всего 22 этажа

    Сдается в аренду офисное помещение на 2 этаже в жилом комплексе Вавилово, В класса, который находится по адресу: ул. Архитектора Власова, д. 6. Без комиссии для Арендатора ЛОКАЦИЯ: Пешая доступность от станций метро Профсоюзная, Новые Черемушки, Академическая....
    • 2/22 эт.
    332 648 Р
    Агент
    +7 (989) Показать номер
    Посмотреть контакты
    Офис в Москва ул. Арбат, 10 (75 м) - Фото 1
    Офис в Москва ул. Арбат, 10 (75 м) - Фото 2
    3-й этаж, всего 7 этажей

    ВАЖНО: БЕЗ КОММИССИ ДЛЯ АРЕНДАТОРОВ, ПРЯМАЯ АРЕНДА ОТ СОБСТВЕННИКАБизнес-центр A класса Мидленд Плаза расположен по адресу Москва, ЦАО, район Арбат, ул. Арбат, дом 10, в пешей доступности от метро Арбатская (4 мин).Характеристики здания: 7 этажей, бизнес-центр...
    • 3/7 эт.
    325 625 Р
    Агент
    +7 (916) Показать номер
    Посмотреть контакты
    Офис в Москва ул. Орджоникидзе, 11С3 (135 м) - Фото 1
    Офис в Москва ул. Орджоникидзе, 11С3 (135 м) - Фото 2
    3-й этаж, всего 4 этажа

    Уважаемый Арендатор, предлагаем Вам арендовать в БЦ Орджоникидзе 11 офис 135.2 м на 3 этаже на выгодных условиях.Центральное кондиционирование. Пожарная сигнализация. Интернет, телефония. Охрана. Видеонаблюдение. Система контроля доступа. Наземная парковка....
    • 3/4 эт.
    338 000 Р
    Агент
    +7 (985) Показать номер
    Посмотреть контакты

    Не нашли подходящего объявления?

    Оставьте заявку, и наши риэлторы подберут офис в районе Москвы

    (0)