4 200 000 Р 50 530 $ или 44 370

Информация о помещении и здании

8
Этаж
13
Этажность
Развернуть
Агент
+7 (985) 325-63-56
Начать чат с агентом

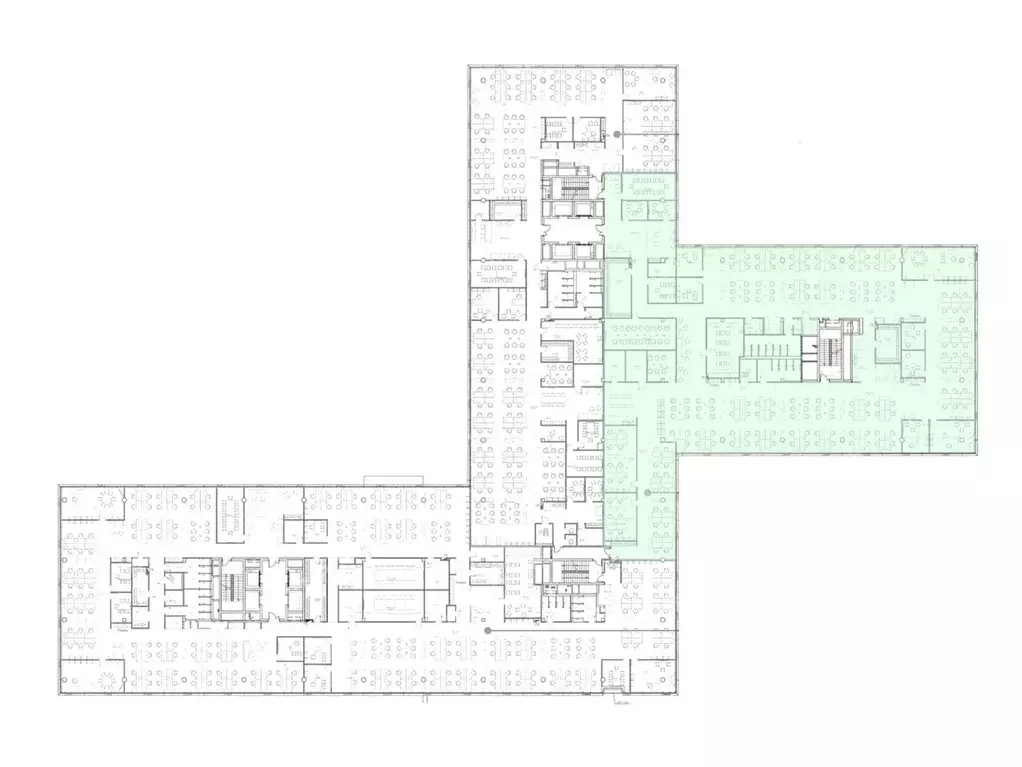
Офис в Москва № 35 кв-л, 10 (2100 м)

Аренда офиса класса А — 8 этаж, 2 100 м, в первой из пяти новых офисных башен в бизнес-квартале Прокшино , новом деловом районе Москвы.Преимущества:Изолированный офис, занимающий полностью этаж;Свободная планировка;Высокие потолки 3,4 м.;Современное панорамное остекление с функцией проветривания;Ориентировочная вместимость сотрудников: ~ 220-абочих мест.Инженерия:Приточно-вытяжная вентиляция;Кондиционирование;Автоматизированная система проветривания;Электрическая мощность — 174 кВт;6 пассажирских лифтов + 1 сервисный для СМР и доставки.Инфраструктура и доступность:Прямой теплый переход из метро Прокшино прямо в лобби Бизнес центра;Фитнес клуб и 2 этажа Торгового центра в одном зданииУдобные выезды на Киевское и Калужское шоссе;Ближайший аэропорт Внуково;Теплый подземный паркингГостевой наземный паркинг;Большая перехватывающая парковка рядом с Бизнес центром.Условия аренды:Каникулы на ремонт;ИП на УСН + НДС 5 ;Долгосрочный договор от 3 лет;Ежегодная индексация на уровень инфляции;Обеспечительный платёж - от 2 месяцев;Коммунальные, эксплуатационные платежи - оплачиваются отдельно в УК;Обеспеченность машино-местами 1мм на 100м2 арендуемого помещения.О Бизнес квартале:Бизнес-квартал Прокшино - это многофункциональный деловой квартал площадью более 177 тыс. м2.5 офисных зданий класса А высотой до 13 этажей, 2-этажный торговый центр, панорамный ресторан с открытой террасой, современный фитнес-центр.На первых этажах дизайнерские лобби с зонами ресепшен, лаунж-зонами, а также кафе, магазины и сервисные службы.Объект введен в эксплуатацию в 2024 году

Читать полностью
    Позвонить Написать
    4 200 000 Р50 530 $ или 44 370
    Агент
    +7 (985) 325-63-56
    Начать чат с агентом
    Похожие предложения
    Офис в Москва ул. Обручева, 23С1 (985 м) - Фото 1
    Офис в Москва ул. Обручева, 23С1 (985 м) - Фото 2
    3-й этаж, всего 13 этажей

    Готовый офис с отделкой в БЦ GEOLOG 985,2 мПредлагается последний готовый офис с отделкой в новом бизнес-центре GEOLOG.Площадь: 985,2 мСтавка: 50 000 за м в год, включая НДСПреимущества помещения:• Полностью готовая новая качественная отделка• Гибкая...
    • 3/13 эт.
    4 105 000 Р
    Агент
    +7 (986) Показать номер
    Посмотреть контакты
    Офис в Москва Киевское шоссе, 22-й км, 6Ас1кВ2 (1742 м) - Фото 1
    Офис в Москва Киевское шоссе, 22-й км, 6Ас1кВ2 (1742 м) - Фото 2
    2-й этаж, всего 7 этажей

    Офисное помещение 1 742 кв. м в бизнес-центре Comcity Фаза Браво .Округ: Юго-Западный (ЮЗАО). Ближайшие станции метро: Румянцево. Характеристики:- Класс: A; - Арендопригодная площадь: 52360; - Код налоговой: 29; - Высота потолков: 3.9 м; - Наличие лифта:...
    • 2/7 эт.
    4 250 480 Р
    Агент
    +7 (915) Показать номер
    Посмотреть контакты
    Офис в Москва ул. Арбат, 10 (740 м) - Фото 1
    Офис в Москва ул. Арбат, 10 (740 м) - Фото 2
    2-й этаж, всего 7 этажей

    Офисное помещение 740 кв. м в бизнес-центре Midland Plaza. Объект скоро освободится. Успейте забронировать на выгодных условиях. Готовность ко въезду уточняется по запросу. Округ: Центральный (ЦАО). Район: Арбат. Ближайшие станции метро: Арбатская, Смоленская....
    • 2/7 эт.
    4 267 580 Р
    Агент
    +7 (915) Показать номер
    Посмотреть контакты
    Офис в Москва Ленинградский просп., 31АС1 (862 м) - Фото 1
    Офис в Москва Ленинградский просп., 31АС1 (862 м) - Фото 2
    36-й этаж, всего 39 этажей

    Предлагаем в прямую аренду офисное помещение класса А общей площадью 862 квадратных метров в бизнес-центре Монарх .Москва, САО, Ленинградский проспект, 31АУдобная локация здания:- Автомобиль: близость транспортных магистралей, таких как Ленинградский...
    • 36/39 эт.
    4 239 680 Р
    Агент
    +7 (985) Показать номер
    Посмотреть контакты
    Офис в Москва Павелецкая пл., 2С1 (584 м) - Фото 1
    Офис в Москва Павелецкая пл., 2С1 (584 м) - Фото 2
    10-й этаж, всего 13 этажей

    В аренду предлагается готовый меблированный офис на 10-м этаже в БЦ А класса Павелецкая плаза БЕЗ КОМИССИИ БЦ Павелецкая плаза имеет великолепную транспортную доступность Садовое кольцо, 2 минуты от ст. м. Павелецкая, вид на старую Москву и сталинскую...
    • 10/13 эт.
    4 156 134 Р
    Агент
    +7 (985) Показать номер
    Посмотреть контакты

    Не нашли подходящего объявления?

    Оставьте заявку, и наши риэлторы подберут офис в районе Москвы

    (0)