526 563 Р 6 430 $ или 5 650

Информация о помещении и здании

1
Этаж
5
Этажность
Развернуть
Агент
+7 (931) 889-58-41
Начать чат с агентом

Офис (169 м)

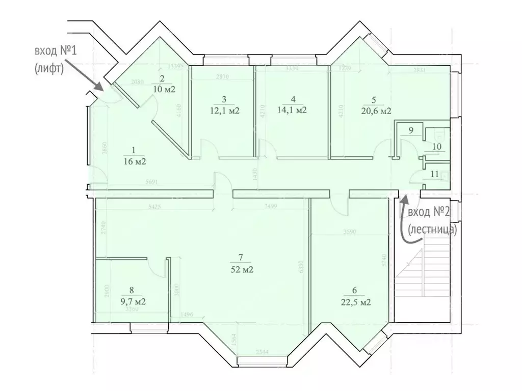
Лот №1057457 Предложение от Собственника Напишите нам в Ватсап, чтобы получить ПОДРОБНУЮ ПРЕЗЕНТАЦИЮ С ПЛАНИРОВКОЙ И ФОТОГРАФИЯМИ Предлагаются офисы в Бизнес-центре класса В+ на Профсоюзной 125 в районе Ясенево (ЮЗАО)До ближайшей станции метро «Теплый стан 350 метров, 1.5 км от МКАД, 10 минут до ТТК- Дизайнерская отделка- Высота потолков 3,5 м- Своя столовая в здании- Охраняемый наземный паркинг (есть возможность докупать места)Ближайшее окружение:Рядом с метро расположены торговые галереи с магазинами, аптеками и гипермаркет «Карусель .В 500 метрах от бизнес-центра находится четырёхзвездочная гостиница и Битцевский ЛесВ цену включено:- Охраняемый наземный паркинг, пропорционально арендуемой площади- Эксплуатационные расходы.Актуальные площади и цены (м2):168.5 м2 (-1-1 эт.) -/м2/год Стоимость аренды:уб/м2/год (уб в месяц) В цену включено: эксплуатационные расходы, НДС 22 .Чтобы получить ПОДРОБНУЮ ПРЕЗЕНТАЦИЮ С ПЛАНИРОВКОЙ И ФОТОГРАФИЯМИ на этот объект, напишите нам в Ватсап. Высылаем в течение 15 минут по запросу Конт. лицо: Роман , доб. 247, ЛОТ №1057457

Читать полностью
    Позвонить Написать
    526 563 Р6 430 $ или 5 650
    Агент
    +7 (931) 889-58-41
    Начать чат с агентом
    Похожие предложения
    Офис (312 м) - Фото 1
    Офис (312 м) - Фото 2
    1-й этаж, всего 2 этажа

    АРЕНДА ОТ 11 МЕС. Складской комплекс. Сдаётся блок с санузлом на первом этаже площадью 312 кв.м с отдельным входом с улицы. Высота потолка 7.5 м. Высококачественная отделка. Есть охрана.УСН, эксплуатационные расходы включены. Лот № 247967. С риелторами...
    • 1/2 эт.
    520 000 Р
    Агент
    +7 (985) Показать номер
    Посмотреть контакты
    Офис в Москва Марксистская ул., 3С2 (262 м) - Фото 1
    Офис в Москва Марксистская ул., 3С2 (262 м) - Фото 2
    1-й этаж, всего 4 этажа

    Сдается в аренду офисное помещение на 1 этаже в БЦ Таганский, В класса, который находится по адресу: ул. Марксистская, д. 3, стр. 2. Без комиссии для Арендатора ЛОКАЦИЯ: Пешая доступность от м. Марксистская, Крестьянская застава, Таганская. Удобный выезд...
    • 1/4 эт.
    524 000 Р
    Агент
    +7 (989) Показать номер
    Посмотреть контакты
    Офис в Москва ул. Александра Лукьянова, 3 (190 м) - Фото 1
    Офис в Москва ул. Александра Лукьянова, 3 (190 м) - Фото 2
    4-й этаж, всего 4 этажа

    ВАЖНО: БЕЗ КОММИССИ ДЛЯ АРЕНДАТОРОВ, ПРЯМАЯ АРЕНДА ОТ СОБСТВЕННИКАБизнес-центр A класса Зенит-Интерасположен по адресу Москва, ЦАО, район Басманный, ул. Александра Лукьянова, дом 3, в пешей доступности от метро Красные ворота (12 мин), метро Бауманская...
    • 4/4 эт.
    522 500 Р
    Агент
    +7 (916) Показать номер
    Посмотреть контакты
    Офис в Москва ул. Александра Лукьянова, 3 (190 м) - Фото 1
    Офис в Москва ул. Александра Лукьянова, 3 (190 м) - Фото 2
    4-й этаж, всего 4 этажа

    Сдается в аренду офисное помещение на 4 этаже в БЦ Зенит-Интер I, В класса, который находится по адресу: ул. Александра Лукьянова, д. 3.Шаговая доступность от станций метро Комсомольская и Бауманская. Недалеко расположены Садовое и Третье транспортное...
    • 4/4 эт.
    522 500 Р
    Агент
    +7 (989) Показать номер
    Посмотреть контакты
    Офис в Москва ул. Александра Лукьянова, 3 (190 м) - Фото 1
    Офис в Москва ул. Александра Лукьянова, 3 (190 м) - Фото 2
    4-й этаж, всего 4 этажа

    Офисное помещение 190 кв. м в бизнес-центре Зенит Интер I . Объект скоро освободится. Успейте забронировать на выгодных условиях. Готовность ко въезду уточняется по запросу. Округ: Центральный (ЦАО). Район: Басманный. Ближайшие станции метро: Красные...
    • 4/4 эт.
    522 500 Р
    Агент
    +7 (915) Показать номер
    Посмотреть контакты

    Не нашли подходящего объявления?

    Оставьте заявку, и наши риэлторы подберут офис в районе Москвы

    (0)