5 620 967 Р 67 620 $ или 59 380

Информация о помещении и здании

4
Этаж
14
Этажность
Развернуть
Агент
+7 (919) 411-04-19
Начать чат с агентом

Офис (671 м)

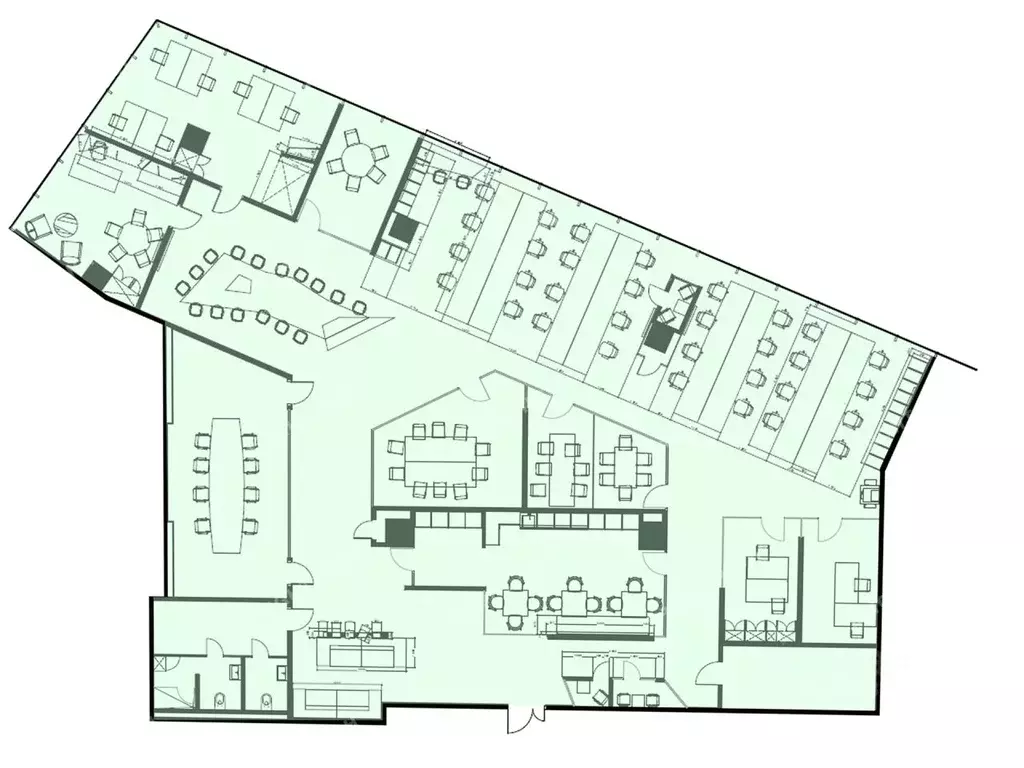
Аренда офиса 671 кв. м в МФК «Легенда Цветного (класс A).Этаж: 4.Отделка - с отделкойТип планировки - смешанная.Мокрые точки - даСан. узлы - в блокеНаличие кухни - да.Назначение: ОфисПолная ставка аренды - за кв. м/год. НДС включен, эксплуатация включенаМесячный арендный платеж –/месяц.Коммунальные расходы - По счётчикамМФК «Легенда Цветного находится по адресу: Москва, Цветной бульвар, 2.Район: МещанскийГод постройки здания: 2009Налоговая: 2Вентиляция: приточно-вытяжнаяПожарная система: ДаБлижайшие станции метро: Трубная (1 минут пешком)Кол-во лифтов: 13Юридический адрес: предоставляетсяПозвоните и мы ответим на все Ваши вопросы, направим презентацию с планировками и оперативно организуем показ. Наши услуги для Вас бесплатны Для быстрого поиска объекта в СРМ назовите менеджеру ID данного помещения - 14197

Читать полностью
    Позвонить Написать
    5 620 967 Р67 620 $ или 59 380
    Агент
    +7 (919) 411-04-19
    Начать чат с агентом
    Похожие предложения
    Офис (671 м) - Фото 1
    Офис (671 м) - Фото 2
    4-й этаж, всего 7 этажей

    Аренда офиса в БЦ класса А Легенда | Цветной бульвар, 2 | 671 м | 4 этажПрестижный бизнес-центр класса А в центре Москвы, на пересечении Цветного и Рождественского бульваров. 1 минута до метро Трубная, 5 минут до Цветного бульвара, 10 минут до Кремля.ИНФРАСТРУКТУРА:Фитнес...
    • 4/7 эт.
    5 621 191 Р
    Агент
    +7 (932) Показать номер
    Посмотреть контакты
    Офис в Москва Цветной бул., 2 (671 м) - Фото 1
    Офис в Москва Цветной бул., 2 (671 м) - Фото 2
    4-й этаж, всего 7 этажей

    Офисное помещение 671 кв. м в бизнес-центре Легенда Цветного .Округ: Центральный (ЦАО). Район: Мещанский. Ближайшие станции метро: Трубная, Цветной бульвар. Характеристики:- Класс: A; - Арендопригодная площадь: 40111; - Код налоговой: 01; - Размер типового...
    • 4/7 эт.
    5 620 967 Р
    Агент
    +7 (915) Показать номер
    Посмотреть контакты
    Офис в Москва Цветной бул., 2 (671 м) - Фото 1
    Офис в Москва Цветной бул., 2 (671 м) - Фото 2
    4-й этаж, всего 14 этажей

    1147660. Предлагаем в аренду офисное помещение площадью 671 кв. м, расположенное в многофункциональном комплексе Легенда Цветного Преимущества объекта: - Здание класса А- Шаговая доступность от станции метро Трубная (3 минуты пешком)- Этаж: 4- Помещение...
    • 4/14 эт.
    5 621 191 Р
    Агент
    +7 (938) Показать номер
    Посмотреть контакты
    Офис в Москва Смоленская пл., 3 (1166 м) - Фото 1
    Офис в Москва Смоленская пл., 3 (1166 м) - Фото 2
    6-й этаж, всего 17 этажей

    Сдается в долгосрочную прямую аренду офисный блок класса А площадью 720 кв.м в недавно отреконструированном бизнес-центре Смоленский пассаж .Москва, ЦАО, Смоленская площадь, 3Удобное расположение здания для всех видов транспорта:- Автомобиль: близость...
    • 6/17 эт.
    5 616 230 Р
    Агент
    +7 (916) Показать номер
    Посмотреть контакты
    Офис (1496 м) - Фото 1
    Офис (1496 м) - Фото 2
    3-й этаж, всего 7 этажей

    Сдается в аренду офисное помещение на 3 этаже в бизнес-центре Стрелецкая Слобода, В+ класса, который находится по адресу: ул. Большая Новодмитровская, д. 23, стр. 1. Без комиссии для Арендатора ЛОКАЦИЯ:– Пешая доступность от станций метро Савёловская,...
    • 3/7 эт.
    5 533 333 Р
    Агент
    +7 (901) Показать номер
    Посмотреть контакты

    Не нашли подходящего объявления?

    Оставьте заявку, и наши риэлторы подберут офис в районе Москвы

    (0)