12 428 917 Р 154 900 $ или 135 100

Информация о помещении и здании

1
Этаж
9
Этажность
Развернуть
Агент
+7 (986) 274-27-15
Начать чат с агентом

Офис в Москва Новохохловская ул., 29 (4031 м)

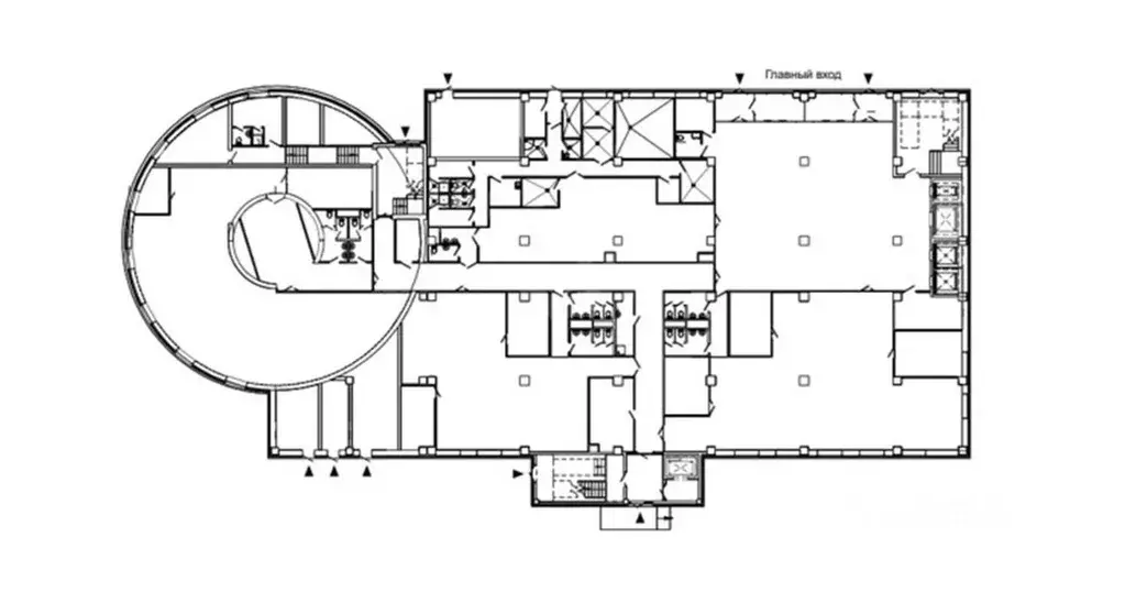
ЛотПредложение от Собственника Предлагается в аренду целиком первый и второй этажи в новом здании на территории бизнес-центра Ринг Парк . 3 минуты пешком от МЦК, Помещения имеют смешанную планировку и выполнены с новым дизайнерским ремонтом в современном стиле с элементами лофт. Высота потолков от перекрытия до перекрытия составляет 4,5 метра.Общая площадь первого этажа, предлагаемая в аренду, составляет 2035 кв. м, площадь второго этажа — 1996 кв. м. Планировка может быть открытой или смешанной. На объекте присутствует выделенная электроэнергия мощностью до 80 Вт/кв. м.Инфраструктура здания включает современное лифтовое оборудование, систему автономного и центрального отопления, а также центральную систему приточно-вытяжной вентиляции с подогревом в зимний период. Установлена центральная система кондиционирования воздуха, работоспособная при температуре окружающего воздуха до минус 15 градусов.Обеспечена комплексная безопасность: система пожарной сигнализации с возможностью подключения охранной сигнализации и контроль доступа. Для арендаторов доступны охраняемые наземная и крытая многоуровневая парковки. Здание оснащено оптико-волоконными линиями связи. Управление осуществляется профессиональной управляющей компанией. Ввод в эксплуатацию III квартал 2026 года. В цену включено: НДС 22 . В цену не включено: затраты на электричество, коммунальные расходы, уборка. Обеспечительный платеж 2 месяцa.Чтобы получить ПОДРОБНУЮ ПРЕЗЕНТАЦИЮ С ПЛАНИРОВКОЙ И ФОТОГРАФИЯМИ, звоните или отправьте свой email и номер телефона в сообщении на портале. Высылаем в течение 15 минут по запросу Конт. лицо: Михаил Вячеславович, доб. 216, ЛОТ 1052882

Читать полностью
    Позвонить Написать
    12 428 917 Р154 900 $ или 135 100
    Агент
    +7 (986) 274-27-15
    Начать чат с агентом
    Похожие предложения
    Офис в Москва ул. Кузнецкий Мост, 19С1 (1204 м) - Фото 1
    Офис в Москва ул. Кузнецкий Мост, 19С1 (1204 м) - Фото 2
    2-й этаж, всего 4 этажа

    ВАЖНО: БЕЗ КОММИССИ ДЛЯ АРЕНДАТОРОВ, ПРЯМАЯ АРЕНДА ОТ СОБСТВЕННИКАОсобняк B+ класса Кузнецкий Мост расположен по адресу Москва, ЦАО, район Тверской, ул. Кузнецкий Мост, дом 19, строение 1, в пешей доступности от метро Кузнецкий мост (1 мин).Характеристики...
    • 2/4 эт.
    12 899 957 Р
    Агент
    +7 (916) Показать номер
    Посмотреть контакты
    Офис в Москва ул. Сущевский Вал, 2 (2500 м) - Фото 1
    2-й этаж, всего 8 этажей

    ВАЖНО: БЕЗ КОММИССИ ДЛЯ АРЕНДАТОРОВ, ПРЯМАЯ АРЕНДА ОТ СОБСТВЕННИКАБизнес-центр B+ класса Сущевский Валасположен по адресу Москва, ЦАО, район Тверской, ул. Сущёвский Вал, 2, в пешей доступности от метро Савёловская (3 мин), метро Менделеевская (15 мин).Характеристики...
    • 2/8 эт.
    12 500 000 Р
    Агент
    +7 (916) Показать номер
    Посмотреть контакты
    Офис в Москва Огородный проезд, 16/1с5 (1994 м) - Фото 1
    Офис в Москва Огородный проезд, 16/1с5 (1994 м) - Фото 2
    7-й этаж, всего 12 этажей

    ID 034914. Предложение от собственника. Сдаётся офис 1 994 кв.м. смешанной планировки в бизнес-центре БЦ Останкино класса A. Готов к въезду. Дизайнерский ремонт. Без комиссии.Бизнес-центр Останкино класса А расположено рядом с метро Бутырская и платформой...
    • 7/12 эт.
    11 865 517 Р
    Агент
    +7 (980) Показать номер
    Посмотреть контакты
    Офис в Москва Каширское ш., 3К2С9 (2570 м) - Фото 1
    Офис в Москва Каширское ш., 3К2С9 (2570 м) - Фото 2
    7-й этаж, всего 7 этажей

    ID 032251. Предложение от собственника. Сдаётся офис 2 570 кв.м. смешанной планировки в бизнес-парке Сириус Парк класса B+. Готов к въезду. Стандартный офисный ремонт. Без комиссии.Бизнес-квартал Сириус Парк класса B+ состоит из шести корпусов в стиле...
    • 7/7 эт.
    12 466 667 Р
    Агент
    +7 (980) Показать номер
    Посмотреть контакты
    Офис в Москва Огородный проезд, 16/1с5 (1994 м) - Фото 1
    Офис в Москва Огородный проезд, 16/1с5 (1994 м) - Фото 2
    6-й этаж, всего 12 этажей

    ID 034068. Предложение от собственника. Сдаётся офис 1 994 кв.м. смешанной планировки в бизнес-центре БЦ Останкино класса A. Готов к въезду. Стандартный офисный ремонт. Без комиссии.Бизнес-центр Останкино класса А расположено рядом с метро Бутырская и...
    • 6/12 эт.
    11 865 517 Р
    Агент
    +7 (980) Показать номер
    Посмотреть контакты

    Не нашли подходящего объявления?

    Оставьте заявку, и наши риэлторы подберут офис в районе Москвы

    (0)