2 242 500 Р 27 950 $ или 24 380

Информация о помещении и здании

4
Этаж
7
Этажность
Развернуть
Агент
+7 (985) 822-94-94
Начать чат с агентом

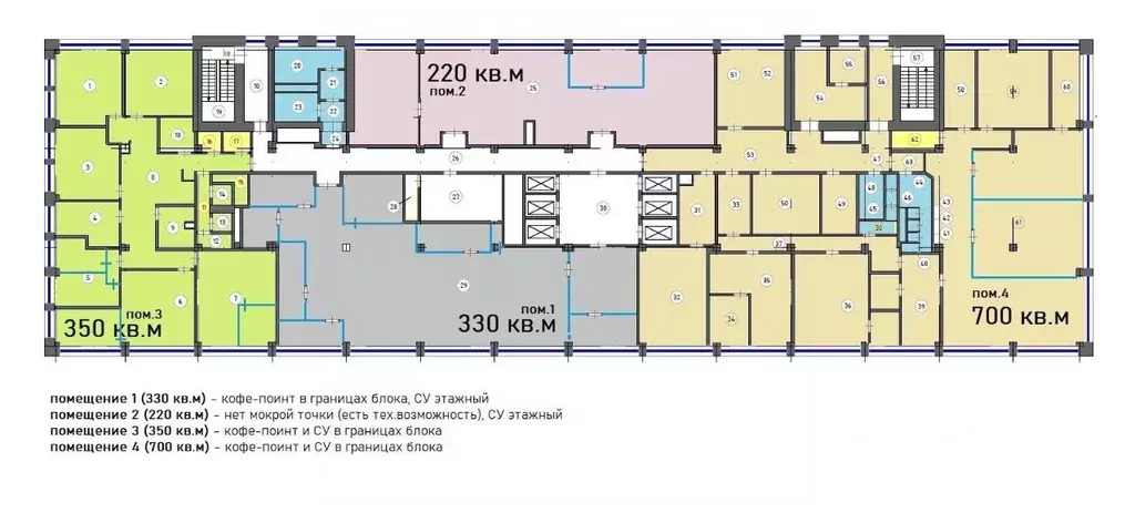
Офис в Москва Каширское ш., 3К2С4 (1035 м)

Уважаемый Арендатор, предлагаем Вам арендовать офис 1035.0 м на 4 этаже на выгодных условиях.Приточно-вытяжная вентиляция. Центральное кондиционирование. Пожарная сигнализация. Интернет, телефония. Охрана. Видеонаблюдение. Система контроля доступа. Лифты: LG-Sigma . Наземная парковка. ЮАО Москвы. В 5 минутах от м. НагатинскаяБыстро реагируем на обращения, организуем встречу на объекте в удобное для Вас время, направим план помещения и ответим на все возникшие вопросы Звоните сейчас и получите лучшие условия на рынке ID: o99779

Читать полностью
    Позвонить Написать
    2 242 500 Р27 950 $ или 24 380
    Агент
    +7 (985) 822-94-94
    Начать чат с агентом
    Похожие предложения
    Офис в Москва ул. Шумкина, 14С1 (1000 м) - Фото 1
    Офис в Москва ул. Шумкина, 14С1 (1000 м) - Фото 2
    7-й этаж, всего 7 этажей

    ВАЖНО: БЕЗ КОММИССИ ДЛЯ АРЕНДАТОРОВ, ПРЯМАЯ АРЕНДА ОТ СОБСТВЕННИКАБизнес-центр A класса Деловой дуэт расположен по адресу Москва, ВАО, район Сокольники, ул. Шумкина, 14, в пешей доступности от метро Сокольники (10 мин), метро Красносельская (13 мин),...
    • 7/7 эт.
    2 125 000 Р
    Агент
    +7 (916) Показать номер
    Посмотреть контакты
    3-й этаж, всего 6 этажей

    Сдается в аренду офис 467.8 кв.м недалеко от метро. Состояние отделки — готово к въезду. Подписание договора аренды напрямую с владельцем помещения. Работаем без комиссии, процентов и надбавок. В арендную ставку включено: - НДС, - эксплуат.расходы,...
    • 3/6 эт.
    2 105 100 Р
    Агент
    +7 (926) Показать номер
    Посмотреть контакты
    Офис в Москва Новодмитровская ул., 2Б (708 м) - Фото 1
    Офис в Москва Новодмитровская ул., 2Б (708 м) - Фото 2
    6-й этаж, всего 8 этажей

    ВАЖНО: БЕЗ КОММИССИ ДЛЯ АРЕНДАТОРОВ, ПРЯМАЯ АРЕНДА ОТ СОБСТВЕННИКАБизнес-центр B+ класса Дмитровский расположен по адресу Москва, САО, район Савёловский, Новодмитровская ул., 2Б, в пешей доступности от метро Дмитровская (7 мин).Характеристики здания:...
    • 6/8 эт.
    2 242 000 Р
    Агент
    +7 (916) Показать номер
    Посмотреть контакты
    Офис (400.6 м) - Фото 1
    Офис (400.6 м) - Фото 2
    1-й этаж, всего 4 этажа

    Аренда офиса 400.6 кв. м в бизнес-парке «Товарищество Рябовской мануфактуры (стр. 2) (класс B+).Этаж: 1.Светлое и большое помещение, качественный ремонт, большие окна .Высота потолка 9 м.Тип планировки - смешанная.Мокрые точки - даСан. узлы - в блокеНаличие...
    • 1/4 эт.
    2 170 050 Р
    Агент
    +7 (919) Показать номер
    Посмотреть контакты
    Офис (399 м) - Фото 1
    Офис (399 м) - Фото 2
    2-й этаж, всего 7 этажей

    Сдается в прямую аренду офисный блок 399 кв.м недалеко от метро. Состояние отделки — готово к въезду. Помещение доступно для аренды с 01.05.2026. Договор аренды заключаете с собственником помещения. Без надбавки к итоговой стоимости аренды. В арендную...
    • 2/7 эт.
    2 287 300 Р
    Агент
    +7 (926) Показать номер
    Посмотреть контакты

    Не нашли подходящего объявления?

    Оставьте заявку, и наши риэлторы подберут офис в районе Москвы

    (0)