4 091 139 Р 51 000 $ или 44 480

Информация о помещении и здании

6
Этаж
18
Этажность
Развернуть
Агент
+7 (916) 080-89-22
Начать чат с агентом

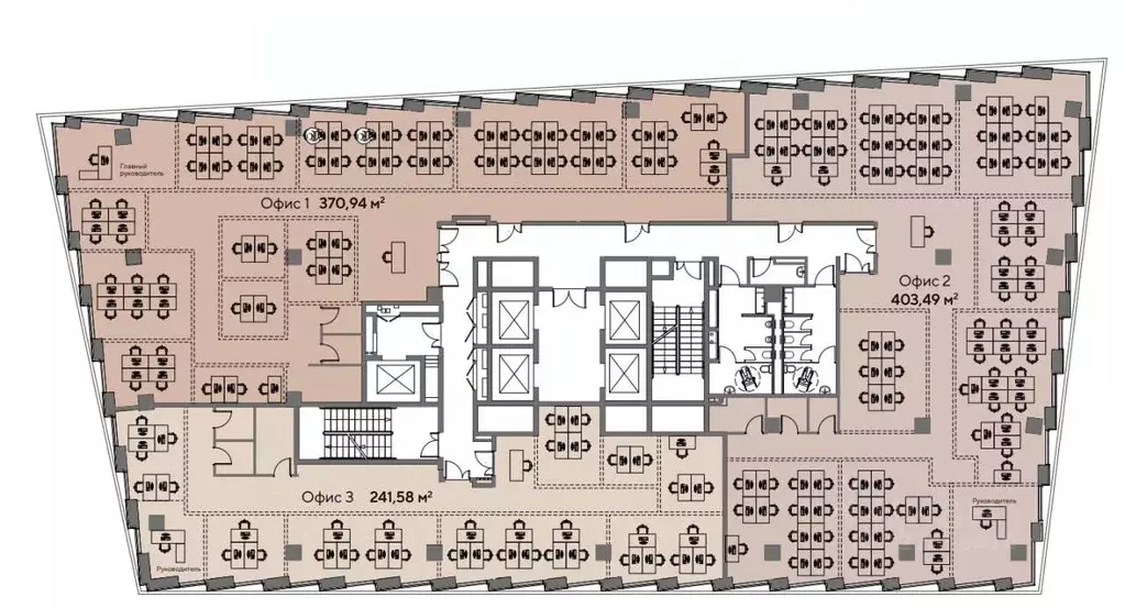
Офис (1042 м)

BUSINESS CENTER RIVA — ВИДОВЫЕ ОФИСЫ КЛАССА «А В АРЕНДУПремиальный бизнес-центр на первой линии Москвы-реки с эксклюзивной инфраструктурой и высокотехнологичными офисными пространствами. Офис в аренду общей площадью 1042 м располагается на 06 этаже БЦ Riva. СДАЧА В ЭКСПЛУАТАЦИЮ в 1 кв. 2026 г.О проектеBusiness Center Riva — это современный офисный комплекс класса А с панорамным остеклением, расположенный на первой береговой линии Москвы-реки в курортной зоне «Остров Мечты . Комплекс обладает престижным адресом и развитой внутренней инфраструктурой, что делает его отличной площадкой для аренды представительных офисов, штаб-квартир и креативных рабочих пространств. Преимущества локации:• Первая линия Москвы-реки с видом на набережную и гастропроменад. • 3 мин. пешком до Южного речного вокзала и речного такси. • 9 мин. пешком до метро «Технопарк . • 5 минут пешком до метро «Остров мечты (ввод планируется в 2028).• Быстрый доступ к проспекту Андропова и ТТК. Офисы в аренду:• Просторные офисные помещения различных площадей под любые задачи бизнеса. • Гибкие условия аренды: в аренду доступны от одного до нескольких этажей. Площадь этажа 1 042,4м. Помещения оборудованы современной инженерией и свободной планировкой, что позволяет адаптировать пространство под нужды арендаторов любых масштабов — от филиалов компаний до штаб-квартир. Инфраструктура и комфорт:• Дизайнерские лобби, лаунж-зоны и зоны для неформального общения. • Парковка наземная и подземная для сотрудников и гостей. • Возможность размещения операторов общепита, магазинов и сервисов на первых этажах. • Интеграция с городской средой: гастропроменад, парк, спортивные и развлекательные зоны. Транспортная доступность:• 3 мин. пешком — Южный речной вокзал (речное такси). • 9 мин. пешком — метро «Технопарк . • 2 мин. на автомобиле — проспект Андропова. • 5 мин. — ТТК, удобные выезды по ключевым магистралям. Идеально подходит для:• крупных корпоративных офисов; • представительств международных компаний; • креативных пространств и команд с высокими требованиями к локации и имиджу.

Читать полностью
    Позвонить Написать
    4 091 139 Р51 000 $ или 44 480
    Агент
    +7 (916) 080-89-22
    Начать чат с агентом
    Похожие предложения
    Офис в Москва просп. Андропова, 11Г (1042 м) - Фото 1
    Офис в Москва просп. Андропова, 11Г (1042 м) - Фото 2
    6-й этаж, всего 18 этажей

    Срок сдачи 1 квартал 2026 годаОфис 6BUSINESS CENTER RIVA — ПРЕМИАЛЬНЫЕ ОФИСЫ КЛАССА А В АРЕНДУПремиальный бизнес-центр на первой линии Москвы-реки с эксклюзивной инфраструктурой и высокотехнологичными офисными пространствами. О проектеBusiness Center...
    • 6/18 эт.
    4 091 139 Р
    Агент
    +7 (986) Показать номер
    Посмотреть контакты
    Офис в Москва Лесная ул., 43 (800 м) - Фото 1
    Офис в Москва Лесная ул., 43 (800 м) - Фото 2
    4-й этаж, всего 6 этажей

    ОПЛАЧИВАЕМ вознаграждение любому представителю в размере Собственником сдается в аренду офис под ключ с мебелью напротив напротив гастрономического центра ДЭПО Лесная Брокеры, мы платим Вам вознаграждение 50 от месяца аренды Офис ПРЕМИУМ уровня...
    • 4/6 эт.
    4 000 000 Р
    Агент
    +7 (980) Показать номер
    Посмотреть контакты
    Офис в Москва пер. Столешников, 11 (160 м) - Фото 1
    Офис в Москва пер. Столешников, 11 (160 м) - Фото 2
    3-й этаж, всего 5 этажей

    Офисное помещение 160.1 кв. м в бизнес-центре Signature Столешников .Округ: Центральный (ЦАО). Район: Тверской. Ближайшие станции метро: Театральная, Пушкинская, Кузнецкий Мост, Охотный Ряд. Характеристики:- Класс: B+; - Реконструкция: Да; - Арендопригодная...
    • 3/5 эт.
    4 085 913 Р
    Агент
    +7 (915) Показать номер
    Посмотреть контакты
    Офис (495 м) - Фото 1
    Офис (495 м) - Фото 2
    3-й этаж, всего 4 этажа

    Loft-квартал «Товарищество Рябовской Мануфактуры класса BАренда помещения площадью 495,0 кв.мCтоимость кв. метра 100072, в год включая НДС, возможен торгLoft-квартал «Товарищество Рябовской Мануфактурыасположен по адресу: Холодильный переулок, 3, Москва...
    • 3/4 эт.
    4 128 000 Р
    Агент
    +7 (495) Показать номер
    Посмотреть контакты
    Офис в Москва ул. Обручева, 23С1 (985 м) - Фото 1
    Офис в Москва ул. Обручева, 23С1 (985 м) - Фото 2
    3-й этаж, всего 13 этажей

    Готовый офис с отделкой в БЦ GEOLOG 985,2 мПредлагается последний готовый офис с отделкой в новом бизнес-центре GEOLOG.Площадь: 985,2 мСтавка: 50 000 за м в год, включая НДСПреимущества помещения:• Полностью готовая новая качественная отделка• Гибкая...
    • 3/13 эт.
    4 105 000 Р
    Агент
    +7 (986) Показать номер
    Посмотреть контакты

    Не нашли подходящего объявления?

    Оставьте заявку, и наши риэлторы подберут офис в районе Москвы

    (0)