4 920 667 Р 60 070 $ или 52 820

Информация о помещении и здании

18
Этаж
61
Этажность
Развернуть
Агент
+7 (932) 441-45-29
Начать чат с агентом

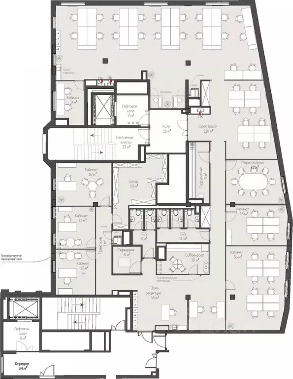
Офис (536.8 м)

Описание: Просторный офис на 18 этаже премиального БЦ ICITY категории А+. Панорамные окна и высокий уровень сервиса. Отделка White box. Отлично подходит для клиентского офиса, штаб-квартиры или представительства. Расположение: Статусная локация в Пресненском районе. В ближайшей доступности метро Шелепиха, МЦД Шелепиха, Международная, Деловой центр, Москва Сити. Развитая инфраструктура. Удобный подъезд. Парковка: Наземная со шлагбаумом и многоуровневая, с зарядкой для электромобилей. Возможность арендовать до 4 машиномест на 5 этаже башниуб/мес Коммуникации: Комплекc оснaщeн вcей совpeменной инжeнepией, системaми кoндициониpoвания, очиcтки воды, и aвтомaтизиpoвaнной сиcтeмoй пoжapотушения.Круглосуточная охрана, система контроля доступа, видеонаблюдение, пожарная сигнализация, скоростные бесшумные лифты. Условия: Долгосрочная прямая аренда. При необходимости собственник может выполнить ремонт под арендатора. Арендные каникулы Объект №.

Читать полностью
    Позвонить Написать
    4 920 667 Р60 070 $ или 52 820
    Агент
    +7 (932) 441-45-29
    Начать чат с агентом
    Похожие предложения
    Офис в Москва Киевское шоссе, 22-й км, 6Ас1кВ2 (2003 м) - Фото 1
    Офис в Москва Киевское шоссе, 22-й км, 6Ас1кВ2 (2003 м) - Фото 2
    2-й этаж, всего 7 этажей

    Офисное помещение 2 003 кв. м в бизнес-центре Comcity Фаза Браво .Округ: Юго-Западный (ЮЗАО). Ближайшие станции метро: Румянцево. Характеристики:- Класс: A; - Арендопригодная площадь: 52360; - Код налоговой: 29; - Высота потолков: 3.9 м; - Наличие лифта:...
    • 2/7 эт.
    4 887 320 Р
    Агент
    +7 (915) Показать номер
    Посмотреть контакты
    Офис (2844.4 м) - Фото 1
    Офис (2844.4 м) - Фото 2
    2-й этаж, всего 23 этажа

    Аренда фитнеса 2844.4 кв. м в ЖК «ЖК HighWay (класс null).Этаж: 2.Отделка - без отделкиТип планировки - open-space.Вход - отдельный с улицыМокрые точки - даСан. узлы - в блокеНазначение: ФитнесПолная ставка аренды - за кв. м/год. НДС включен, эксплуатация...
    • 2/23 эт.
    4 835 480 Р
    Агент
    +7 (916) Показать номер
    Посмотреть контакты
    Офис в Москва Садовническая ул., 9А (400 м) - Фото 1
    Офис в Москва Садовническая ул., 9А (400 м) - Фото 2
    3-й этаж, всего 5 этажей

    ВАЖНО: БЕЗ КОММИССИ ДЛЯ АРЕНДАТОРОВ, ПРЯМАЯ АРЕНДА ОТ СОБСТВЕННИКАБизнес-центр B+ класса Новый Балчуг расположен по адресу Москва, ЦАО, район Замоскворечье, Садовническая наб., 9а, в пешей доступности от метро Новокузнецкая (8 мин).Характеристики здания:...
    • 3/5 эт.
    4 819 000 Р
    Агент
    +7 (916) Показать номер
    Посмотреть контакты
    Офис в Москва № 32 кв-л, вл16с2 (3560 м) - Фото 1
    Офис в Москва № 32 кв-л, вл16с2 (3560 м) - Фото 2
    6-й этаж, всего 9 этажей

    ID: 587444Предлагаем в аренду блок 3560 кв.м, в состоянии shell core. Высота потолков - 3,75 м. Инженерные системы запроектированы под рассадку 1 человек на 6 м2. Типовая нагрузка на перекрытия- 540 кг/кв.м. Нагрузка на перекрытия в зоне усиления- 720...
    • 6/9 эт.
    4 800 000 Р
    Агент
    +7 (915) Показать номер
    Посмотреть контакты
    Офис в Москва ул. Земляной Вал, 9 (844 м) - Фото 1
    Офис в Москва ул. Земляной Вал, 9 (844 м) - Фото 2
    4-й этаж, всего 12 этажей

    Офис площадью 844 м в Басманном районе. Объект с кабинетной планировкой расположен на 4 этаже в бизнес-центре Ситидел . В помещении выполнена отделка в офисном стиле, спланирована кухня. Установлены системы приточно-вытяжной вентиляции и центрального...
    • 4/12 эт.
    4 810 000 Р
    Агент
    +7 (923) Показать номер
    Посмотреть контакты

    Не нашли подходящего объявления?

    Оставьте заявку, и наши риэлторы подберут офис в районе Москвы

    (0)