4 341 470 Р 54 120 $ или 47 200

Информация о помещении и здании

2
Этаж
15
Этажность
Развернуть
Агент
+7 (958) 496-91-66
Начать чат с агентом

Офис (1377.37 м)

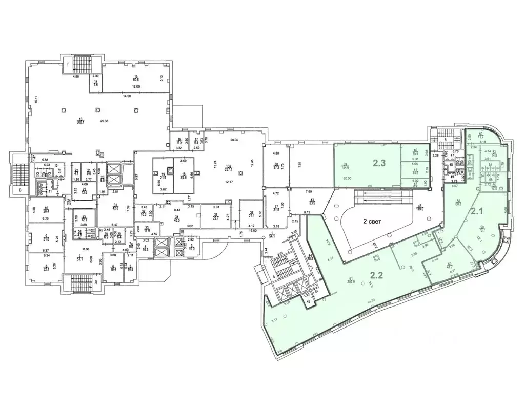
Аренда офиса 1377.37 кв. м в бизнес-центре «Линкор (класс B+).Этаж: 2.Отделка - с отделкойТип планировки - смешанная.Полная ставка аренды - за кв. м/год. НДС включен, эксплуатация включенаМесячный арендный платеж –/месяц.Коммунальные расходы - По счётчикамБизнес-центр «Линкор находится по адресу: Москва, улица Авиаконструктора Микояна, 12.Район: ХорошевскийГод постройки здания: 2011Налоговая: 14Вентиляция: приточно-вытяжнаяПожарная система: ДаБлижайшие станции метро: Аэропорт (12 минут пешком), ЦСКА (10 минут пешком)Инфраструктура: Фитнес-клуб, Студия йоги, Иностранные языки, Бюро переводов, Гостиница, Магазин, Медицинский центр, Аптека, Автосервис, Цветочный салон, Супермаркет, Турагенство, Салон красоты, Банкомат, Банк, Курьерские услуги, Столовая, Ресторан, Кафе, БарКол-во лифтов: 12Позвоните и мы ответим на все Ваши вопросы, направим презентацию с планировками и оперативно организуем показ. Наши услуги для Вас бесплатны Для быстрого поиска объекта в СРМ назовите менеджеру ID данного помещения - 2649

Читать полностью
    Позвонить Написать
    4 341 470 Р54 120 $ или 47 200
    Агент
    +7 (958) 496-91-66
    Начать чат с агентом
    Похожие предложения
    Офис в Москва ул. Можайский Вал, 8 (784 м) - Фото 1
    Офис в Москва ул. Можайский Вал, 8 (784 м) - Фото 2
    4-й этаж, всего 14 этажей

    Экономьте время и деньги: отрисуем планировку под вас бесплатно, с любым количеством правок. Предлагаем в аренду офис в бизнес-центре Атлантик по адресу: Москва, улица Можайский Вал, 8.Рабочих мест: от 98 до 174*.Площадь: 784 м2.Планировка: смешанная.Состояние:...
    • 4/14 эт.
    4 383 867 Р
    Агент
    +7 (980) Показать номер
    Посмотреть контакты
    Офис в Москва ул. Арбат, 10 (740 м) - Фото 1
    Офис в Москва ул. Арбат, 10 (740 м) - Фото 2
    2-й этаж, всего 7 этажей

    Офисное помещение 740 кв. м в бизнес-центре Midland Plaza. Объект скоро освободится. Успейте забронировать на выгодных условиях. Готовность ко въезду уточняется по запросу. Округ: Центральный (ЦАО). Район: Арбат. Ближайшие станции метро: Арбатская, Смоленская....
    • 2/7 эт.
    4 267 580 Р
    Агент
    +7 (915) Показать номер
    Посмотреть контакты
    Офис (1042 м) - Фото 1
    Офис (1042 м) - Фото 2
    10-й этаж, всего 18 этажей

    BUSINESS CENTER RIVA — ВИДОВЫЕ ОФИСЫ КЛАССА «А В АРЕНДУПремиальный бизнес-центр на первой линии Москвы-реки с эксклюзивной инфраструктурой и высокотехнологичными офисными пространствами. Офис в аренду общей площадью 1042 м располагается на 10 этаже БЦ...
    • 10/18 эт.
    4 324 919 Р
    Агент
    +7 (916) Показать номер
    Посмотреть контакты
    Офис (1042 м) - Фото 1
    Офис (1042 м) - Фото 2
    8-й этаж, всего 18 этажей

    BUSINESS CENTER RIVA — ВИДОВЫЕ ОФИСЫ КЛАССА «А В АРЕНДУПремиальный бизнес-центр на первой линии Москвы-реки с эксклюзивной инфраструктурой и высокотехнологичными офисными пространствами. Офис в аренду общей площадью 1042 м располагается на 08 этаже БЦ...
    • 8/18 эт.
    4 208 029 Р
    Агент
    +7 (916) Показать номер
    Посмотреть контакты
    Офис (480 м) - Фото 1
    Офис (480 м) - Фото 2
    12-й этаж, всего 27 этажей

    Аренда офиса 480 кв. м в бизнес-центре «Башня на Набережной (Блок В) (класс A).Этаж: 12.Отделка - с отделкойТип планировки - смешанная.Вход - общий с улицыМокрые точки - даСан. узлы - в блокеПомещение - свободно с 01.04.2026.Назначение: ОфисПолная ставка...
    • 12/27 эт.
    4 294 560 Р
    Агент
    +7 (958) Показать номер
    Посмотреть контакты

    Не нашли подходящего объявления?

    Оставьте заявку, и наши риэлторы подберут офис в районе Москвы

    (0)