4 450 621 Р 55 480 $ или 48 380

Информация о помещении и здании

12
Этаж
12
Этажность
Развернуть
Агент
+7 (966) 117-77-29
Начать чат с агентом

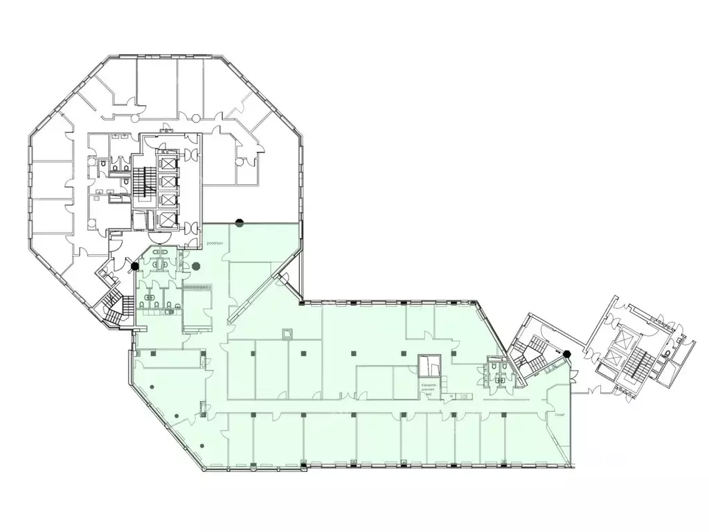
Офис (427 м)

Сдается в прямую аренду офисное помещение общей площадью 427 кв.м. на 12 этаже в бизнес-центре БЦ на Газетном , расположенном по адресу Москва, Газетный переулок, 17, в 6 минутах пешком от метро Охотный ряд. Арендная ставка составляет за кв.м./год, с учетом НДС. Эксплуатационные расходы включены в ставку аренды, коммунальные расходы оплачиваются по факту. Планировка смешанная.Состояние помещения: Готово к въезду.Кондиционирование: Неизвестно.Охрана: Круглосуточная охрана здания. Показ ежедневно с 9 до 23, без выходных. Позвоните, есть подробная презентация объекта, в электронном виде.

Читать полностью
    Позвонить Написать
    4 450 621 Р55 480 $ или 48 380
    Агент
    +7 (966) 117-77-29
    Начать чат с агентом
    Похожие предложения
    Офис в Москва 3-я Рыбинская ул., 18с22 (1400 м) - Фото 1
    Офис в Москва 3-я Рыбинская ул., 18с22 (1400 м) - Фото 2
    5-й этаж, всего 6 этажей

    ID 032683. Предложение от собственника. Сдаётся офис 1 400 кв.м. смешанной планировки в бизнес-центре Буревестник класса B+. Готов к въезду с 01.06.2026. Стандартный офисный ремонт. Без комиссии.Архитектура БЦ Буревестник воссоздает атмосферу промышленных...
    • 5/6 эт.
    4 494 193 Р
    Агент
    +7 (980) Показать номер
    Посмотреть контакты
    Офис в Москва Киевское шоссе, 22-й км, 6Ас1кВ2 (1742 м) - Фото 1
    Офис в Москва Киевское шоссе, 22-й км, 6Ас1кВ2 (1742 м) - Фото 2
    2-й этаж, всего 7 этажей

    Офисное помещение 1 742 кв. м в бизнес-центре Comcity Фаза Браво .Округ: Юго-Западный (ЮЗАО). Ближайшие станции метро: Румянцево. Характеристики:- Класс: A; - Арендопригодная площадь: 52360; - Код налоговой: 29; - Высота потолков: 3.9 м; - Наличие лифта:...
    • 2/7 эт.
    4 517 006 Р
    Агент
    +7 (915) Показать номер
    Посмотреть контакты
    Офис в Москва Космодамианская наб., 52С1 (941 м) - Фото 1
    Офис в Москва Космодамианская наб., 52С1 (941 м) - Фото 2
    4-й этаж, всего 14 этажей

    Офисное помещение 941 кв. м в бизнес-центре Риверсайд Тауэрс 1 .Округ: Центральный (ЦАО). Район: Замоскворечье. Ближайшие станции метро: Павелецкая. Характеристики:- Класс: B+; - Код налоговой: 05; - Размер типового этажа: 1700; - Арендопригодная площадь:...
    • 4/14 эт.
    4 592 080 Р
    Агент
    +7 (915) Показать номер
    Посмотреть контакты
    Офис в Москва Сколковское ш., 43 (655 м) - Фото 1
    Офис в Москва Сколковское ш., 43 (655 м) - Фото 2
    4-й этаж, всего 6 этажей

    Лот 964455 Предложение от Собственника Арендуется современный офисный блок в корпусе 4 с выполненной чистовой отделкой. Панорамное остекление наполняет пространство естественным светом и создает ощущение простора.Подобная планировка способствует формированию...
    • 4/6 эт.
    4 585 000 Р
    Агент
    +7 (986) Показать номер
    Посмотреть контакты
    Офис (1042 м) - Фото 1
    Офис (1042 м) - Фото 2
    12-й этаж, всего 18 этажей

    BUSINESS CENTER RIVA — ВИДОВЫЕ ОФИСЫ КЛАССА «А В АРЕНДУПремиальный бизнес-центр на первой линии Москвы-реки с эксклюзивной инфраструктурой и высокотехнологичными офисными пространствами. Офис в аренду общей площадью 1042 м располагается на 12 этаже БЦ...
    • 12/18 эт.
    4 441 808 Р
    Агент
    +7 (916) Показать номер
    Посмотреть контакты

    Не нашли подходящего объявления?

    Оставьте заявку, и наши риэлторы подберут офис в районе Москвы

    (0)