20 636 198 Р 257 200 $ или 224 300

Информация о помещении и здании

4
Этаж
7
Этажность
Развернуть
Агент
+7 (980) 417-92-31
Начать чат с агентом

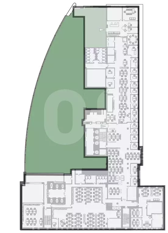
Офис в Москва Киевское шоссе, 22-й км, 6Ас1кВ2 (6440 м)

ID 031789. Предложение от собственника. Сдаётся офис 6 440 кв.м. смешанной планировки в бизнес-центре КомСити класса A. Под отделку. Помещение без отделки. Без комиссии.КомСити — бизнес-центр класса А. Территория комплекса включает благоустроенное зелёное пространство с разнообразными деревьями, кустарниками и цветами, пешеходными дорожками, оригинальными скамейками и фонтанами. В план развития инфраструктуры входит обустройство территории Тропарёвского лесопарка. Ближайшая станция метро — Румянцево, удобный выезд на Киевское шоссе и МКАД. Предусмотрена наземная парковка на 927 мест и подземная на 2600. Инфраструктура бизнес-парка включает столовую, кафе, ресторан, продуктовый магазин, трёхзвёздочную гостиницу с конференц-центром, спортивную площадку, фитнес-центр с бассейном и детский сад. Бизнес-центр оборудован современными инженерными системами и 8 пассажирскими лифтами. Юридические адреса обслуживаются в налоговой 29.Коммерческие условия:Арендная плата:/мес.Ставка (включая эксплуатацию): за м2/год.Налог: включая НДС.Коммунальные расходы: оплачиваются по факту.Этот лот состоит из нескольких помещений: 1742 кв. м., 1742 кв. м., 1542 кв. м. и 1414 кв. м.Звоните или пишите в чат. Расскажем подробности, бесплатно разработаем рассадку и пришлём детальную презентацию. Были там на прошлой неделе.

Читать полностью
    Позвонить Написать
    20 636 198 Р257 200 $ или 224 300
    Агент
    +7 (980) 417-92-31
    Начать чат с агентом
    Похожие предложения
    Офис в Москва Киевское шоссе, 22-й км, 6Ас1кВ2 (6698 м) - Фото 1
    Офис в Москва Киевское шоссе, 22-й км, 6Ас1кВ2 (6698 м) - Фото 2
    4-й этаж, всего 7 этажей

    ID 031795. Предложение от собственника. Сдаётся офис 6 698 кв.м. смешанной планировки в бизнес-центре КомСити класса A. Под отделку. Помещение без отделки. Без комиссии.КомСити — бизнес-центр класса А. Территория комплекса включает благоустроенное зелёное...
    • 4/7 эт.
    21 305 063 Р
    Агент
    +7 (980) Показать номер
    Посмотреть контакты
    Офис в Москва Киевское шоссе, 22-й км, 6Ас1кВ2 (6898 м) - Фото 1
    Офис в Москва Киевское шоссе, 22-й км, 6Ас1кВ2 (6898 м) - Фото 2
    4-й этаж, всего 7 этажей

    ID 031765. Предложение от собственника. Сдаётся офис 6 898 кв.м. смешанной планировки в бизнес-центре КомСити класса A. Под отделку. Помещение без отделки. Без комиссии.КомСити — бизнес-центр класса А. Территория комплекса включает благоустроенное зелёное...
    • 4/7 эт.
    20 424 198 Р
    Агент
    +7 (980) Показать номер
    Посмотреть контакты
    Офис в Москва Киевское шоссе, 22-й км, 6Ас1кВ2 (6599 м) - Фото 1
    Офис в Москва Киевское шоссе, 22-й км, 6Ас1кВ2 (6599 м) - Фото 2
    3-й этаж, всего 7 этажей

    ID 031733. Предложение от собственника. Сдаётся офис 6 599 кв.м. смешанной планировки в бизнес-центре КомСити класса A. Под отделку. Помещение без отделки. Без комиссии.КомСити — бизнес-центр класса А. Территория комплекса включает благоустроенное зелёное...
    • 3/7 эт.
    20 012 651 Р
    Агент
    +7 (980) Показать номер
    Посмотреть контакты
    Офис в Москва Киевское шоссе, 22-й км, 6Ас1кВ2 (7026 м) - Фото 1
    Офис в Москва Киевское шоссе, 22-й км, 6Ас1кВ2 (7026 м) - Фото 2
    3-й этаж, всего 7 этажей

    ID 031734. Предложение от собственника. Сдаётся офис 7 026 кв.м. смешанной планировки в бизнес-центре КомСити класса A. Под отделку. Помещение без отделки. Без комиссии.КомСити — бизнес-центр класса А. Территория комплекса включает благоустроенное зелёное...
    • 3/7 эт.
    21 119 648 Р
    Агент
    +7 (980) Показать номер
    Посмотреть контакты
    Офис в Москва пер. Романов, 4С2 (2260 м) - Фото 1
    Офис в Москва пер. Романов, 4С2 (2260 м) - Фото 2
    4-й этаж, всего 7 этажей

    ID 106114. Предложение от собственника. Сдаётся офис 2 260 кв.м. смешанной планировки в бизнес-центре Романов Двор класса Prime. Готов к въезду с 01.01.2027. Стандартный офисный ремонт. Ресепшен, зона ожидания, переговорные комнаты, собственные санузлы....
    • 4/7 эт.
    20 679 000 Р
    Агент
    +7 (980) Показать номер
    Посмотреть контакты

    Не нашли подходящего объявления?

    Оставьте заявку, и наши риэлторы подберут офис в районе Москвы

    (0)