3 904 000 Р 49 320 $ или 42 510

Информация о помещении и здании

8
Этаж
14
Этажность
Развернуть
Агент
+7 (933) 786-94-18
Начать чат с агентом

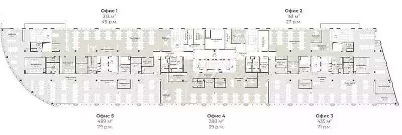
Офис в Москва ул. Правды, 26 (313 м)

ПЛАТИМ АГЕНТАМ. Поможем с планом рассадки, ремонтом, мебелью. Бизнес-центр расположен в шаговой доступности от метро в Беговом районе САО города Москвы. Презентабельная входная группа и места общего пользования. Современные инженерные системы. Реновация здания была произведена в 2017 г.Налоговая: 14. Лифты: Есть. Вентиляция: Приточно-вытяжная. Кондиционирование: Центральное. Безопасность: Круглосуточный доступ, Круглосуточная охрана, Контроль доступа, Система пожаротушений, Видеонаблюдение. Провайдеры: Ростелеком, orange business, МТС, Мастертел, Билайн Бизнес, Мегафон, Телекоммуникации СМАРТ. Парковка: Подземная, Наземная. Описание помещения: Офисный блок рассчитан наабочих мест.Функциональная планировка - есть зона ресепшн, рабочая зона open space, отдельные кабинеты, переговорные комнаты, кухня и собственные санузлы. Выполнен современный ремонт.Доступно с июля 2026 г.Планировка: смешанная. Офисная отделка. Высокие потолки. Высота потолка: 3.5м. Тип налогообложения: С НДС. Лот

Читать полностью
    Позвонить Написать
    3 904 000 Р49 320 $ или 42 510
    Агент
    +7 (933) 786-94-18
    Начать чат с агентом
    Похожие предложения
    Офис (313 м) - Фото 1
    Офис (313 м) - Фото 2
    8-й этаж, всего 14 этажей

    Офисное помещение 313 кв. м в бизнес-центре «Северное Сияние . Объект скоро освободится. Успейте забронировать на выгодных условиях. Готовность ко въезду уточняется по запросу. Округ: Северный (САО). Район: Беговой. Ближайшие станции метро: Савёловская....
    • 8/14 эт.
    3 903 986 Р
    Агент
    +7 (925) Показать номер
    Посмотреть контакты
    Офис (367 м) - Фото 1
    Офис (367 м) - Фото 2
    8-й этаж, всего 14 этажей

    АРЕНДА ОТ 11 МЕС. ТОЛЬКО ПОД ОФИС БЦ класса A «Северное Сияние , первая линия домов. Сдаётся офисное помещение свободной планировки на 8-м этаже площадью 367 кв.м. Стандартная офисная отделка. Есть охрана.НДС и эксплуатационные расходы включены. Лот...
    • 8/14 эт.
    3 903 993 Р
    Агент
    +7 (985) Показать номер
    Посмотреть контакты
    Офис в Москва 3-я Рыбинская ул., 18с22 (1231 м) - Фото 1
    Офис в Москва 3-я Рыбинская ул., 18с22 (1231 м) - Фото 2
    5-й этаж, всего 6 этажей

    Экономьте время и деньги: отрисуем планировку под вас бесплатно, с любым количеством правок. Предлагаем в аренду офис в бизнес-центре Буревестник по адресу: Москва, 3-я Рыбинская улица, 18с22.Рабочих мест: от 154 до 273*.Площадь: 1 231 м2.Планировка:...
    • 5/6 эт.
    3 949 964 Р
    Агент
    +7 (980) Показать номер
    Посмотреть контакты
    Офис в Москва просп. Лихачева, 5к1 (1593 м) - Фото 1
    Офис в Москва просп. Лихачева, 5к1 (1593 м) - Фото 2
    4-й этаж, всего 23 этажа

    Сдается в аренду офисное помещение на 4 этаже в Технопарке ЗИЛ (комплекс А1), А класса, который находится по адресу: ул. Автозаводская, д. 23, стр. 85. Без комиссии для Арендатора ЛОКАЦИЯ:- Пешая доступность от станций метро ЗИЛ, Тульская, Верхние котлы....
    • 4/23 эт.
    3 982 500 Р
    Агент
    +7 (989) Показать номер
    Посмотреть контакты
    Офис в Москва ул. Наметкина, 12А (1321 м) - Фото 1
    Офис в Москва ул. Наметкина, 12А (1321 м) - Фото 2
    20-й этаж, всего 25 этажей

    АРЕНДА ОТ СОБСТВЕННИКАГазойл Плаза, Москва, ул Намёткина, 12АЗвоните и пишите прямо сейчас — не упустите возможность арендовать идеальный офис для Вашего бизнеса в отличном месте Сотрудничаем с агентами.- Удобная транспортная доступность — всего несколько...
    • 20/25 эт.
    3 852 917 Р
    Агент
    +7 (919) Показать номер
    Посмотреть контакты

    Не нашли подходящего объявления?

    Оставьте заявку, и наши риэлторы подберут офис в районе Москвы

    (0)