974 400 Р 12 150 $ или 10 590

Информация о помещении и здании

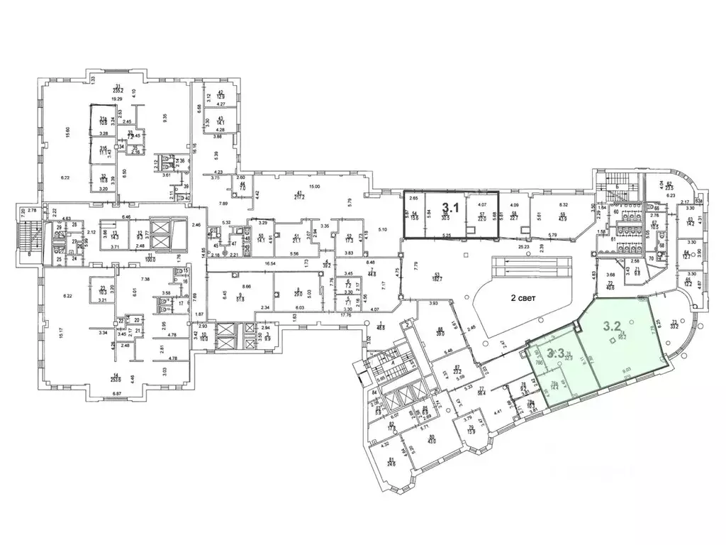
5
Этаж
12
Этажность
Развернуть
Агент
+7 (925) 564-34-05
Начать чат с агентом

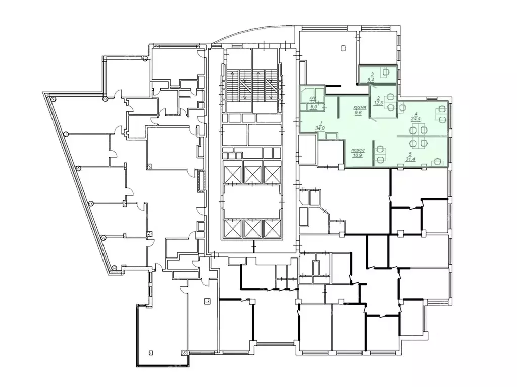
Офис (263 м)

Предлагаем в долгосрочную прямую аренду офисный блок класса А общей площадью 263 кв.м в бизнес-центре Мосэнка Парк Тауэрс .Москва, ЦАО, Таганская улица, 17-23Удобное расположение здания для всех видов транспорта:- Автомобиль: близость транспортных магистралей, таких как Садовое Кольцо, Волгоградский проспект и других.- Возможность аренды парковочных мест.- Ближайшее метро: от метро Марксистская всего 5 мин пешком Офис класса А:- Помещение готово к въезду- Вентиляция: Приточно-вытяжная вентиляция - Кондиционирование: центральное - Презентабельный центральный ресепшн- Круглосуточная охрана и видеонаблюдениеЕсли данное предложение подходит Вашему запросу: 1. Мы подготовили презентацию с информацией о помещении, фотографиями и планировкой, чтобы Вы могли поделиться ей с коллегами или руководством. Попросите об этом нашего менеджера по телефону в объявлении. 2. Ответим на любые Ваши вопросы, готовы обсуждать любые предложения по коммерческим условиям аренды помещения. 3. Оперативно организуем просмотр помещения, договоримся на любое удобное время, подготовим виртуальный тур. Звоните нам в любое время. По будням мы сможем ответить на Ваши вопросы до 19:00. В выходные или вечернее время мы передадим Ваш контакт нашему менеджеру по аренде. НОМЕР ОБЪЯВЛЕНИЯ: №1378093

Читать полностью
    Позвонить Написать
    974 400 Р12 150 $ или 10 590
    Агент
    +7 (925) 564-34-05
    Начать чат с агентом
    Похожие предложения
    Офис в Москва Ленинский просп., 15А (157 м) - Фото 1
    Офис в Москва Ленинский просп., 15А (157 м) - Фото 2
    10-й этаж, всего 22 этажа

    ЛотПредложение от Собственника Предлагается к аренде офисное помещение общей площадью 157.3 м, расположенное на 10 этаже здания. Помещение выполнено с качественным современным ремонтом, готово к немедленному заселению.Объект обладает выгодным местоположением...
    • 10/22 эт.
    975 523 Р
    Агент
    +7 (986) Показать номер
    Посмотреть контакты
    Офис в Москва Ленинский просп., 15А (157 м) - Фото 1
    Офис в Москва Ленинский просп., 15А (157 м) - Фото 2
    10-й этаж, всего 22 этажа

    Офисное помещение 157.3 кв. м в бизнес-центре Central Park Tower. Объект скоро освободится. Успейте забронировать на выгодных условиях. Готовность ко въезду уточняется по запросу. Округ: Южный (ЮАО). Район: Донской. Ближайшие станции метро: Шаболовская,...
    • 10/22 эт.
    975 575 Р
    Агент
    +7 (915) Показать номер
    Посмотреть контакты
    Офис в Москва ул. Арбат, 10 (170 м) - Фото 1
    Офис в Москва ул. Арбат, 10 (170 м) - Фото 2
    3-й этаж, всего 7 этажей

    Офисное помещение 170 кв. м в бизнес-центре Midland Plaza. Объект скоро освободится. Успейте забронировать на выгодных условиях. Готовность ко въезду уточняется по запросу. Округ: Центральный (ЦАО). Район: Арбат. Ближайшие станции метро: Арбатская, Смоленская....
    • 3/7 эт.
    965 600 Р
    Агент
    +7 (915) Показать номер
    Посмотреть контакты
    Офис в Москва Холодильный пер., 3к1с3 (210 м) - Фото 1
    Офис в Москва Холодильный пер., 3к1с3 (210 м) - Фото 2
    1-й этаж, всего 5 этажей

    Экономьте время и деньги: отрисуем планировку под вас бесплатно, с любым количеством правок. Предлагаем в аренду офис в бизнес-центре Товарищество Рябовской мануфактуры СТР 3 по адресу: Москва, Холодильный переулок, 3к1с3.Рабочих мест: от 27 до 46*.Площадь:...
    • 1/5 эт.
    979 067 Р
    Агент
    +7 (980) Показать номер
    Посмотреть контакты
    Офис в Москва ул. Большая Якиманка, 17/2С1 (215 м) - Фото 1
    Офис в Москва ул. Большая Якиманка, 17/2С1 (215 м) - Фото 2
    3-й этаж, всего 5 этажей

    ЛотПредложение от Собственника Предлагается в аренду офисное помещение класса В+ общей площадью 214,8 м в Бизнес Центре Якиманка . БЦ расположен в престижном районе с отличной транспортной доступностью, в пешей доступности от станций метро Полянка...
    • 3/5 эт.
    966 600 Р
    Агент
    +7 (986) Показать номер
    Посмотреть контакты

    Не нашли подходящего объявления?

    Оставьте заявку, и наши риэлторы подберут офис в районе Москвы

    (0)