1 265 250 Р 16 370 $ или 13 860

Информация о помещении и здании

4
Этаж
7
Этажность
Развернуть
Агент
+7 (965) 397-62-45
Начать чат с агентом

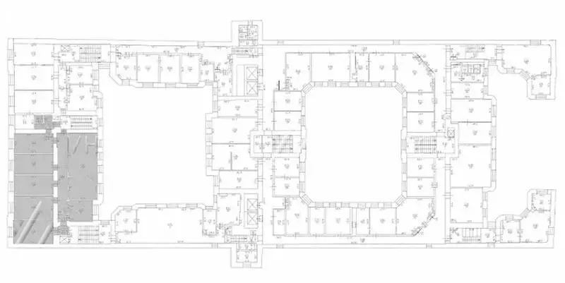
Офис (250 м)

Предлагаем в аренду офис в БЦ «Лесная 43 класса Б+. Общая площадь 250 кв.м.Планировка смешанная, кухня.Помещение с отделкойВентиляция: Приточно-вытяжнаяКондиционирование: Центральное В пешей доступности от станции м. Белорусская, м. Менделеевская, м. Новослободская. Охрана, круглосуточное видеонаблюдение, сигнализация. Долгосрочный договор аренды.Коммунальные платежи по приборам учетаРасположение центра выделяется и хорошей транспортной доступностью - рядом несколько станций метро, вокзал и аэроэкспресс, дорога до ТТК и Садового кольца занимает всего 5 минут.Доступ 24/7Интернет провайдеры: Вестколл, Билайн, Проксима.Парковка за 1 м/м- 15 000р в месяц с НДС Свободно

Читать полностью
    Позвонить Написать
    1 265 250 Р16 370 $ или 13 860
    Агент
    +7 (965) 397-62-45
    Начать чат с агентом
    Похожие предложения
    Офис (250 м) - Фото 1
    Офис (250 м) - Фото 2
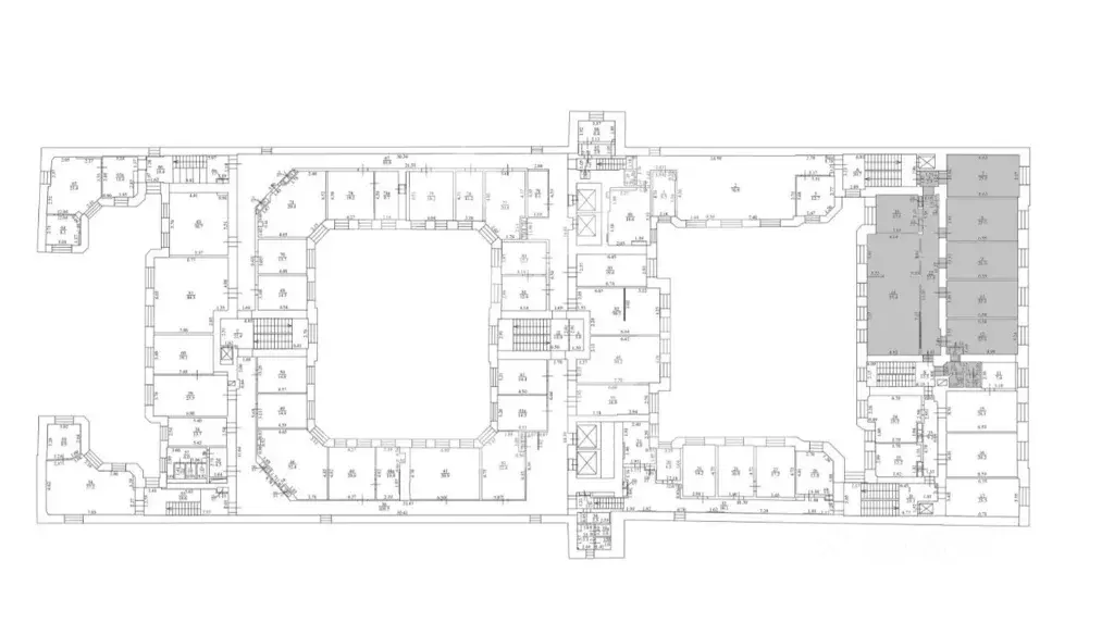
    4-й этаж, всего 7 этажей

    АРЕНДА ОТ 11 МЕС. ТОЛЬКО ПОД ОФИС Бизнес-центр класса B, первая линия домов. Сдаётся под офис блок с санузлом на 4-м этаже площадью 250 кв.м. Стандартная офисная отделка. Кондиционер (сплит), вентиляция. Есть охрана.НДС включен. Лот № 247201. С риелторами...
    • 4/7 эт.
    1 265 250 Р
    Агент
    +7 (985) Показать номер
    Посмотреть контакты
    Офис в Москва Лесная ул., 43 (250 м) - Фото 1
    Офис в Москва Лесная ул., 43 (250 м) - Фото 2
    4-й этаж, всего 7 этажей

    1128044 . Предлагаем в аренду офисное помещение площадью 250 кв. м., расположенное в бизнес-центре Лесная 43 Преимущества объекта:- Бизнес-центр класса В- Шаговая доступность от станций метро Белорусская и Менделеевская (8 минут пешком)- Этаж: 4-...
    • 4/7 эт.
    1 265 250 Р
    Агент
    +7 (938) Показать номер
    Посмотреть контакты
    Офис в Москва ул. 3-я Ямского Поля, 32 (484 м) - Фото 1
    Офис в Москва ул. 3-я Ямского Поля, 32 (484 м) - Фото 2
    7-й этаж, всего 8 этажей

    Предложение в аренду 62278.Парковка: подземная 14000р/мес.Предлагаем в аренду офис в бизнес-центре класса В в Беговом районе. До м.Белорусская 10 минут пешком.. Офис расположен на 7-ом этаже, кабинетная планировка, стандартный офисный ремонт, свои с/у....
    • 7/8 эт.
    1 376 933 Р
    Агент
    +7 (989) Показать номер
    Посмотреть контакты
    Офис в Москва 1-я Тверская-Ямская ул., 23С1 (379 м) - Фото 1
    Офис в Москва 1-я Тверская-Ямская ул., 23С1 (379 м) - Фото 2
    7-й этаж, всего 9 этажей

    Экономьте время и деньги: отрисуем планировку под вас бесплатно, с любым количеством правок. Предлагаем в аренду Офис в бизнес-центре Парус по адресу: Москва, 1-я Тверская-Ямская улица, 23с1.Рабочих мест: от 48 до 84*.Площадь: 379 м2.Планировка: смешанная.Состояние:...
    • 7/9 эт.
    1 326 500 Р
    Агент
    +7 (980) Показать номер
    Посмотреть контакты
    Офис в Москва ул. 3-я Ямского Поля, 18 (376 м) - Фото 1
    Офис в Москва ул. 3-я Ямского Поля, 18 (376 м) - Фото 2
    4-й этаж, всего 9 этажей

    ВСЕ ВКЛЮЧЕНО БЕЗ КОМИССИИ Прямая аренда от собственника В бизнес-центре Золотой Век сдаются в долгосрочную аренду офисы площадью 135/ 166/ 209 кв.м. БЦ класс В.5 мин. пешком от ст. м Белорусская Кремль в 5- мин. езды Высокие потолки. Офисный ремонт....
    • 4/9 эт.
    1 226 800 Р
    Агент
    +7 (994) Показать номер
    Посмотреть контакты

    Не нашли подходящего объявления?

    Оставьте заявку, и наши риэлторы подберут офис в районе Москвы

    (0)