1 863 000 Р 24 110 $ или 20 410

Информация о помещении и здании

8
Этаж
9
Этажность
Развернуть
Агент
+7 (986) 274-27-15
Начать чат с агентом

Офис в Москва ул. Кржижановского, 14К3 (552 м)

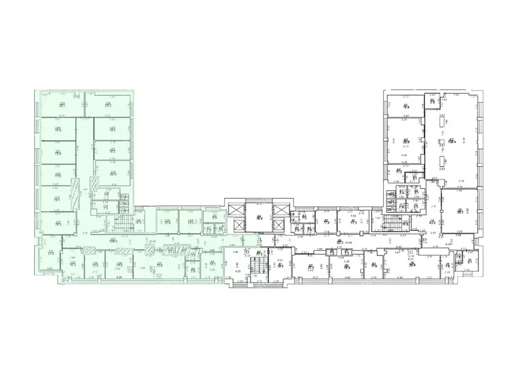
ЛотПредложение от Собственника В аренду предлагается вакантный офисный блок общей площадью 552 кв.м., занимающий половину 8го этажа в бизнес-центре Ферро-Плаза класса B+. Ключевым преимуществом локации является близость к станции метро Профсоюзная , путь до которой занимает около четырех минут пешком. Планировка блока смешанная, выполнен качественный ремонт. Бизнес-центр представляет собой комплекс из нового и реконструированного зданий, объединенных единым фасадом. Объект включает 9 наземных и 2 подземных этажа. Для арендаторов созданы все необходимые условия для работы: развитая инфраструктура включает ресепшн, современные лифты, системы кондиционирования и вентиляции, услуги телефонии и интернета, конференц-зал, кафе и ресторан, нотариальную контору. Обеспечивается круглосуточная охрана и пропускной режим, функционирует пожарная сигнализация.Помещения отличаются качественной отделкой и комфортной организацией пространства. Большая зона остекления в сочетании с небольшим углублением в центр здания создает комфортную разбивку площадей с обилием естественного освещения. Для арендаторов доступна двухъярусная подземная парковка на 110 машино-мест стоимостью за одно место в месяц. В цену включено: затраты на электричество, коммунальные расходы, НДС 22 . Обеспечительный платеж 2 месяцa.Чтобы получить ПОДРОБНУЮ ПРЕЗЕНТАЦИЮ С ПЛАНИРОВКОЙ И ФОТОГРАФИЯМИ, звоните или отправьте свой email и номер телефона в сообщении на портале. Высылаем в течение 15 минут по запросу Конт. лицо: Светлана Анатольевна, доб. 236, ЛОТ 1045537

Читать полностью
    Позвонить Написать
    1 863 000 Р24 110 $ или 20 410
    Агент
    +7 (986) 274-27-15
    Начать чат с агентом
    Похожие предложения
    Офис в Москва ул. Кржижановского, 14К3 (552 м) - Фото 1
    Офис в Москва ул. Кржижановского, 14К3 (552 м) - Фото 2
    8-й этаж, всего 10 этажей

    Офисное помещение 552 кв. м в бизнес-центре Радеж .Округ: Юго-Западный (ЮЗАО). Район: Академический. Ближайшие станции метро: Профсоюзная. Характеристики:- Класс: B+; - Арендопригодная площадь: 12081.9; - Код налоговой: 27; - Размер типового этажа: 1000;...
    • 8/10 эт.
    1 839 816 Р
    Агент
    +7 (915) Показать номер
    Посмотреть контакты
    Офис в Москва ул. Кржижановского, 14К3 (552 м) - Фото 1
    Офис в Москва ул. Кржижановского, 14К3 (552 м) - Фото 2
    8-й этаж, всего 10 этажей

    ПЛАТИМ АГЕНТАМ. Поможем с планом рассадки, ремонтом, мебелью. Комплекс состоит из двух зданий - современного десятиэтажного корпуса и реконструированной части - пятиэтажного здания с двухэтажной надстройкой и мансардой. Красивый фасад, сочетающий в себе...
    • 8/10 эт.
    1 886 000 Р
    Агент
    +7 (933) Показать номер
    Посмотреть контакты
    Офис в Москва ул. Кржижановского, 14К3 (550 м) - Фото 1
    Офис в Москва ул. Кржижановского, 14К3 (550 м) - Фото 2
    8-й этаж, всего 10 этажей

    ПРЯМАЯ АРЕНДА Офис на 8 этаже площадью 550 м2. Ремонт за выездом арендатора. Планировка кабинетная. Приточно-вытяжная система вентиляции, центральная система кондиционирования.Подземная парковка.Арендные каникулы и ставка обсуждается, ТОРГ. Класс B+3...
    • 8/10 эт.
    1 833 334 Р
    Агент
    +7 (915) Показать номер
    Посмотреть контакты
    Офис (552 м) - Фото 1
    Офис (552 м) - Фото 2
    8-й этаж, всего 9 этажей

    Лот №1045537 Предложение от Собственника Напишите нам в Ватсап, чтобы получить ПОДРОБНУЮ ПРЕЗЕНТАЦИЮ С ПЛАНИРОВКОЙ И ФОТОГРАФИЯМИ В аренду предлагается вакантный офисный блок общей площадью 552 кв.м., занимающий половину 8го этажа в бизнес-центре «Ферро-Плаза...
    • 8/9 эт.
    1 863 000 Р
    Агент
    +7 (495) Показать номер
    Посмотреть контакты
    Офис (552 м) - Фото 1
    Офис (552 м) - Фото 2
    8-й этаж, всего 9 этажей

    Лот №1045537 Предложение от Собственника Напишите нам в Ватсап, чтобы получить ПОДРОБНУЮ ПРЕЗЕНТАЦИЮ С ПЛАНИРОВКОЙ И ФОТОГРАФИЯМИ В аренду предлагается вакантный офисный блок общей площадью 552 кв.м., занимающий половину 8го этажа в бизнес-центре «Ферро-Плаза...
    • 8/9 эт.
    1 863 000 Р
    Агент
    +7 (931) Показать номер
    Посмотреть контакты

    Не нашли подходящего объявления?

    Оставьте заявку, и наши риэлторы подберут офис в районе Москвы

    (0)