1 057 500 Р 13 360 $ или 11 510

Информация о помещении и здании

2
Этаж
5
Этажность
Развернуть
Агент
+7 (986) 254-08-52
Начать чат с агентом

Офис в Москва, Москва, Зеленоград проезд 4922-й, 4с5 (705 м)

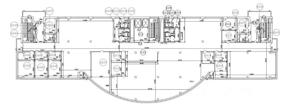
В аренду предлагаются офисные помещения площадью __ м2. Прямая аренда от собственника, без комиссии и посредников.Офис на территории технопарка ЭЛМА , состоит из 2 помещений. Есть возможность разделения на 332 кв.м. и 373 кв.м. Помещения соседние, выделены на планировке красным цветом. Помещения с хорошим ремонтом, также остается мебель столы, перегородки стеклянные.Пол керамогранит, стены оштукатурены и окрашены, освещение трековые светодиодные светильники. Ремонт не требуется.Нагрузка на перекрытие этажа 500 кг.Коммуникации центральные, кондиционеры установлены. Наличие с/у, воды и канализации в помещении. Электрическая мощность от 30 кВт с возможностью увеличить по запросу.Сервис Помещения в аренду от ДТИ Москвы - это самая актуальная база производственных объектов, которая постоянно пополняется и обновляется. Партнерами сервиса являются 110 промышленных площадок и 50 Технопарков города Москвы, которые готовы предоставить свои помещения для профильной деятельности.Мы специализируемся на подборе в аренду офисных, производственных и лабораторных площадей под различные потребности бизнеса. Помогаем подобрать помещение в технопарках и ОЭЗ города Москвы. Условия работы:- БЕЗ комиссионного вознаграждения,- Наши услуги бесплатны для всех сторон сделки,- Мы не работаем с брокерами, риэлторами и агентами,- Мы с радостью ответим Вам в будни с 09.00 до 18.00 по Мск. Если не ответили на звонок, мы вам обязательно перезвоним.Больше объектов в нашем профиле Звоните прямо сейчас и запишитесь на просмотр Добавьте объявление в Избранное, чтобы не потерять

Читать полностью
    Позвонить Написать
    1 057 500 Р13 360 $ или 11 510
    Агент
    +7 (986) 254-08-52
    Начать чат с агентом
    Похожие предложения
    Офис (317.26 м) - Фото 1
    Офис (317.26 м) - Фото 2
    3-й этаж, всего 19 этажей

    Офисное помещение 317.3 кв. м в бизнес-центре «Алгоритм . Объект скоро освободится. Успейте забронировать на выгодных условиях. Готовность ко въезду уточняется по запросу. Округ: Юго-Западный (ЮЗАО). Район: Ломоносовский. Ближайшие станции метро: Новые...
    • 3/19 эт.
    1 096 672 Р
    Агент
    +7 (925) Показать номер
    Посмотреть контакты
    Офис (335 м) - Фото 1
    Офис (335 м) - Фото 2
    3-й этаж, всего 5 этажей

    Предлагаем в прямую аренду офисное помещение класса B площадью 335 кв. метров в бизнес-центре Флакон .4Удобная локация здания:- Автомобиль: близость транспортных магистралей, таких как Бутырская улица, Третье Транспортное Кольцо, Дмитровское шоссе и...
    • 3/5 эт.
    1 055 000 Р
    Агент
    +7 (925) Показать номер
    Посмотреть контакты
    Офис (393.3 м) - Фото 1
    Офис (393.3 м) - Фото 2
    6-й этаж, всего 11 этажей

    Офисное помещение 393.3 кв. м в бизнес-центре «Технопарк Отрадное .Округ: Северо-Восточный (СВАО). Район: Отрадное. Ближайшие станции метро: Отрадное, Владыкино. Характеристики:- Класс: B; - Арендопригодная площадь: 49450; - Код налоговой: 15; - Размер...
    • 6/11 эт.
    1 068 478 Р
    Агент
    +7 (925) Показать номер
    Посмотреть контакты
    Офис в Москва ул. Годовикова, 9С10 (342 м) - Фото 1
    Офис в Москва ул. Годовикова, 9С10 (342 м) - Фото 2
    1-й этаж, всего 6 этажей

    Прямая аренда офиса в БЦ Технопарк Калибр .Офисное пространство 342 кв.м.с панорамным остеклением и дизайнерским ремонтомИнфраструктура здания:— Приточно-вытяжная вентиляция офисных площадей;— Центральное кондиционирование (Мультизональные системы, по...
    • 1/6 эт.
    1 126 749 Р
    Агент
    +7 (985) Показать номер
    Посмотреть контакты
    Офис в Москва ул. Двинцев, 3 (272 м) - Фото 1
    Офис в Москва ул. Двинцев, 3 (272 м) - Фото 2
    18-й этаж, всего 25 этажей

    Аренда представительского офиса в бизнес-центре Stone Савеловская класса А.Ищете офис, который подчеркнет статус вашей компании и вдохновит команду? Тогда это предложение именно для вас Характеристика офиса:- Shell Core — возможность реализовать собственную...
    • 18/25 эт.
    1 020 750 Р
    Агент
    +7 (923) Показать номер
    Посмотреть контакты

    Не нашли подходящего объявления?

    Оставьте заявку, и наши риэлторы подберут офис в районе Москвы

    (0)