7 512 500 Р 95 410 $ или 81 750

Информация о помещении и здании

4
Этаж
9
Этажность
Развернуть
Агент
+7 (932) 441-24-96
Начать чат с агентом

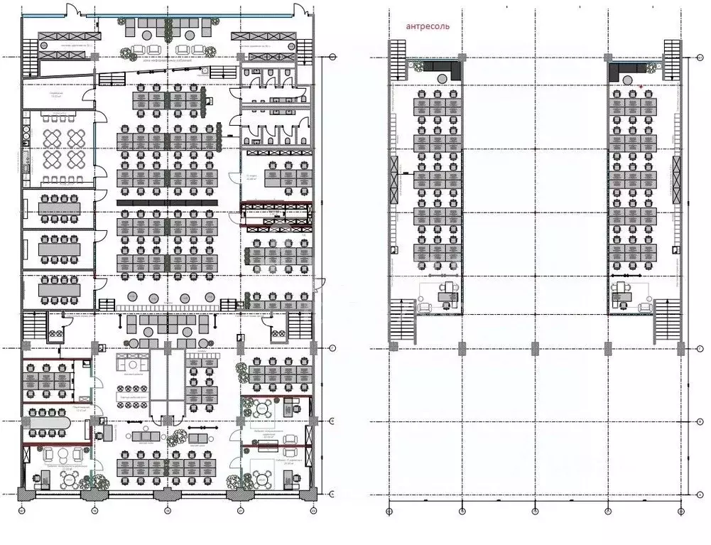
Офис (1803 м)

Предлагаем в аренду офисный блок 1803 кв.м. на 4 этаже по адресу ул Орджоникидзе, д. 11/52. В здании установлена современная система центрального кондиционирования, а также эффективная приточно-вытяжная вентиляция для комфортной работы. Есть подземная парковка. Договор с собственником помещения. Без комиссии. Возможен торг и предоставление арендных каникул. По всем вопросам звоните с 9:30 до 21:00. Оперативно организуем просмотр, при необходимости, бесплатно подготовим план рассадки ваших сотрудников. 8288

Читать полностью
    Позвонить Написать
    7 512 500 Р95 410 $ или 81 750
    Агент
    +7 (932) 441-24-96
    Начать чат с агентом
    Похожие предложения
    Офис в Москва Варшавское ш., 9С1Б (2172 м) - Фото 1
    Офис в Москва Варшавское ш., 9С1Б (2172 м) - Фото 2
    4-й этаж, всего 5 этажей

    Экономьте время и деньги: отрисуем планировку под вас бесплатно, с любым количеством правок. Предлагаем в аренду Офис в бизнес-центре КНОП,Батистовый по адресу: Москва, Варшавское шоссе, 9с1Б.Рабочих мест: от 272 до 482*.Площадь: 2 172 м2.Планировка:...
    • 4/5 эт.
    7 597 333 Р
    Агент
    +7 (980) Показать номер
    Посмотреть контакты
    Офис (1175.2 м) - Фото 1
    Офис (1175.2 м) - Фото 2
    2-й этаж, всего 3 этажа

    Характеристики:- 1 линия- Общая входная группа- Общая парковка- Доступ 24/7- ХВС/ГВС- Свой санузел- Центральное отопление- Есть кондиционер- Чистовой ремонт- Открытая планировка- Бизнес центр- Имеется лифт- Высота потолков 5 м- Видеонаблюдение- С мебелью-...
    • 2/3 эт.
    7 600 000 Р
    Агент
    +7 (919) Показать номер
    Посмотреть контакты
    Офис в Москва ул. Сущевский Вал, 2 (1500 м) - Фото 1
    Офис в Москва ул. Сущевский Вал, 2 (1500 м) - Фото 2
    2-й этаж, всего 8 этажей

    Сдаются в аренду офисные помещения со 2 по 4 этажи (полностью) в бизнес-центре В класса, который находится по адресу: ул. Сущевский Вал, д. 2. Без комиссии для Арендатора ЛОКАЦИЯ: Шаговая доступность от станций метро Савеловская, Менделеевская, Новослободская....
    • 2/8 эт.
    7 500 000 Р
    Агент
    +7 (989) Показать номер
    Посмотреть контакты
    Офис в Москва наб. Пресненская, 10 (742 м) - Фото 1
    Офис в Москва наб. Пресненская, 10 (742 м) - Фото 2
    44-й этаж, всего 59 этажей

    Решение под ключ. Предлагаем в аренду видовой офис в строении C с выполненной офисной отделкой. Помещение полностью готово к въезду и позволяет начать работу в кратчайшие сроки без дополнительных вложений в ремонт.Пространство обладает стандартной планировкой,...
    • 44/59 эт.
    7 543 667 Р
    Агент
    +7 (980) Показать номер
    Посмотреть контакты
    Офис в Москва Холодильный пер., 3 (1175 м) - Фото 1
    Офис в Москва Холодильный пер., 3 (1175 м) - Фото 2
    2-й этаж, всего 3 этажа

    Уважаемые арендаторы Брокерам, представителям арендатора мы мы выплачиваем комиссию 3 000 Собственником сдается: 2 этаж, Площадь - 1175,2 м2 Количество рм - 200 Стоимость за рм -уб (уб в месяц) Срок договора - 3 года В стоимость включено: 1. Аренда...
    • 2/3 эт.
    7 600 000 Р
    Агент
    +7 (980) Показать номер
    Посмотреть контакты

    Не нашли подходящего объявления?

    Оставьте заявку, и наши риэлторы подберут офис в районе Москвы

    (0)