2 549 465 Р 32 610 $ или 28 080

Информация о помещении и здании

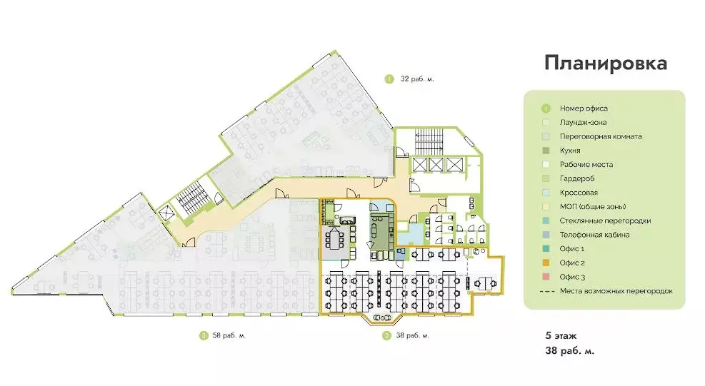
5
Этаж
9
Этажность
Развернуть
Агент
+7 (938) 656-74-88
Начать чат с агентом

Офис в Москва ул. Шаболовка, 31С5 (1013 м)

1055440 . Предлагаем в аренду офисное помещение площадью 1013,2 кв. м, расположенное в бизнес-центре Шаболовка 31 Преимущества объекта: - Бизнес-центр класса В- Шаговая доступность от станции метро Шаболовская (3 минуты пешком)- Этаж: 5- Помещение предлагается с отделкой- Планировка кабинетная- Помещение свободно - Наземная парковка на охраняемой огороженной территории- Отдельный входЭксплуатационные и коммунальные платежи включены в ставку.Оперативно организуем для Вас показ и ответим на все вопросы.Свяжитесь с нами для получения дополнительной информации

Читать полностью
    Позвонить Написать
    2 549 465 Р32 610 $ или 28 080
    Агент
    +7 (938) 656-74-88
    Начать чат с агентом
    Похожие предложения
    Офис в Москва Новослободская ул., 16 (266 м) - Фото 1
    Офис в Москва Новослободская ул., 16 (266 м) - Фото 2
    5-й этаж, всего 9 этажей

    ВАЖНО: БЕЗ КОММИССИ ДЛЯ АРЕНДАТОРОВ, ПРЯМАЯ АРЕНДА ОТ СОБСТВЕННИКАБизнес-центр B+ класса Новослободскаяасположен по адресу Москва, ЦАО, район Тверской, Новослободская ул., 16, в пешей доступности от метро Новослободская (3 мин), метро Савёловская (18...
    • 5/9 эт.
    2 469 988 Р
    Агент
    +7 (916) Показать номер
    Посмотреть контакты
    Офис в Москва ул. Шаболовка, 31С5 (997 м) - Фото 1
    Офис в Москва ул. Шаболовка, 31С5 (997 м) - Фото 2
    2-й этаж, всего 5 этажей

    АРЕНДА ОТ СОБСТВЕННИКАЗвоните и пишите прямо сейчас — не упустите возможность арендовать идеальный офис для Вашего бизнеса в отличном месте Рассмотрим любых арендаторов - Удобная транспортная доступность — всего несколько минут от метро.- Современный...
    • 2/5 эт.
    2 467 575 Р
    Агент
    +7 (919) Показать номер
    Посмотреть контакты
    Офис в Москва 2-й Обыденский пер., 11С2 (360 м) - Фото 1
    Офис в Москва 2-й Обыденский пер., 11С2 (360 м) - Фото 2
    3-й этаж, всего 6 этажей

    АРЕНДА ОТ СОБСТВЕННИКАМосква, пер Обыденский 2-й, 11 стр 2Звоните и пишите прямо сейчас — не упустите возможность арендовать идеальный офис для Вашего бизнеса в отличном месте Сотрудничаем с агентами.- Удобная транспортная доступность — всего несколько...
    • 3/6 эт.
    2 440 020 Р
    Агент
    +7 (919) Показать номер
    Посмотреть контакты
    Офис в Москва Летниковская ул., 10С4 (753 м) - Фото 1
    Офис в Москва Летниковская ул., 10С4 (753 м) - Фото 2
    2-й этаж, всего 9 этажей

    Экономьте время и деньги: отрисуем планировку под вас бесплатно, с любым количеством правок. Предлагаем в аренду офис в бизнес-центре Святогор 4 по адресу: Москва, Летниковская улица, 10с4.Рабочих мест: от 95 до 167*.Площадь: 753 м2.Планировка: смешанная.Состояние:...
    • 2/9 эт.
    2 475 334 Р
    Агент
    +7 (980) Показать номер
    Посмотреть контакты
    Офис в Москва Летниковская ул., 10С4 (782 м) - Фото 1
    Офис в Москва Летниковская ул., 10С4 (782 м) - Фото 2
    2-й этаж, всего 9 этажей

    Экономьте время и деньги: отрисуем планировку под вас бесплатно, с любым количеством правок. Предлагаем в аренду офис в бизнес-центре Святогор 4 по адресу: Москва, Летниковская улица, 10с4.Рабочих мест: от 98 до 173*.Площадь: 782 м2.Планировка: смешанная.Состояние:...
    • 2/9 эт.
    2 531 280 Р
    Агент
    +7 (980) Показать номер
    Посмотреть контакты

    Не нашли подходящего объявления?

    Оставьте заявку, и наши риэлторы подберут офис в районе Москвы

    (0)