1 012 500 Р 11 930 $ или 10 450

Информация о помещении и здании

1
Этаж
5
Этажность
Развернуть
Агент
+7 (980) 417-92-31
Начать чат с агентом

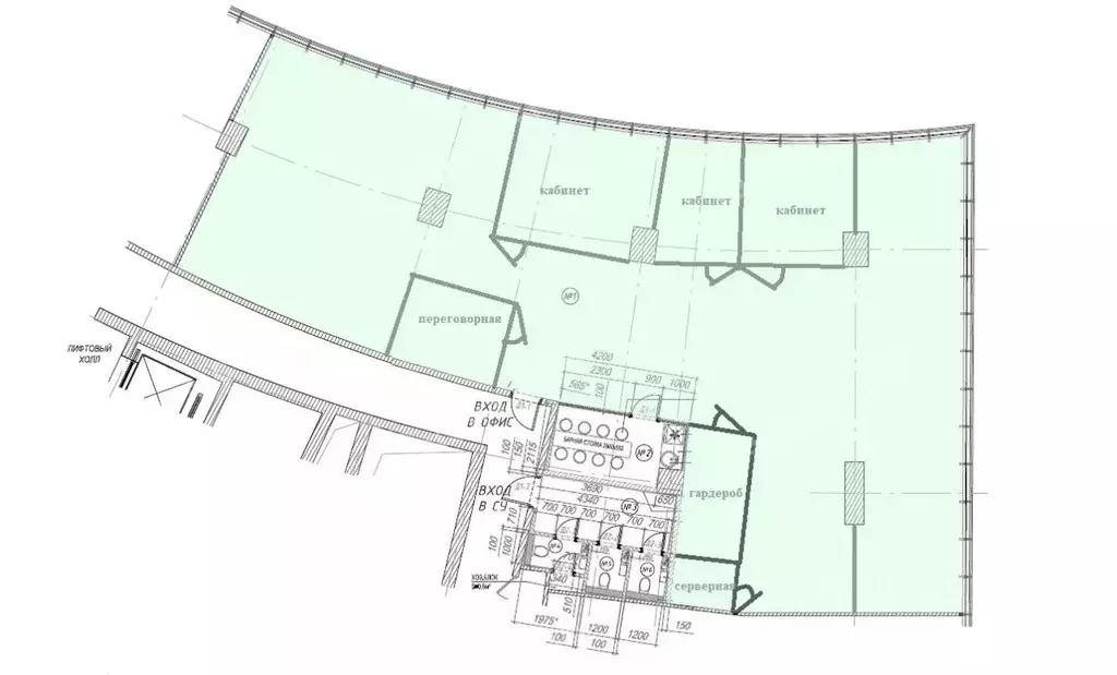
Офис в Москва ул. Гиляровского, 65С1 (243 м)

Экономьте время и деньги: отрисуем планировку под вас бесплатно, с любым количеством правок. Предлагаем в аренду офис в бизнес-центре ул. Гиляровского, 65 с1, 2, 4, 5 по адресу: Москва, улица Гиляровского, 65с1.Рабочих мест: от 31 до 54*.Площадь: 243 м2.Планировка: смешанная.Состояние: готово к въезду.Ставка (включая эксплуатацию): за м2/год.Арендная плата:/мес.Класс здания: B.Налог: включая НДС.Коммунальные расходы: оплачиваются по факту.Этаж: 1 из 5.Тип аренды: прямая аренда.Метро рядом: м. Рижская в 7 минутах пешком. Этот адрес обслуживает налоговая 2. Парковка наземная.Системы здания:Вентиляция: приточно-вытяжная.Кондиционирование: центральное.Пожарная сигнализация: спринклерная система.>ID объекта - 105619.*Количество рабочих мест рассчитано автоматически: от 4,5 м2 на человека до 8 м2 на человека.Почему клиенты доверяют нам?1. 12000 объектов коммерческой недвижимости Москвы и Области, включая эксклюзивные и внерыночные.2. Работаем без комиссии и скрытых платежей. Вы заключаете договор напрямую с собственником.3. Профессиональное сопровождение: консультации на каждом этапе, помощь в подборе оптимального решения для вашего бизнеса.4. 17 лет опыта в коммерческой недвижимости.Не тратьте время, доверьте поиски нам Позвоните, и мы оперативно организуем просмотр или подготовим подборку объектов.

Читать полностью
    Позвонить Написать
    1 012 500 Р11 930 $ или 10 450
    Агент
    +7 (980) 417-92-31
    Начать чат с агентом
    Похожие предложения
    Офис (194 м) - Фото 1
    Офис (194 м) - Фото 2
    8-й этаж, всего 22 этажа

    Лот №1058672 Предложение от Собственника Напишите нам в Ватсап, чтобы получить ПОДРОБНУЮ ПРЕЗЕНТАЦИЮ С ПЛАНИРОВКОЙ И ФОТОГРАФИЯМИ Предлагается в прямую аренду презентабельный офис общей площадью 194.14 кв.м., расположенный на 8 этаже бизнес центра...
    • 8/22 эт.
    986 813 Р
    Агент
    +7 (495) Показать номер
    Посмотреть контакты
    Офис в Москва Дмитровский пер., 7 (291 м) - Фото 1
    Офис в Москва Дмитровский пер., 7 (291 м) - Фото 2
    2-й этаж, всего 7 этажей

    Лот: 419281. БЕЗ КОМИССИИ Отличное предложение. Сдается офисное (ПСН) помещение в жилом комплексе Петров дом , расположенный в самом сердце Москвы, относится и по праву — к недвижимости класса De Luxe . Отдельный вход. Планировка смешанная. Высота...
    • 2/7 эт.
    1 100 000 Р
    Агент
    +7 (915) Показать номер
    Посмотреть контакты
    Офис в Москва ул. Академика Пилюгина, 22 (317 м) - Фото 1
    Офис в Москва ул. Академика Пилюгина, 22 (317 м) - Фото 2
    3-й этаж, всего 19 этажей

    АРЕНДА ОТ СОБСТВЕННИКААлгоритм, Москва, ул. Академика Пилюгина, 22Звоните и пишите прямо сейчас — не упустите возможность арендовать идеальный офис для Вашего бизнеса в отличном месте Сотрудничаем с агентами.- Удобная транспортная доступность — всего...
    • 3/19 эт.
    1 095 764 Р
    Агент
    +7 (982) Показать номер
    Посмотреть контакты
    Офис в Москва Профсоюзная ул., 65к1 (333 м) - Фото 1
    Офис в Москва Профсоюзная ул., 65к1 (333 м) - Фото 2
    2-й этаж, всего 22 этажа

    АРЕНДА ОТ СОБСТВЕННИКАLotte Center Moscow, Москва, ул Профсоюзная, 65 к 1Звоните и пишите прямо сейчас — не упустите возможность арендовать идеальный офис для Вашего бизнеса в отличном месте Сотрудничаем с агентами.- Удобная транспортная доступность...
    • 2/22 эт.
    999 000 Р
    Агент
    +7 (982) Показать номер
    Посмотреть контакты
    Офис в Москва Одесская ул., 2кА (286 м) - Фото 1
    Офис в Москва Одесская ул., 2кА (286 м) - Фото 2
    5-й этаж, всего 21 этаж

    Офисное помещение 285.5 кв. м в бизнес-центре Лотос .Округ: Юго-Западный (ЮЗАО). Район: Зюзино. Ближайшие станции метро: Нахимовский проспект, Каховская. Характеристики:- Класс: A; - Код налоговой: 27; - Размер типового этажа: 1400; - Арендопригодная...
    • 5/21 эт.
    999 250 Р
    Агент
    +7 (915) Показать номер
    Посмотреть контакты

    Не нашли подходящего объявления?

    Оставьте заявку, и наши риэлторы подберут офис в районе Москвы

    (0)