2 811 693 Р 36 390 $ или 30 800

Информация о помещении и здании

12
Этаж
12
Этажность
Развернуть
Агент
+7 (966) 172-51-09
Начать чат с агентом

Офис (680 м)

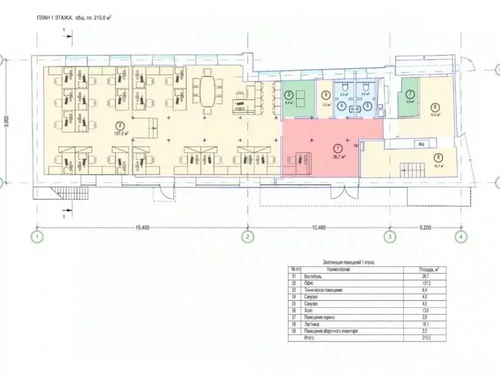
Экономьте время и деньги: отрисуем планировку под вас бесплатно, с любым количеством правок. Предлагаем в аренду Офис в бизнес-центре Мосэнка Парк Тауэрс 4 по адресу: Москва, Таганская улица, 17-23.Рабочих мест: от 85 до 151*.Площадь: 680 м2.Планировка: смешанная.Состояние: готово к въезду.Ставка (включая эксплуатацию): за м2/год.Арендная плата:/мес.Налог: включая НДС.Коммунальные расходы: оплачиваются по факту.Этаж: 4, 5, 12 из 12.Тип аренды: Прямая аренда.Охрана: круглосуточная охрана здания.Метро рядом: м. Марксистская в 5 минутах пешком, м. Таганская в 9 минутах пешком, м. Пролетарская в 12 минутах пешком. Этот адрес обслуживает налоговая №9. Парковка подземная, наземная.Системы здания:Вентиляция: приточно-вытяжная.Кондиционирование: центральное.Пожарная сигнализация: датчики пожаротушения.Этот лот состоит из нескольких помещений: 298 кв. м., 112 кв. м. и 270 кв. м.>ID объекта - 033327.*Количество рабочих мест рассчитано автоматически: от 4,5 м2 на человека до 8 м2 на человека.Почему клиенты доверяют нам?1. 12000 объектов коммерческой недвижимости Москвы и Области, включая эксклюзивные и внерыночные.2. Работаем без комиссии и скрытых платежей. Вы заключаете договор напрямую с собственником.3. Профессиональное сопровождение: консультации на каждом этапе, помощь в подборе оптимального решения для вашего бизнеса.4. 17 лет опыта в коммерческой недвижимости.Не тратьте время, доверьте поиски нам Позвоните, и мы оперативно организуем просмотр или подготовим подборку объектов.

Читать полностью
    Позвонить Написать
    2 811 693 Р36 390 $ или 30 800
    Агент
    +7 (966) 172-51-09
    Начать чат с агентом
    Похожие предложения
    Офис в Москва Таганская ул., 17-23 (680 м) - Фото 1
    Офис в Москва Таганская ул., 17-23 (680 м) - Фото 2
    12-й этаж, всего 12 этажей

    Экономьте время и деньги: отрисуем планировку под вас бесплатно, с любым количеством правок. Предлагаем в аренду Офис в бизнес-центре Мосэнка Парк Тауэрс 4 по адресу: Москва, Таганская улица, 17-23.Рабочих мест: от 85 до 151*.Площадь: 680 м2.Планировка:...
    • 12/12 эт.
    2 811 693 Р
    Агент
    +7 (980) Показать номер
    Посмотреть контакты
    Офис в Москва ул. Образцова, 4С1 (1046 м) - Фото 1
    Офис в Москва ул. Образцова, 4С1 (1046 м) - Фото 2
    1-й этаж, всего 6 этажей

    Предложение в аренду 63351.Парковка: подземная 3 м/м бесплатно.Предлагаем в аренду под моноарендатора офисное здание класса В в Марьиной роще. До м.Менделеевская/Достоевская 10 минут пешком. . Здание пятиэтажное, без подвала, площадь этажа - 209м2, высота...
    • 1/6 эт.
    2 799 968 Р
    Агент
    +7 (989) Показать номер
    Посмотреть контакты
    Офис в Москва ш. Энтузиастов, 21С1 (1500 м) - Фото 1
    Офис в Москва ш. Энтузиастов, 21С1 (1500 м) - Фото 2
    1-й этаж, всего 5 этажей

    Предложение в аренду 63098.Парковка: наземная 8 000 /месяц.Предлагается в аренду офисный блок в строении 1, в данный момент занято арендатором. Эксплуатационные расходы оплачиваются по договорённости, если в них есть необходимость. Интернет провайдеры:...
    • 1/5 эт.
    2 700 000 Р
    Агент
    +7 (989) Показать номер
    Посмотреть контакты
    Офис (831 м) - Фото 1
    Офис (831 м) - Фото 2
    1-й этаж, всего 3 этажа

    Сдается в аренду трёхэтажное здание в центре Москвы, в престижном районе Хамовники. Помещение идеально подходит для размещения медицинского центра, клиники или другого профильного учреждения.Здание расположено на первой линии домов, что обеспечивает отличную...
    • 1/3 эт.
    2 799 995 Р
    Агент
    +7 (919) Показать номер
    Посмотреть контакты
    Офис (1000 м) - Фото 1
    Офис (1000 м) - Фото 2
    1-й этаж, всего 3 этажа

    Характеристики:- 1 линия- Отдельная входная группа- Своя парковка- Есть возможность разместить вывеску- Погрузка/разгрузка: Главный вход, Запасной вход, Отдельное окно- Доступ 24/7- ХВС/ГВС- Свой санузел- Центральное отопление- Приточно-вытяжная вентиляция-...
    • 1/3 эт.
    2 900 000 Р
    Агент
    +7 (919) Показать номер
    Посмотреть контакты

    Не нашли подходящего объявления?

    Оставьте заявку, и наши риэлторы подберут офис в районе Москвы

    (0)