Россия, Москва, Большая Переяславская ул., 46С7
366 600 Р 4 660 $ или 3 990

Информация о помещении и здании

1
Этаж
2
Этажность
Развернуть
Агент
+7 (986) 274-27-15
Начать чат с агентом

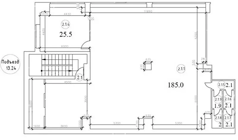
Офис в Москва Большая Переяславская ул., 46С7 (183 м)

ЛотПредложение от Собственника Предлагается в аренду блок кабинетной планировки семонтом, есть кухня и собственный сан.узел. Отдельный вход. Готов к въезду. Помещение оборудовано: кондиционированием, видеонаблюдением, системой пожарной, охранной сигнализации и оповещения о пожаре. Здание обеспечено круглосуточной охраной, пожарной сигнализацией и видео наблюдением.Здание расположено в центральном административном и жилом районе столицы, отличается высокой транспортной и пешеходной доступностью. Парковка для клиентов вдоль фасада, возможна аренда м/м на внутренней территории. Помещение оборудовано системой приточно-вытяжной вентиляции. кондиционирования и отопления. Отдельно оплачиваются: электроэнергия, телефоны и Интернет. Провайдеры: Вымпелком, Ростелеком, Акадо, Ситителеком, RiNet и Авантел. В цену включено: коммунальные расходы, НДС 5 . В цену не включено: затраты на электричество, уборка. Обеспечительный платеж 1 месяц.Чтобы получить ПОДРОБНУЮ ПРЕЗЕНТАЦИЮ С ПЛАНИРОВКОЙ И ФОТОГРАФИЯМИ, звоните или отправьте свой email и номер телефона в сообщении на портале. Высылаем в течение 15 минут по запросу Конт. лицо: Михаил Вячеславович, доб. 216, ЛОТ 1039622

Читать полностью
    Позвонить Написать
    366 600 Р4 660 $ или 3 990
    Агент
    +7 (986) 274-27-15
    Начать чат с агентом
    Похожие предложения
    Офис в Москва Большая Переяславская ул., 46С2 (183 м) - Фото 1
    Офис в Москва Большая Переяславская ул., 46С2 (183 м) - Фото 2
    1-й этаж, всего 5 этажей

    Лот: 419234, бизнес-центр Большая Переяславская 46 с1. БЕЗ КОМИССИИ Предлагается в аренду офис общей площадью 183,3 кв.м. на 1этаже в Бизнес-центре класса В+. Отдельный вход.Планировка : кабинетная, кухня, санузел в блоке. Прямая аренда, Арендная плата...
    • 1/5 эт.
    366 600 Р
    Агент
    +7 (915) Показать номер
    Посмотреть контакты
    Офис в Москва ул. Двинцев, 3 (110 м) - Фото 1
    Офис в Москва ул. Двинцев, 3 (110 м) - Фото 2
    4-й этаж, всего 24 этажа

    Откройте для себя пространство для бизнеса, где продумано всё до мелочей — арендуйте офис в бизнесцентре класса А STONE Савеловская. Этот современный комплекс объединяет две 24 этажные офисные башни, связанные двухуровневым стилобатом. Общая наземная...
    • 4/24 эт.
    366 670 Р
    Агент
    +7 (919) Показать номер
    Посмотреть контакты
    Офис (208 м) - Фото 1
    Офис (208 м) - Фото 2
    2-й этаж, всего 3 этажа

    АРЕНДА ОТ 11 МЕС. ТОЛЬКО ПОД ОФИС Бизнес-центр. Сдаётся под офис блок с санузлом на 2-м этаже площадью 208 кв.м. Стандартная офисная отделка. Кондиционер (сплит), вентиляция. Есть охрана.НДС и эксплуатационные расходы включены. Лот № 209307. С риелторами...
    • 2/3 эт.
    363 757 Р
    Агент
    +7 (495) Показать номер
    Посмотреть контакты
    Офис (98 м) - Фото 1
    Офис (98 м) - Фото 2
    6-й этаж, всего 6 этажей

    Откройте для себя идеальное офисное пространство в Москве Представляем вам офис, оснащённый переговорной комнатой и кухней. Наша компания предлагает аренду офисных помещений, обеспечивая комфорт и удобство для вашей работы.Преимущества сотрудничества...
    • 6/6 эт.
    360 000 Р
    Агент
    +7 (916) Показать номер
    Посмотреть контакты
    Офис (98 м) - Фото 1
    Офис (98 м) - Фото 2
    5-й этаж, всего 6 этажей

    Сдается в аренду офис с полным комплексом услуг.В стоимость аренды включено: Мебель, ежедневная уборка, коммунальные и эксплуатационные платежи, интернет, юр. адрес (ИФНС 24), переговорные комнаты (2 часа в день бесплатно), персональный офис-менеджер,...
    • 5/6 эт.
    380 000 Р
    Агент
    +7 (916) Показать номер
    Посмотреть контакты

    Не нашли подходящего объявления?

    Оставьте заявку, и наши риэлторы подберут офис в районе Москвы

    (0)