2 829 760 Р 33 690 $ или 29 090

Информация о помещении и здании

1
Этаж
5
Этажность
Развернуть
Агент
+7 (923) 072-03-17
Начать чат с агентом

Офис в Москва Пречистенская наб., 17-19 (884 м)

Помещение свободного назначения с отделкойПлощадь: 884.3м, планировка - open spaceЭтаж: 1, отдельный входМожет использоваться под магазин, клиника О здании:Класс A . Год постройки: 2008. Современный деловой комплекс состоит из пяти зданий переменной этажности - 5-7 этажей, соединенных между собой стилобатной частью на 1 и 2 уровнях, где размещается торговая галерея. Офисные блоки расположены в одном из зданий с 1 по 4 этажи. В стилобатной части расположены отдельные входы в офисную (2700 кв.м.) , жилую (6277 кв.м.) и торговую (5700 кв.м.) части. Конструктивные особенности: высота потолков от перекрытия до перекрытия в офисной части 3,3 м., свободная планировка этажей.. Бизнес-центр расположен в самом сердце Москвы на Пречистенской набережной. Данный район, находящийся в непосредственной близости от Кремля (1,5 км.) и Храма Христа Спасителя, является наиболее престижным в столице и часто именуется Золотая миля . Станция метро Кропоткинская находиться в 5 минутах ходьбы.. Инфраструктура: гостиница, торговая галерея, выставочный зал. Приточно-вытяжная вентиляция. Центральное кондиционирование. Пожарная сигнализация. Электрическая мощность: 400кВт.. Интернет, телефония. Провайдер: Билайн, Westcall. Охрана. Видеонаблюдение. Система контроля доступа. Лифты: 5, KONE. ID: L13265

Читать полностью
    Позвонить Написать
    2 829 760 Р33 690 $ или 29 090
    Агент
    +7 (923) 072-03-17
    Начать чат с агентом
    Похожие предложения
    Офис в Москва Большой Саввинский пер., 11 (411 м) - Фото 1
    Офис в Москва Большой Саввинский пер., 11 (411 м) - Фото 2
    4-й этаж, всего 9 этажей

    ID: 587776Предлагается в аренду офисный блок, 411 кв.м, включает кабинеты и с/узел. Помещение оснащено: системой вентиляции и кондиционирования, слаботочными сетями - телефонией и доступом к сети интернет. Ремонт помещения выполнен по европейским стандартам...
    • 4/9 эт.
    2 840 417 Р
    Агент
    +7 (933) Показать номер
    Посмотреть контакты
    Офис в Москва ул. Земляной Вал, 68/18С3 (692 м) - Фото 1
    Офис в Москва ул. Земляной Вал, 68/18С3 (692 м) - Фото 2
    2-й этаж, всего 2 этажа

    Здание 692 м | Трёхэтажный особняк после полной реконструкции на Таганке: 4 мин пешком до м. Таганская. Готов к въезду. Идеальный офис для крупной компании: 691 м продуманного пространства с отделкой из натуральных материалов.Планировка: Кабинетная система...
    • 2/2 эт.
    2 750 000 Р
    Агент
    +7 (985) Показать номер
    Посмотреть контакты
    Офис в Москва Бумажный проезд, 19С4 (1122 м) - Фото 1
    Офис в Москва Бумажный проезд, 19С4 (1122 м) - Фото 2
    4-й этаж, всего 10 этажей

    Экономьте до 3 недель на переезде - бесплатно разработаем планировку под вашу команду с неограниченными правками.Офис 1 122 м на 141-абочих мест* в бизнес-центре Стоун Тауэрс (Башня С) (класс A), без комиссии. Открыты к диалогу по условиям аренды.Ключевые...
    • 4/10 эт.
    2 851 750 Р
    Агент
    +7 (980) Показать номер
    Посмотреть контакты
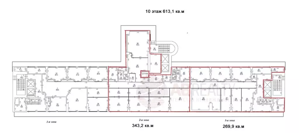
    Офис в Москва Университетский просп., 12 (613 м) - Фото 1
    Офис в Москва Университетский просп., 12 (613 м) - Фото 2
    10-й этаж, всего 12 этажей

    ВСЕ ВКЛЮЧЕНО БЕЗ КОМИССИИ Прямая аренда В БЦ Воробьевский в долгосрочную аренду от 3 лет сдается офис площадью 613,1 кв.м. БЦ В+ класс.Локация: 15 мин. пешком от м. Ломоносовский пр-т., 6 мин. авто от ТТК, 10 мин. от Садового кольца.10 этаж. Блок 613...
    • 10/12 эт.
    2 860 666 Р
    Агент
    +7 (994) Показать номер
    Посмотреть контакты
    Офис в Москва пер. Романов, 4 (300 м) - Фото 1
    Офис в Москва пер. Романов, 4 (300 м) - Фото 2
    1-й этаж, всего 7 этажей

    Сдается в аренду офисное помещение на 1 этаже в БЦ Романов Двор I, А+ класса, который находится по адресу: Романов пер., д. 4.Шаговая доступность от м. Александровский сад, Библиотека им. Ленина, Охотный ряд. Удобный выезд на улицы Большая Никитская,...
    • 1/7 эт.
    2 745 000 Р
    Агент
    +7 (989) Показать номер
    Посмотреть контакты

    Не нашли подходящего объявления?

    Оставьте заявку, и наши риэлторы подберут офис в районе Москвы

    (0)