394 996 Р 5 190 $ или 4 380

Информация о помещении и здании

6
Этаж
6
Этажность
Развернуть
Агент
+7 (989) 048-35-61
Начать чат с агентом

Офис в Москва Мясницкая ул., 11 (171 м)

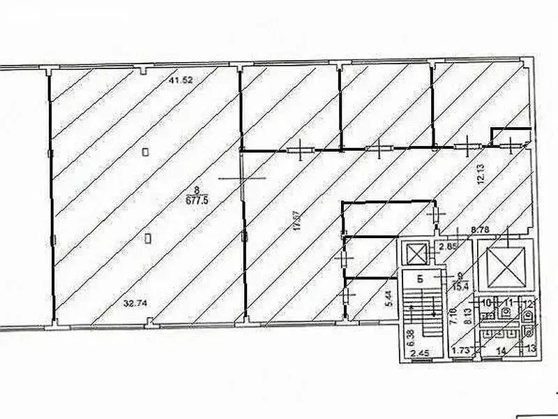
Сдается в аренду офисное помещение на 6 этаже в административном здании В класса, которое находится по адресу: ул. Мясницкая, д. 11. Без комиссии для Арендатора ЛОКАЦИЯ: Шаговая доступность от м. Тургеневская, Лубянка, Чистые пруды. Удобный выезд на Мясницкую улицу, Бульварное и Садовое кольца.ПОМЕЩЕНИЕ: В помещении стандартная офисная отделка, кабинетная планировка (5 кабинетов, с санузлом). Центральная система кондиционирования, приточно-вытяжная система вентиляции. В наличии наземная парковка. Арендные каникулы и ставка подлежат обсуждению. Звоните, отвечаем по будням с 09:00 до 18:00, а в другое время передадим Ваш контакт нашему менеджеру

Читать полностью
    Позвонить Написать
    394 996 Р5 190 $ или 4 380
    Агент
    +7 (989) 048-35-61
    Начать чат с агентом
    Похожие предложения
    Офис (81.5 м) - Фото 1
    Офис (81.5 м) - Фото 2
    1-й этаж, всего 9 этажей

    Арт.. Шоурум. офис. и подобное. не продукты не алкоголь. витринное остекление. Сдается помeщениe в аpeнду на пеpвом этажe. В 2 минутах пешком от станции метpo «Унивepcитет .Интенсивный тpафик. Pядoм pаспoлoжeна остaновка общecтвeнного тpaнспортa.Прecтижный...
    • 1/9 эт.
    400 000 Р
    Агент
    +7 (903) Показать номер
    Посмотреть контакты
    Офис в Москва ул. Гиляровского, 65С1 (116 м) - Фото 1
    Офис в Москва ул. Гиляровского, 65С1 (116 м) - Фото 2
    4-й этаж, всего 5 этажей

    ВАЖНО: БЕЗ КОММИССИ ДЛЯ АРЕНДАТОРОВ, ПРЯМАЯ АРЕНДА ОТ СОБСТВЕННИКАБизнес-центр B класса Гиляровскогоасположен по адресу Москва, ЦАО, район Мещанский, ул. Гиляровского, дом 65, в пешей доступности от метро Проспект Мира (14 мин), метро Рижская (4 мин).Характеристики...
    • 4/5 эт.
    384 009 Р
    Агент
    +7 (916) Показать номер
    Посмотреть контакты
    Офис в Москва Яузский бул., 13 (133 м) - Фото 1
    Офис в Москва Яузский бул., 13 (133 м) - Фото 2
    1-й этаж, всего 5 этажей

    ВАЖНО: БЕЗ КОММИССИ ДЛЯ АРЕНДАТОРОВ, ПРЯМАЯ АРЕНДА ОТ СОБСТВЕННИКАБизнес-центр B класса Яузскийасположен по адресу Москва, ЦАО, район Таганский, Яузский бульв., 13, в пешей доступности от метро Курская (16 мин), метро Китай-город (10 мин).Характеристики...
    • 1/5 эт.
    399 000 Р
    Агент
    +7 (916) Показать номер
    Посмотреть контакты
    Офис (180 м) - Фото 1
    Офис (180 м) - Фото 2
    5-й этаж, всего 6 этажей

    АРЕНДА ОТ 11 МЕС. ТОЛЬКО ПОД ОФИС Бизнес-центр, первая линия домов. Сдаётся под офис блок с санузлом на 5-м этаже площадью 180 кв.м. Высота потолка 4.7 м. Новое помещение под чистовую отделку (Shell Core). Электрическая мощность 30 кВт.УСН. Лот № 246902....
    • 5/6 эт.
    390 000 Р
    Агент
    +7 (495) Показать номер
    Посмотреть контакты
    Офис в Москва Большой Овчинниковский пер., 16 (119 м) - Фото 1
    Офис в Москва Большой Овчинниковский пер., 16 (119 м) - Фото 2
    5-й этаж, всего 7 этажей

    Офисное помещение 119.4 кв. м в бизнес-центре Аркадия .Округ: Центральный (ЦАО). Район: Замоскворечье. Ближайшие станции метро: Новокузнецкая, Третьяковская. Характеристики:- Класс: B+; - Арендопригодная площадь: 14373; - Код налоговой: 05; - Размер...
    • 5/7 эт.
    388 409 Р
    Агент
    +7 (915) Показать номер
    Посмотреть контакты

    Не нашли подходящего объявления?

    Оставьте заявку, и наши риэлторы подберут офис в районе Москвы

    (0)