1 804 975 Р 23 560 $ или 19 830

Информация о помещении и здании

16
Этаж
23
Этажность
Развернуть
Агент
+7 (495) 410-88-57
Начать чат с агентом

Офис (425 м)

Лот №1038054 Предложение от Собственника Напишите нам в Ватсап, чтобы получить ПОДРОБНУЮ ПРЕЗЕНТАЦИЮ С ПЛАНИРОВКОЙ И ФОТОГРАФИЯМИ Представляем к рассмотрению просторное офисное помещение № B16-3 в состоянии «под отделку . Офисы расположены в биофильной среде, из каждого из которых открывается вид на парк площадью 5000 м.Планировка этажа является оптимальной, с глубиной помещений до 10 метров, что позволяет реализовать любое планировочное решение. Конфигурация пространства исключает «темные углы и способствует эффективному размещению сотрудников.Панорамное остекление по всему периметру здания обеспечивает высокий уровень естественного освещения в течение всего дня. Также в помещениях предусмотрена возможность проветривания. Стоимость аренды:уб/м2/год (уб в месяц) УСН. В цену включено: эксплуатационные расходы. В цену не включено: коммунальные расходы, уборка.Чтобы получить ПОДРОБНУЮ ПРЕЗЕНТАЦИЮ С ПЛАНИРОВКОЙ И ФОТОГРАФИЯМИ, напишите нам в Ватсап. Высылаем в течение 15 минут по запросу Конт. лицо: Ада , доб. 264, ЛОТ №1038054

Читать полностью
    Позвонить Написать
    1 804 975 Р23 560 $ или 19 830
    Агент
    +7 (495) 410-88-57
    Начать чат с агентом
    Похожие предложения
    Офис в Москва Бумажный проезд, 19С3 (329 м) - Фото 1
    Офис в Москва Бумажный проезд, 19С3 (329 м) - Фото 2
    10-й этаж, всего 23 этажа

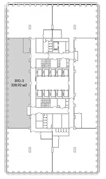
    Аренда готовых офисных пространств в бизнес-центре Tower B, в составе премиального офисного квартала STONE TOWERS в Белорусском деловом районе. Бизнес-центр рассчитан на 11 000 сотрудников.Характеристика помещения:Этаж: 10/23 (Башня В)Площадь: 328,92...
    • 10/23 эт.
    1 811 801 Р
    Агент
    +7 (933) Показать номер
    Посмотреть контакты
    Офис в Москва Бумажный проезд, 19С3 (327 м) - Фото 1
    Офис в Москва Бумажный проезд, 19С3 (327 м) - Фото 2
    10-й этаж, всего 23 этажа

    Аренда готовых офисных пространств в бизнес-центре Tower B, в составе премиального офисного квартала STONE TOWERS в Белорусском деловом районе. Бизнес-центр рассчитан на 11 000 сотрудников.Характеристика помещения:Этаж: 10/23 (Башня В)Площадь: 327,12...
    • 10/23 эт.
    1 801 886 Р
    Агент
    +7 (933) Показать номер
    Посмотреть контакты
    Офис в Москва Бумажный проезд, 19С3 (310 м) - Фото 1
    Офис в Москва Бумажный проезд, 19С3 (310 м) - Фото 2
    10-й этаж, всего 23 этажа

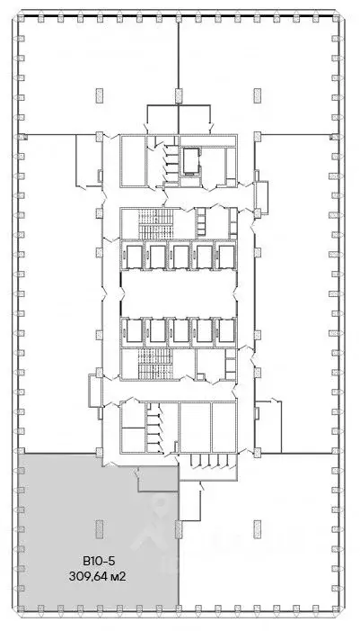
    Аренда готовых офисных пространств в бизнес-центре Tower B, в составе премиального офисного квартала STONE TOWERS в Белорусском деловом районе. Бизнес-центр рассчитан на 11 000 сотрудников.Характеристика помещения:Этаж: 10/23 (Башня В)Площадь: 309,64...
    • 10/23 эт.
    1 705 601 Р
    Агент
    +7 (933) Показать номер
    Посмотреть контакты
    Офис в Москва Бумажный проезд, 19с2 (280 м) - Фото 1
    Офис в Москва Бумажный проезд, 19с2 (280 м) - Фото 2
    13-й этаж, всего 23 этажа

    199995Офис мечты в Stone Towers: 280 м успеха и комфорта на 13 этаже.Готовое премиальное решение под ключ для команды из 30+ человек в новом бизнес-центре класса А. Идеальный баланс между эффективностью Open Space и приватностью руководства с панорамным...
    • 13/23 эт.
    1 866 668 Р
    Агент
    +7 (985) Показать номер
    Посмотреть контакты
    Офис (328.92 м) - Фото 1
    Офис (328.92 м) - Фото 2
    10-й этаж, всего 23 этажа

    Аренда готовых офисных пространств в бизнес-центре Tower B, в составе премиального офисного квартала STONE TOWERS в Белорусском деловом районе. Бизнес-центр рассчитан на 11 000 сотрудников.Характеристика помещения:Этаж: 10/23 (Башня В)Площадь: 328,92...
    • 10/23 эт.
    1 811 801 Р
    Агент
    +7 (966) Показать номер
    Посмотреть контакты

    Не нашли подходящего объявления?

    Оставьте заявку, и наши риэлторы подберут офис в районе Москвы

    (0)