Россия, Москва, пер. Нижний Сусальный, 5с2
939 584 Р 12 110 $ или 10 400

Информация о помещении и здании

2
Этаж
2
Этажность
Развернуть
Агент
+7 (986) 274-27-15
Начать чат с агентом

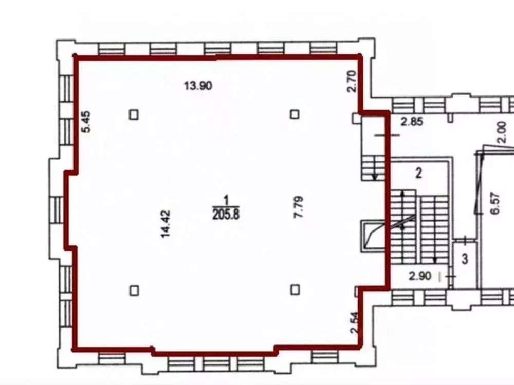
Офис в Москва пер. Нижний Сусальный, 5с2 (205 м)

ЛотПредложение от Собственника Предлагается к сдаче в аренду офисное помещение в стиле лофт, расположенное в бизнес-центре класса В+. Здание находится в непосредственной близости от метро Курская, в нескольких метрах от выхода D2/D4. Рассматривается прямая долгосрочная аренда на срок от трех до пяти лет.Помещение полностью готово к въезду и имеет смешанную планировку: офисы, open space, помещение под кухню.Есть возможность аренды вместе с мебелью. Стоимость мебели в цену аренды не входит.Инфраструктура здания и территории включает более 15 операторов телекоммуникационных услуг. Предоставляется паркинг из расчета одно машиноместо на каждые 100 квадратных метров арендуемой площади. В шаговой доступности расположены многочисленные объекты: кафе, рестораны, магазины, отделение банка и салоны красоты.Обеспечение инженерными системами соответствует высоким стандартам. Установлена центральная система кондиционирования, приточно-вытяжная вентиляция и автоматическая система пожаротушения с применением водяных и газовых модулей. Освобождается помещение через 2 месяца, но можно и раньше. В цену включено: НДС 22 . В цену не включено: затраты на электричество, коммунальные расходы, уборка. Обеспечительный платеж 2 месяцa.Чтобы получить ПОДРОБНУЮ ПРЕЗЕНТАЦИЮ С ПЛАНИРОВКОЙ И ФОТОГРАФИЯМИ, звоните или отправьте свой email и номер телефона в сообщении на портале. Высылаем в течение 15 минут по запросу Конт. лицо: Михаил Вячеславович, доб. 216, ЛОТ 1037883

Читать полностью
    Позвонить Написать
    939 584 Р12 110 $ или 10 400
    Агент
    +7 (986) 274-27-15
    Начать чат с агентом
    Похожие предложения
    Офис в Москва пер. Нижний Сусальный, 5с2 (205 м) - Фото 1
    Офис в Москва пер. Нижний Сусальный, 5с2 (205 м) - Фото 2
    1-й этаж, всего 4 этажа

    АРЕНДА ОТ СОБСТВЕННИКАМосква, пер Сусальный Ниж., 5 стр 2Звоните и пишите прямо сейчас — не упустите возможность арендовать идеальный офис для Вашего бизнеса в отличном месте Сотрудничаем с агентами.- Удобная транспортная доступность — всего несколько...
    • 1/4 эт.
    939 584 Р
    Агент
    +7 (982) Показать номер
    Посмотреть контакты
    Офис в Москва пер. Нижний Сусальный, 5с2 (205 м) - Фото 1
    Офис в Москва пер. Нижний Сусальный, 5с2 (205 м) - Фото 2
    2-й этаж, всего 2 этажа

    Аренда офиса 205 кв. м в бизнес-парке Завод Арма (строение 2) (класс B+).Этаж: 2.Отделка - с отделкойТип планировки - смешанная.Полная ставка аренды - за кв. м/год. НДС включен, эксплуатация включенаМесячный арендный платеж/месяц.Коммунальные расходы...
    • 2/2 эт.
    939 584 Р
    Агент
    +7 (910) Показать номер
    Посмотреть контакты
    Офис в Москва пер. Нижний Сусальный, 5с19 (205 м) - Фото 1
    2-й этаж, всего 5 этажей

    ВАЖНО: БЕЗ КОММИССИ ДЛЯ АРЕНДАТОРОВ, ПРЯМАЯ АРЕНДА ОТ СОБСТВЕННИКАБизнес-центр B+ класса Арма Завод расположен по адресу Москва, ЦАО, район Басманный, Нижн. Сусальный пер., дом 5 стр.19, в пешей доступности от метро Курская (4 мин).Характеристики здания:...
    • 2/5 эт.
    939 584 Р
    Агент
    +7 (916) Показать номер
    Посмотреть контакты
    Офис (205 м) - Фото 1
    Офис (205 м) - Фото 2
    2-й этаж, всего 6 этажей

    Арт.. Бизнес-квартал АРМА предлагает просторный офис 205 кв.м для вашего успехаВ современном офисном комплексе АРМА доступно помещение с продуманной смешанной планировкой: два уединённых кабинета, просторный open space и выделенное пространство под кухню....
    • 2/6 эт.
    939 600 Р
    Агент
    +7 (926) Показать номер
    Посмотреть контакты
    Офис в Москва пер. Нижний Сусальный, 5с4 (206 м) - Фото 1
    Офис в Москва пер. Нижний Сусальный, 5с4 (206 м) - Фото 2
    2-й этаж, всего 4 этажа

    Предложение в аренду 63299.Парковка: наземная/мес.Предлагаем в аренду офис в Арме. До м.КУрская 2 минуты пешком.. Офис расположен на 2-м этаже, свободная планировка, ремонт в стиле лофт. Установлена приточная вентиляция и кондиционирование.. Офис сдается...
    • 2/4 эт.
    943 250 Р
    Агент
    +7 (989) Показать номер
    Посмотреть контакты

    Не нашли подходящего объявления?

    Оставьте заявку, и наши риэлторы подберут офис в районе Москвы

    (0)