6 029 171 Р 76 170 $ или 65 650

Информация о помещении и здании

6
Этаж
6
Этажность
Развернуть
Агент
+7 (986) 362-13-52
Начать чат с агентом

Офис в Москва Ленинградский просп., 47С2 (1447 м)

ID: 586500Бизнес-центр Авион расположен в шаговой доступности от метро в близи Ленинградского проспекта, ТТК. Презентабельная входная группа и места общего пользования. Парковка на прилегающей территории.Налоговая: 14. Лифты: Есть. Вентиляция: Приточно-вытяжная. Кондиционирование: Центральное. Безопасность: Круглосуточная охрана, Контроль доступа, Система пожаротушений, Видеонаблюдение. Провайдеры: Мегафон, ВымпелКом, Логика, Биз-Телеком. Парковка: Наземная. Описание помещения: Этаж полностью свободен с января 2026 г.. Просторное светлое помещение. Выполнен качественный ремонт.Планировка: кабинетная. Офисная отделка. Тип налогообложения: С НДС. Кол-во парковочных мест: 5.Номер объекта: 1/586500/14501

Читать полностью
    Позвонить Написать
    6 029 171 Р76 170 $ или 65 650
    Агент
    +7 (986) 362-13-52
    Начать чат с агентом
    Похожие предложения
    Офис в Москва Новохохловская ул., 29 (2035 м) - Фото 1
    Офис в Москва Новохохловская ул., 29 (2035 м) - Фото 2
    1-й этаж, всего 9 этажей

    Экономьте время и деньги: отрисуем планировку под вас бесплатно, с любым количеством правок. Предлагаем в аренду офис в бизнес-центре Ринг Парк по адресу: г Москва, ул Новохохловская, д 29.Рабочих мест: от 255 до 452*.Площадь: 2 035 м2.Планировка: смешанная.Состояние:...
    • 1/9 эт.
    5 935 417 Р
    Агент
    +7 (980) Показать номер
    Посмотреть контакты
    Офис в Москва Варшавское ш., 9С1Б (1683 м) - Фото 1
    Офис в Москва Варшавское ш., 9С1Б (1683 м) - Фото 2
    3-й этаж, всего 5 этажей

    ПЛАТИМ АГЕНТАМ. Поможем с планом рассадки, ремонтом, мебелью. Уникальный Лофт-квартал Даниловская Мануфактура общей площадью почти 8 гектаров. Расположен на берегу Москва-реки всего в 5 км от Кремля в уцелевших зданиях старинной ткацкой мануфактуры XIX-го...
    • 3/5 эт.
    5 970 911 Р
    Агент
    +7 (933) Показать номер
    Посмотреть контакты
    Офис в Москва ул. Обручева, 30/1С2 (1690 м) - Фото 1
    Офис в Москва ул. Обручева, 30/1С2 (1690 м) - Фото 2
    7-й этаж, всего 13 этажей

    Офисное помещение 1 690 кв. м в бизнес-центре Кругозор .Округ: Юго-Западный (ЮЗАО). Район: Коньково. Ближайшие станции метро: Калужская. Характеристики:- Класс: A; - Арендопригодная площадь: 50660; - Код налоговой: 28; - Размер типового этажа: 940; -...
    • 7/13 эт.
    5 962 320 Р
    Агент
    +7 (915) Показать номер
    Посмотреть контакты
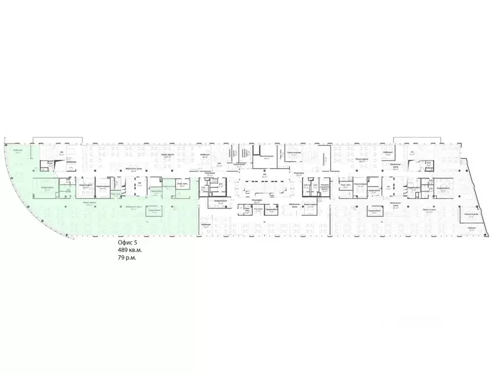
    Офис в Москва ул. Правды, 26 (489 м) - Фото 1
    Офис в Москва ул. Правды, 26 (489 м) - Фото 2
    8-й этаж, всего 14 этажей

    Офисное помещение 489 кв. м в бизнес-центре Северное Сияние . Объект скоро освободится. Успейте забронировать на выгодных условиях. Готовность ко въезду уточняется по запросу. Округ: Северный (САО). Район: Беговой. Ближайшие станции метро: Савёловская....
    • 8/14 эт.
    5 978 025 Р
    Агент
    +7 (915) Показать номер
    Посмотреть контакты
    Офис в Москва ул. Сущевский Вал, 18 (1300 м) - Фото 1
    Офис в Москва ул. Сущевский Вал, 18 (1300 м) - Фото 2
    13-й этаж, всего 22 этажа

    Арт.. Бизнес-центр NOVO Адрес: Москва, ул. Сущёвский Вал, д. 18 Начало аренды: I квартал 2026 г. Общее описание Бизнес-центр NOVO — современный 22-этажный комплекс класса А, являющийся архитектурной доминантой динамично развивающегося Белорусско-Савёловского...
    • 13/22 эт.
    6 066 667 Р
    Агент
    +7 (916) Показать номер
    Посмотреть контакты

    Не нашли подходящего объявления?

    Оставьте заявку, и наши риэлторы подберут офис в районе Москвы

    (0)