Россия, Москва, 1-й Красногвардейский проезд, 21с2
350 000 Р 4 510 $ или 3 880

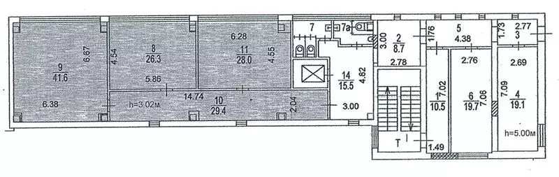
Информация о помещении и здании

17
Этаж
85
Этажность
Развернуть
Агент
+7 (916) 043-36-91
Начать чат с агентом

Офис в Москва 1-й Красногвардейский проезд, 21с2 (90 м)

Башня Око. Не фейк Сдаем апартамент под тихий офис. Возможна оплата на ИП. По договорённости можем что то вывести, или привезти в апартамент. Офис уже свободен и доступен для заезда. Сотрудничаем с коллегами 50/50Для просмотра звоните по номеру в объявлении, либо пишите в сообщения

Читать полностью
    Позвонить Написать
    350 000 Р4 510 $ или 3 880
    Агент
    +7 (916) 043-36-91
    Начать чат с агентом
    Похожие предложения
    Офис (98 м) - Фото 1
    Офис (98 м) - Фото 2
    4-й этаж, всего 6 этажей

    Откройте для себя идеальное офисное пространство в Москве Представляем вам офис, оснащённый переговорной комнатой и кухней. Наша компания предлагает аренду офисных помещений, обеспечивая комфорт и удобство для вашей работы.Преимущества сотрудничества...
    • 4/6 эт.
    360 000 Р
    Агент
    +7 (916) Показать номер
    Посмотреть контакты
    Офис (118 м) - Фото 1
    Офис (118 м) - Фото 2
    5-й этаж, всего 20 этажей

    Сдается в аренду офисное помещение на 5 этаже в БЦ Нагатино Ай-Ленд (Ньютон), В+ класса, который находится по адресу: пр-кт Андропова, д. 18, к. 1.Без комиссии для Арендатора ЛОКАЦИЯ:– Шаговая доступность от м. Технопарк, ЗИЛ, Автозаводская.– Удобный...
    • 5/20 эт.
    344 200 Р
    Агент
    +7 (930) Показать номер
    Посмотреть контакты
    Офис в Москва Марксистская ул., 20С1 (170 м) - Фото 1
    Офис в Москва Марксистская ул., 20С1 (170 м) - Фото 2
    3-й этаж, всего 4 этажа

    Сдается в аренду офисное помещение на 3 этаже в бизнес-центре В класса, который находится по адресу: ул. Марксистская, д. 20, стр.1. Без комиссии для Арендатора ЛОКАЦИЯ: Пешая доступность от станций метро Марксистская,Таганская, Пролетарская. Удобный...
    • 3/4 эт.
    350 000 Р
    Агент
    +7 (989) Показать номер
    Посмотреть контакты
    Офис в Москва Николоямская ул., 44/18 (155 м) - Фото 1
    Офис в Москва Николоямская ул., 44/18 (155 м) - Фото 2
    1-й этаж, всего 2 этажа

    Бизнес-центр Николоямская, 44/18 класса BПлощадь: 155 м2Арендная ставка: 27 871,. за м2 в годСтоимость площади в месяц: 360 000,.Система налогообложения: УСНГотовность: готово к въездуЭтаж: 1Планировка: кабинетнаяКабинетов: 9Наличие с/у: , ВнутриСтатус:...
    • 1/2 эт.
    360 000 Р
    Агент
    +7 (911) Показать номер
    Посмотреть контакты
    Офис в Москва ул. Орджоникидзе, 11 (125 м) - Фото 1
    Офис в Москва ул. Орджоникидзе, 11 (125 м) - Фото 2
    5-й этаж, всего 11 этажей

    Предлагается в аренду офисное помещение общей площадью 125,3 кв.м, расположенное по адресу: ул. Орджоникидзе д. 11, стр.1А. Относится к локации Бизнес-парк Орджоникидзе 11 .Комфортный офис. Находится в самом центре Бизнес-парка.3 светлые комнаты + коридор....
    • 5/11 эт.
    344 575 Р
    Агент
    +7 (986) Показать номер
    Посмотреть контакты

    Не нашли подходящего объявления?

    Оставьте заявку, и наши риэлторы подберут офис в районе Москвы

    (0)