3 787 333 Р 49 060 $ или 41 370

Информация о помещении и здании

1
Этаж
2
Этажность
Развернуть
Агент
+7 (933) 937-50-36
Начать чат с агентом

Офис в Москва Холодильный пер., 3к1с2 (874 м)

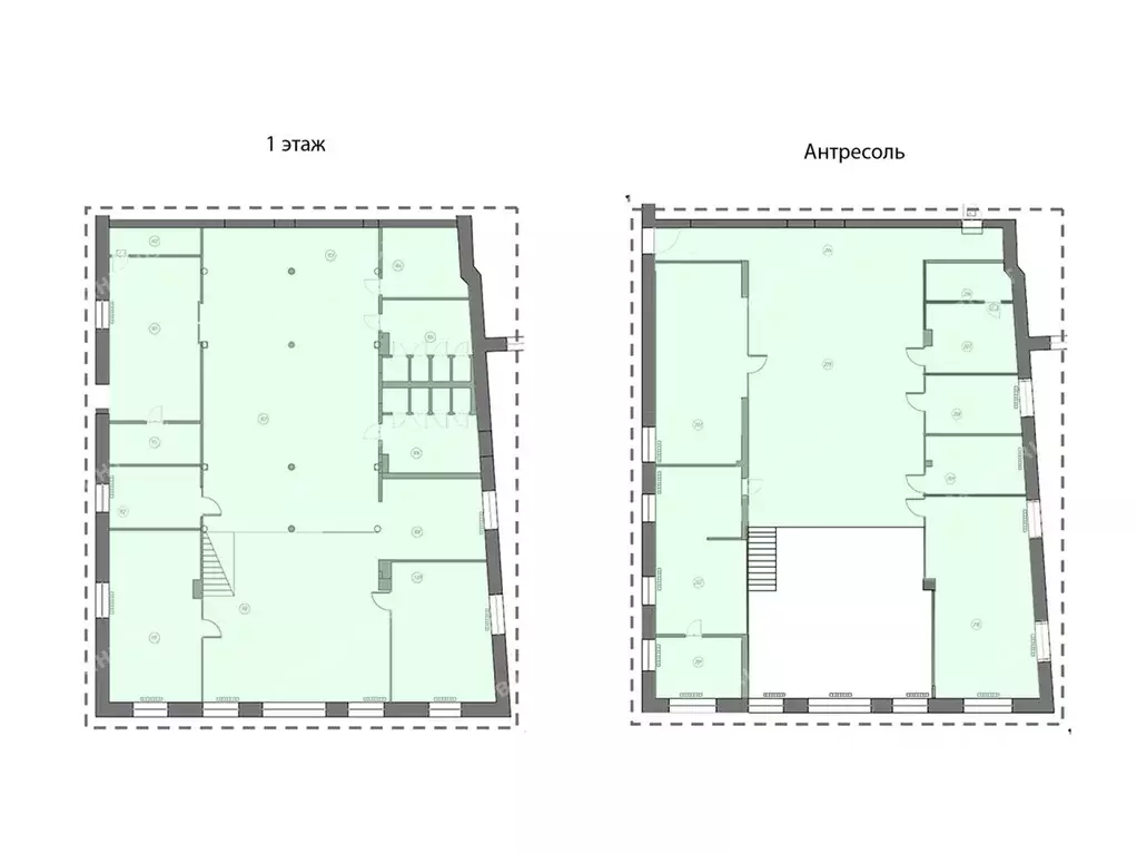
ID: 587043Предлагается к аренде офис на 1 этаже 4-этажного дома у метро Тульская. Площадь составляет 874 кв.м. Рядом с домом расположены школы 630 и 1257, городская поликлиника 67 и детская городская поликлиника 91. Также рядом расположены театр Луны, Первый театр (профессиональный театр для детей) и Малый театр России. Для удобства жителей и сотрудников в шаговой доступности находятся супермаркеты: Азбука вкуса и Eurospar express, а также торгово-развлекательный центр Ереван плаза.Общая площадь: 874 кв.м.Офис расположен на 1-м этаже. Планировка смешенная. Состояние: Сейчас в офисе свежий современный ремонт, готово к въезду.Стоимость аренды в месяц: в месяц, включая НДС и эксплуатационные расходы.Коммунальные услуги, интернет, клининг внутри офиса включены в стоимость аренды.Номер объекта: 1/587043/14501

Читать полностью
    Позвонить Написать
    3 787 333 Р49 060 $ или 41 370
    Агент
    +7 (933) 937-50-36
    Начать чат с агентом
    Похожие предложения
    Офис в Москва Холодильный пер., 3к1с2 (874 м) - Фото 1
    Офис в Москва Холодильный пер., 3к1с2 (874 м) - Фото 2
    1-й этаж, всего 2 этажа

    ВАЖНО: БЕЗ КОММИССИ ДЛЯ АРЕНДАТОРОВ, ПРЯМАЯ АРЕНДА ОТ СОБСТВЕННИКАБизнес-центр B+ класса Рябовская мануфактура расположен по адресу Москва, ЮАО, район Даниловский, Холодильный пер., дом3,к1стр2, в пешей доступности от метро Тульская (2 мин).Характеристики...
    • 1/2 эт.
    3 787 334 Р
    Агент
    +7 (916) Показать номер
    Посмотреть контакты
    Офис в Москва Холодильный пер., 3 (753 м) - Фото 1
    Офис в Москва Холодильный пер., 3 (753 м) - Фото 2
    1-й этаж, всего 5 этажей

    Офисное помещение 753.3 кв. м в бизнес-центре Товарищество Рябовской Мануфактуры . Объект скоро освободится. Успейте забронировать на выгодных условиях. Готовность ко въезду уточняется по запросу. Округ: Южный (ЮАО). Район: Даниловский. Ближайшие станции...
    • 1/5 эт.
    3 866 689 Р
    Агент
    +7 (915) Показать номер
    Посмотреть контакты
    Офис в Москва Холодильный пер., 3к1с6 (753 м) - Фото 1
    Офис в Москва Холодильный пер., 3к1с6 (753 м) - Фото 2
    1-й этаж, всего 4 этажа

    Сдается в аренду офисное помещение на 1 этаже в деловом квартале Товарищество Рябовской Мануфактуры, В+ класса, который находится по адресу: Холодильный пер., д. 3к1с6. Без комиссии для Арендатора ЛОКАЦИЯ:- Шаговая доступность от станций метро Тульская,...
    • 1/4 эт.
    3 866 940 Р
    Агент
    +7 (989) Показать номер
    Посмотреть контакты
    Офис в Москва Холодильный пер., 3 (874 м) - Фото 1
    Офис в Москва Холодильный пер., 3 (874 м) - Фото 2
    1-й этаж, всего 4 этажа

    Уважаемый Арендатор, предлагаем Вам арендовать в БЦ Товарищество Рябовская Мануфактура, кор. Гончар офис 874.0 м на 1 этаже на выгодных условиях.Приточно-вытяжная вентиляция. Интернет, телефония. Видеонаблюдение. Система контроля доступа. Наземная парковка....
    • 1/4 эт.
    3 787 334 Р
    Агент
    +7 (985) Показать номер
    Посмотреть контакты
    Офис (753.3 м) - Фото 1
    Офис (753.3 м) - Фото 2
    1-й этаж, всего 4 этажа

    Сдается в аренду офисное помещение на 1 этаже в деловом квартале Товарищество Рябовской Мануфактуры, В+ класса, который находится по адресу: Холодильный пер., д. 3к1с6. Без комиссии для Арендатора ЛОКАЦИЯ:- Шаговая доступность от станций метро Тульская,...
    • 1/4 эт.
    3 866 940 Р
    Агент
    +7 (901) Показать номер
    Посмотреть контакты

    Не нашли подходящего объявления?

    Оставьте заявку, и наши риэлторы подберут офис в районе Москвы

    (0)