550 000 Р 6 850 $ или 5 930

Информация о помещении и здании

3
Этаж
9
Этажность
Развернуть
Агент
+7 (980) 413-94-39
Начать чат с агентом

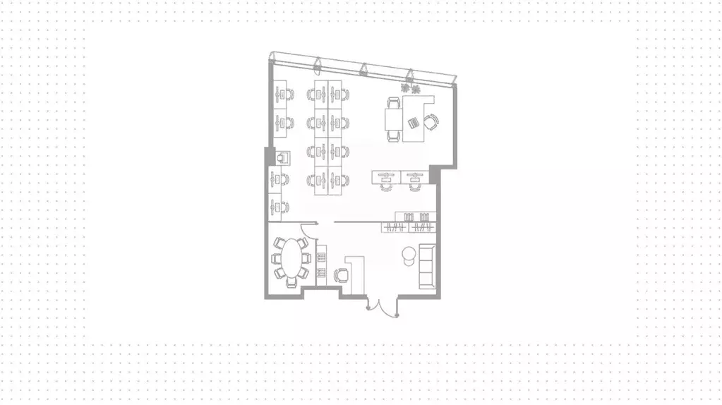
Офис в Москва Рублевское ш., 21 (94 м)

Офис с открытой планировкой площадью 94 м расположен на 3 этаже в бизнес-центре Upside Kuntsevo. В помещении будет выполнена современная офисная отделка, открытые потолки, кварц-винил на полу, закладные под 2 кабинета. Готовы сделать отделку под ТЗ арендатора, готовность июнь. Огромная гостевая парковка на 50 машин, уникальная опция для Мск, 2 этажа подземного паркинга, в пешей доступности от метро Кунцевская. Идеальный вариант для компании, новый ремонт, новый БЦ, удобная локация. Высота потолков составляет 3,65 метра.Главное о здании. Upside Kuntsevo — бизнес-центр класса А в стиле эко с собственным природным парком. Проект состоит из двух корпусов, а внутри предусмотрены мультиформатные опенспейсы, лобби с атриумом и инфраструктура на 12 этажах: кафе, рестораны, продуктовый ритейл и салон красоты. Встречи, обед и короткие паузы проходят внутри комплекса, без лишних выездов. Отдельный плюс — подземный паркинг на 161 мест, плоскостной паркинг на 46 мест и зона посадки-высадки у центрального входа.Главное о локации. Рублёвское шоссе — одна из ключевых западных магистралей, поэтому до офиса удобно добираться как на машине, так и на общественном транспорте. Бизнес-центр расположен рядом с транспортным узлом Кунцевская : метро двух линий, БКЛ и МЦД-1 находятся в нескольких минутах пешком, что упрощает дорогу сотрудникам из разных районов столицы. На автомобиле быстрый выезд на Кутузовский проспект и проспект Багратиона, дорога до Москва-Сити занимает около 15 минут. В перерывах можно пройтись по природным территориям парка Москворецкий , который окружает район.Комментарий эксперта. Меня зовут Антон Ярошинский — брокер компании Whitewill. Я отвечаю за аренду этого лота. Свяжитесь со мной, чтобы получить расширенную презентацию, больше фотографий или договориться о просмотре. Могу провести экскурсию по локации и познакомить вас с этим домом.ID 48 387.

Читать полностью
    Позвонить Написать
    550 000 Р6 850 $ или 5 930
    Агент
    +7 (980) 413-94-39
    Начать чат с агентом
    Похожие предложения
    Офис (95 м) - Фото 1
    Офис (95 м) - Фото 2
    22-й этаж, всего 97 этажей

    Сдается в аренду офисное помещение на 22 этаже в МФК Башня Федерация (Восток), А+ класса, который находится по адресу: Пресненская наб., д. 12. Без комиссии для Арендатора ЛОКАЦИЯ:- Шаговая доступность от станций метро Деловой Центр, Выставочная.- Здание...
    • 22/97 эт.
    550 000 Р
    Агент
    +7 (901) Показать номер
    Посмотреть контакты
    Офис (160 м) - Фото 1
    Офис (160 м) - Фото 2
    2-й этаж, всего 24 этажа

    Аренда офисного блока 160 кв.м. Состояние отделки — готово к въезду. Помещение доступно для аренды с 01.06.2026. Договор аренды заключаете с собственником помещения. Без надбавки к итоговой стоимости аренды. В арендную ставку включено: - коммунальные...
    • 2/24 эт.
    540 000 Р
    Агент
    +7 (926) Показать номер
    Посмотреть контакты
    Офис в Москва Партийный пер., 1к57с1 (150 м) - Фото 1
    Офис в Москва Партийный пер., 1к57с1 (150 м) - Фото 2
    1-й этаж, всего 4 этажа

    Сдается в аренду офис 150 кв.м недалеко от метро. Состояние отделки — готово к въезду.Подписание договора аренды напрямую с владельцем помещения. Работаем без комиссии, процентов и надбавок.В арендную ставку включено: - коммунальные услуги, включая электроэнергию,-...
    • 1/4 эт.
    554 480 Р
    Агент
    +7 (932) Показать номер
    Посмотреть контакты
    Офис в Москва Партийный пер., 1к57с1 (120 м) - Фото 1
    Офис в Москва Партийный пер., 1к57с1 (120 м) - Фото 2
    1-й этаж, всего 4 этажа

    Аренда офиса 120 кв.м недалеко от метро. Состояние отделки — готово к въезду.Договор аренды заключаете с собственником помещения. Без надбавки к итоговой стоимости аренды.В арендную ставку включено: - коммунальные услуги, включая электроэнергию,- эксплуат.расходы,-...
    • 1/4 эт.
    555 975 Р
    Агент
    +7 (932) Показать номер
    Посмотреть контакты
    Офис в Москва Малая Пироговская ул., 18С1 (186 м) - Фото 1
    Офис в Москва Малая Пироговская ул., 18С1 (186 м) - Фото 2
    1-й этаж, всего 6 этажей

    Сдается под офис блок 186 кв.м недалеко от метро. Состояние отделки — готово к въезду.Помещение доступно для аренды с 09.05.2026.Договор аренды заключаете с собственником помещения. Без надбавки к итоговой стоимости аренды.В арендную ставку включено:...
    • 1/6 эт.
    542 500 Р
    Агент
    +7 (932) Показать номер
    Посмотреть контакты

    Не нашли подходящего объявления?

    Оставьте заявку, и наши риэлторы подберут офис в районе Москвы

    (0)