1 200 000 Р 15 540 $ или 13 050

Информация о помещении и здании

2
Этаж
2
Этажность
Развернуть
Агент
+7 (901) 622-47-44
Начать чат с агентом

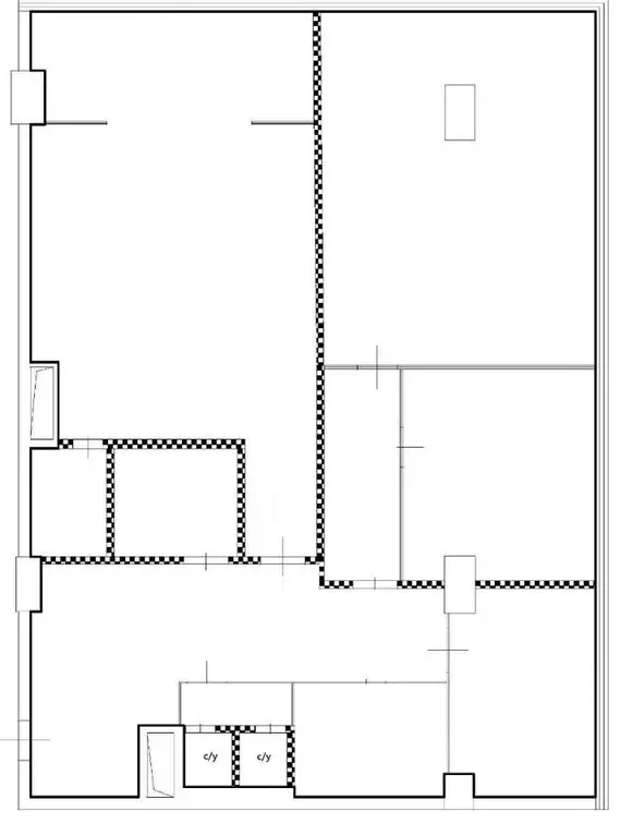
Офис (257 м)

Сдается в аренду помещение на 2 этаже в административном здании В класса, которое находится по адресу: ул. Мясницкая, д. 13, стр. 24. Без комиссии для Арендатора ЛОКАЦИЯ:- В шаговой доступности станции метро Чистые пруды, Тургеневская, Лубянка.- Удобный выезд на Бульварное и Садовое кольцо.ПОМЕЩЕНИЕ:- Помещение с отделкой, открытая планировка.- Свой санузел.- Центральная система кондиционирования и приточно-вытяжная система вентиляции.- В наличии наземная парковка.- Арендные каникулы и ставка подлежат обсуждению.Звоните, отвечаем по будням с 09:00 до 18:00, а в другое время передадим Ваш контакт нашему менеджеру

Читать полностью
    Позвонить Написать
    1 200 000 Р15 540 $ или 13 050
    Агент
    +7 (901) 622-47-44
    Начать чат с агентом
    Похожие предложения
    Офис в Москва Ткацкая ул., 15 (879 м) - Фото 1
    Офис в Москва Ткацкая ул., 15 (879 м) - Фото 2
    2-й этаж, всего 4 этажа

    Прямая аренда от собственника, Сдается офис c МЕБЕЛЬЮ 879 м2 на 2 этаже в административном здании. От метро Семеновская не более 10 минут пешком. Полностью этаж. Кабинетная планировка, Выполнен качественный офисный ремонт, Кондиционирование, Охрана, пропускная...
    • 2/4 эт.
    1 245 250 Р
    Агент
    +7 (923) Показать номер
    Посмотреть контакты
    Офис в Москва наб. Пресненская, 12 (250 м) - Фото 1
    Офис в Москва наб. Пресненская, 12 (250 м) - Фото 2
    80-й этаж, всего 95 этажей

    В аренду предлагается стильный и современный офис в башне Федерация. Из окон открывается панорамный вид на Москва Сити и город Пространство, спроектированное для эффективной работы, обеспечено максимальное количество полезной площади для ваших задач.Стильный...
    • 80/95 эт.
    1 145 834 Р
    Агент
    +7 (916) Показать номер
    Посмотреть контакты
    Офис в Москва 2-й Сыромятнический пер., 1 (205 м) - Фото 1
    Офис в Москва 2-й Сыромятнический пер., 1 (205 м) - Фото 2
    5-й этаж, всего 9 этажей

    ВАЖНО: БЕЗ КОММИССИ ДЛЯ АРЕНДАТОРОВ, ПРЯМАЯ АРЕНДА ОТ СОБСТВЕННИКАБизнес-центр A класса Дельта Плаза расположен по адресу Москва, ЦАО, район Басманный, 2-й Сыромятнический пер., дом 1, в пешей доступности от метро Курская (7 мин).Характеристики здания:...
    • 5/9 эт.
    1 117 250 Р
    Агент
    +7 (916) Показать номер
    Посмотреть контакты
    Офис в Москва наб. Пресненская, 6с2 (200 м) - Фото 1
    Офис в Москва наб. Пресненская, 6с2 (200 м) - Фото 2
    46-й этаж, всего 95 этажей

    ПРЯМОЙ ПРЕДСТАВИТЕЛЬ СОБСТВЕННИКА БОНУС БРОКЕРАМ Предлагается стильный офис в ЖК Башня Империя по адресу: Пресненская набережная 6с2, ЦАО, р-н Пресненский.Офис общей площадью 200 кв.м. с функциональной планировкой. Панорамное застекление с шикарными...
    • 46/95 эт.
    1 100 000 Р
    Агент
    +7 (915) Показать номер
    Посмотреть контакты
    Офис в Москва Подсосенский пер., 23С5 (241 м) - Фото 1
    Офис в Москва Подсосенский пер., 23С5 (241 м) - Фото 2
    4-й этаж, всего 4 этажа

    Сдается в аренду офисное помещение на 4 этаже (мансарда) в административном здании В класса, которое находится по адресу: Подсосенский пер., д. 23, стр. 5. Без комиссии для Арендатора ЛОКАЦИЯ: Шаговая доступность от станций метро Чкаловская, Курская....
    • 4/4 эт.
    1 265 250 Р
    Агент
    +7 (989) Показать номер
    Посмотреть контакты

    Не нашли подходящего объявления?

    Оставьте заявку, и наши риэлторы подберут офис в районе Москвы

    (0)