Россия, Москва, 2-я Хуторская ул., 38АС9
4 760 933 Р 62 260 $ или 52 710

Информация о помещении и здании

1
Этаж
5
Этажность
Развернуть
Агент
+7 (938) 656-74-88
Начать чат с агентом

Офис в Москва 2-я Хуторская ул., 38АС9 (2040 м)

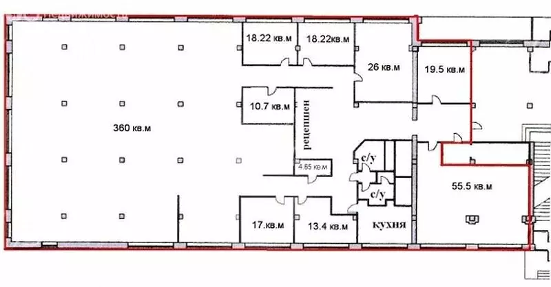
1115606 . Предлагаем в аренду офисное помещение площадью 2 040 кв. м, расположенное в бизнес-центре Мирлэнд Преимущества объекта: - Бизнес-центр класса В+- Шаговая доступность от станции метро Дмитровская (12 минут пешком)- Этаж: 1- Помещение предлагается с отделкой- Планировка смешанная- Помещение готово к въезду с 1 марта 2026 года- Наземный паркингЭксплуатационные платежи включены в ставку, коммунальные платежи оплачиваются дополнительно. Оперативно организуем для Вас показ и ответим на все вопросы. Свяжитесь с нами для получения дополнительной информации

Читать полностью
    Позвонить Написать
    4 760 933 Р62 260 $ или 52 710
    Агент
    +7 (938) 656-74-88
    Начать чат с агентом
    Похожие предложения
    Офис в Москва 2-я Хуторская ул., 38А (2039 м) - Фото 1
    Офис в Москва 2-я Хуторская ул., 38А (2039 м) - Фото 2
    1-й этаж, всего 1 этаж

    Офисное помещение 2 039 кв. м в бизнес-центре Мирлэнд . Объект скоро освободится. Успейте забронировать на выгодных условиях. Готовность ко въезду уточняется по запросу. Округ: Северный (САО). Район: Савёловский. Ближайшие станции метро: Дмитровская,...
    • 1/1 эт.
    4 756 987 Р
    Агент
    +7 (915) Показать номер
    Посмотреть контакты
    Офис (1502 м) - Фото 1
    Офис (1502 м) - Фото 2
    1-й этаж, всего 3 этажа

    АРЕНДА ОТ 11 МЕС. БЦ класса B+ «RiverSide Station (Риверсайд Стейшн) . Сдаётся под офис, салон или медцентр блок с санузлом на первом этаже площадью 1502 кв.м. Стандартная отделка. Вентиляция. Есть охрана.НДС включен. Лот № 192725. С риелторами не сотрудничаем...
    • 1/3 эт.
    4 897 521 Р
    Агент
    +7 (985) Показать номер
    Посмотреть контакты
    Офис в Москва Верхняя Красносельская ул., 2/1С1 (1908 м) - Фото 1
    Офис в Москва Верхняя Красносельская ул., 2/1С1 (1908 м) - Фото 2
    8-й этаж, всего 8 этажей

    Экономьте время и деньги: отрисуем планировку под вас бесплатно, с любым количеством правок. Предлагаем в аренду Офис в бизнес-центре Информтехника по адресу: Москва, Верхняя Красносельская улица, 2/1с1.Рабочих мест: от 239 до 424*.Площадь: 1 908 м2.Планировка:...
    • 8/8 эт.
    4 770 000 Р
    Агент
    +7 (980) Показать номер
    Посмотреть контакты
    Офис в Москва ул. Большая Ордынка, 44С4 (1254 м) - Фото 1
    Офис в Москва ул. Большая Ордынка, 44С4 (1254 м) - Фото 2
    3-й этаж, всего 6 этажей

    Экономьте время и деньги: отрисуем планировку под вас бесплатно, с любым количеством правок. Предлагаем в аренду Офис в бизнес-центре На Ордынке по адресу: Москва, улица Большая Ордынка, 44с4.Рабочих мест: от 157 до 278*.Площадь: 1 254 м2.Планировка:...
    • 3/6 эт.
    4 754 750 Р
    Агент
    +7 (980) Показать номер
    Посмотреть контакты
    Офис (728 м) - Фото 1
    Офис (728 м) - Фото 2
    45-й этаж, всего 59 этажей

    Экономьте время и деньги: отрисуем планировку под вас бесплатно, с любым количеством правок. Предлагаем в аренду Офис в бизнес-центре Башня Империя по адресу: Москва, Пресненская набережная, 6с2.Рабочих мест: от 91 до 161*.Площадь: 728 м2.Планировка:...
    • 45/59 эт.
    4 736 250 Р
    Агент
    +7 (966) Показать номер
    Посмотреть контакты

    Не нашли подходящего объявления?

    Оставьте заявку, и наши риэлторы подберут офис в районе Москвы

    (0)