Реализация объекта недвижимости приостановлена

Информация о помещении и здании

4
Этаж
6
Этажность
Развернуть

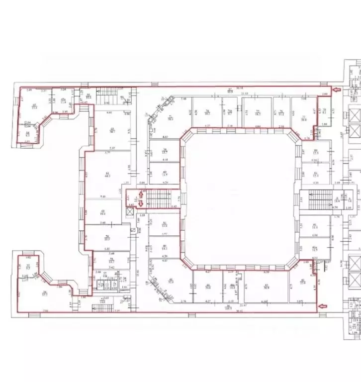
Офис в Москва Лесная ул., 43 (800 м)

ОПЛАЧИВАЕМ вознаграждение любому представителю в размере Собственником сдается в аренду офис под ключ с мебелью напротив напротив гастрономического центра ДЭПО Лесная Брокеры, мы платим Вам вознаграждение 50 от месяца аренды Офис ПРЕМИУМ уровня Цена за все ПОД КЛЮЧ. Возможна аренда частями. 4 этаж - 800 м2 Показ возможен после звонка. Обсуждаемый ТОРГ при быстром подписании договора аренды Текущая рассадка сотрудников наабочих мест. Прямая аренда. Пешая доступность от м. Маяковская (8 мин пешком) / м. Белорусская (5 мин пешком) / м. Менделеевская (6 мин пешком). Охрана и доступ 24 часа в сутки. Показ в любое удобное Вам время. Оплачиваем вознаграждение при заключении договора аренды В бизнес центре есть машиноместа наземного паркинга, стоимость по в месяц за каждое место. Пространства органично зонированы стеклянными перегородками. Текущая рассадка на 90 СОТРУДНИКОВ + ПЕРЕГОВОРНЫЕ КОМНАТЫ + КУХНЯ + РЕЦЕПЦИЯ + СЕРВЕРНАЯ + ГАРДЕРОБ. Мощная система кондиционирования; приточно-вытяжная вентиляция.Система пожарной сигнализации с выводом на пост охраны и возможностью внешнего оповещения. Компьютерные и телефонные слаботочные сети полностью разведены до рабочих мест. Рядом многочисленные точки общественного питания, рестораны, кафе, бары. Звоните по любым вопросам. Агентам мы платим 50

Читать полностью

    Реализация объекта недвижимости приостановлена

    Не нашли подходящего объявления?

    Оставьте заявку, и наши риэлторы подберут офис в районе Москвы

    (0)