229 167 Р 2 980 $ или 2 530

Информация о помещении и здании

цоколь
Этаж
6
Этажность
Развернуть
Агент
+7 (911) 147-09-38
Начать чат с агентом

Офис в Москва Ленинградский просп., 47С2 (110 м)

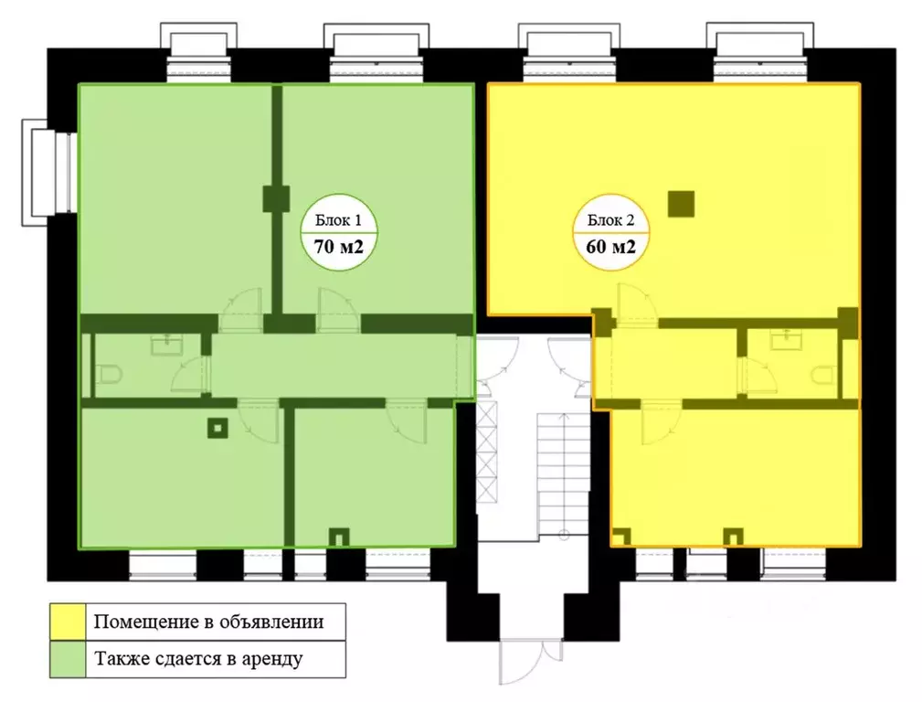
Бизнес-центр Avion класса BПлощадь: 110 м2Арендная ставка: 25 000,. за м2 в год включая НДССтоимость площади в месяц: 229 166,. включая НДССистема налогообложения: НДСГотовность: готово к въездуЭтаж: -1Планировка: смешаннаяНаличие с/у: , В этом же зданииСтатус: свободенОтсутсвуют окнаХарактеристики зданияАдрес: Ленинградский проспект, 47с2, МоскваОкруг: Северный административный округКласс: BПлощадь здания: 19 147 м2Полезная площадь: 19 147 м2Этажность: 6Налоговая: 14Год постройки: 1960Год реконструкции: 2005Лифты: 6 пас.Безопасность: Охрана, Контрольно-пропускной пункт, Сигнализация, Видеонаблюдение, СКУД (электронные пропуска)Парковка: 110м/м, Стихийная, Платная открытая, На прилегающей территорииИнфраструктура: Кафе/Ресторан/СтоловаяДополнительные фотографии и планировки по данному блоку предоставляются по запросу при их наличии.

Читать полностью
    Позвонить Написать
    229 167 Р2 980 $ или 2 530
    Агент
    +7 (911) 147-09-38
    Начать чат с агентом
    Похожие предложения
    всего 6 этажей

    Сдается в прямую аренду офисное помещение общей площадью 110 кв.м. на Подвальный этаже в бизнес-центре Авион , расположенном по адресу Москва, Ленинградский проспект, 47 строение 2, в 2 минутах пешком от метро Аэропорт. Арендная ставка составляет за...
    • 6 этажей
    229 130 Р
    Агент
    +7 (966) Показать номер
    Посмотреть контакты
    Офис в Москва Ленинградский просп., 47 (110 м) - Фото 1
    1-й этаж, всего 8 этажей

    ВАЖНО: БЕЗ КОММИССИ ДЛЯ АРЕНДАТОРОВ, ПРЯМАЯ АРЕНДА ОТ СОБСТВЕННИКАБизнес-центр B+ класса Авион расположен по адресу Москва, САО, район Хорошёвский, Ленинградский просп., дом 47, в пешей доступности от метро Аэропорт (1 мин).Характеристики здания: 8 этажей,...
    • 1/8 эт.
    229 167 Р
    Агент
    +7 (916) Показать номер
    Посмотреть контакты
    Офис в Москва ул. Дыбенко, 22К2 (106 м) - Фото 1
    Офис в Москва ул. Дыбенко, 22К2 (106 м) - Фото 2
    1-й этаж, всего 14 этажей

    ВАЖНО: БЕЗ КОММИССИ ДЛЯ АРЕНДАТОРОВ, ПРЯМАЯ АРЕНДА ОТ СОБСТВЕННИКАЖилое здание B класса Дыбенко 22 корпусасположено по адресу Москва, САО, район Ховрино, ул. Дыбенко, 22 корпус 2, в пешей доступности от метро Ховрино (9 мин).Характеристики здания: 14...
    • 1/14 эт.
    229 667 Р
    Агент
    +7 (916) Показать номер
    Посмотреть контакты
    Офис в Москва пер. Волков, 7-9С2 (60 м) - Фото 1
    цокольный этаж, всего 5 этажей

    Сдается в аренду отличное универсальное помещение в центре Москвы 5 мин. пешком от ст.м. Краснопресненская / Баррикадная.__________________ ВАРИАНТЫ ИСПОЛЬЗОВАНИЯ:Помещение свободного назначения и отлично подойдет для:- бьюти-индустрии: парикмахерская,...
    • -1/5 эт.
    230 000 Р
    Агент
    +7 (915) Показать номер
    Посмотреть контакты
    Офис в Москва Русаковская ул., 13 (103 м) - Фото 1
    Офис в Москва Русаковская ул., 13 (103 м) - Фото 2
    4-й этаж, всего 17 этажей

    ВАЖНО: БЕЗ КОММИССИ ДЛЯ АРЕНДАТОРОВ, ПРЯМАЯ АРЕНДА ОТ СОБСТВЕННИКАБизнес-центр B+ класса БК на Русаковской расположен по адресу Москва, ЦАО, район Красносельский, Русаковская ул., дом 13, в пешей доступности от метро Сокольники (8 мин), метро Красносельская...
    • 4/17 эт.
    223 167 Р
    Агент
    +7 (916) Показать номер
    Посмотреть контакты

    Не нашли подходящего объявления?

    Оставьте заявку, и наши риэлторы подберут офис в районе Москвы

    (0)