2 071 667 Р 27 250 $ или 22 770

Информация о помещении и здании

1
Этаж
22
Этажность
Развернуть
Агент
+7 (932) 720-03-65
Начать чат с агентом

Офис в Москва ул. Мастеркова, 4 (854 м)

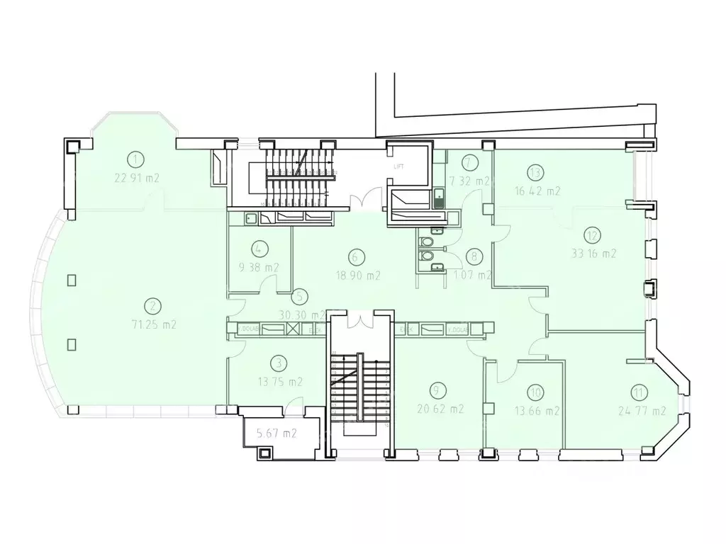
Сдается в аренду просторный офис 854 кв.м недалеко от метро. В помещении требуется капитальный ремонт.Договор аренды заключаете с собственником помещения. Без надбавки к итоговой стоимости аренды.В арендную ставку включено: - коммунальные услуги, включая электроэнергию,- эксплуат.расходы.В арендную ставку не входит: уборка офиса, уборка общих мест, интернет.• условия договора: 11 мес. предоплата за первый и последний месяц;• налогообложение: НДС или УСН;• вход в здание: для арендаторов по документу, для клиентов по документу;• интернет провайдеры: Совинтел, МТК (Комкор), RiNet, МГТС, Звезда Телеком, НИИР-Радио-НЕТ, Инфосети;• парковка: на территории БЦ;• здание работает: круглосуточно;Покажем офис, ответив на все ваши вопросы.Поможем провести переговоры по условиям аренды, удовлетворив все стороны.Звоните. Мы оперативно организуем просмотр помещения в удобную для вас дату и ответим на все интересующие вопросы.Для вас наши услуги бесплатны, их оплачивает БЦ.Описание бизнес-центра:Станция метрополитена Автозаводская - в шаговой доступности, рядом с выходом из БЦ. Выбирая аренду помещения в Панорама , можно получить в пользование машиносместа на прилегающей к зданию наземной парковке. В помещении качественная дорогая отделка в строгом офисном стиле.

Читать полностью
    Позвонить Написать
    2 071 667 Р27 250 $ или 22 770
    Агент
    +7 (932) 720-03-65
    Начать чат с агентом
    Похожие предложения
    Офис в Москва Последний пер., 17 (351 м) - Фото 1
    Офис в Москва Последний пер., 17 (351 м) - Фото 2
    2-й этаж, всего 5 этажей

    Офисное помещение 351.1 кв. м в бизнес-центре Сретенка Комплекс . Объект скоро освободится. Успейте забронировать на выгодных условиях. Готовность ко въезду уточняется по запросу. Округ: Центральный (ЦАО). Район: Мещанский. Ближайшие станции метро: Сухаревская....
    • 2/5 эт.
    2 034 741 Р
    Агент
    +7 (915) Показать номер
    Посмотреть контакты
    Офис в Москва Последний пер., 17 (351 м) - Фото 1
    Офис в Москва Последний пер., 17 (351 м) - Фото 2
    2-й этаж, всего 5 этажей

    ID: o46619Уважаемый Арендатор, предлагаем Вам арендовать в особняке Сретенка Комплекс офис 351.1 м на 2 этаже на выгодных условиях.Планировка - кабинетная. Приточно-вытяжная вентиляция. Интернет, телефония. Подземная парковка. Наземная парковка. ЦАО...
    • 2/5 эт.
    2 034 625 Р
    Агент
    +7 (985) Показать номер
    Посмотреть контакты
    Офис в Москва Верхняя Красносельская ул., 3С2 (575 м) - Фото 1
    Офис в Москва Верхняя Красносельская ул., 3С2 (575 м) - Фото 2
    1-й этаж, всего 7 этажей

    1109282 . Предлагаем в субаренду офисное помещение площадью 575 кв. м, расположенное в бизнес-центре Красносельский Преимущества объекта: - Бизнес-центр класса В+- Шаговая доступность от станции метро Красносельская (9 минут пешком)- Этаж: 1- Помещение...
    • 1/7 эт.
    2 163 060 Р
    Агент
    +7 (938) Показать номер
    Посмотреть контакты
    Офис в Москва наб. Пресненская, 12 (131 м) - Фото 1
    Офис в Москва наб. Пресненская, 12 (131 м) - Фото 2
    36-й этаж, всего 97 этажей

    Офисное помещение 131 кв. м в бизнес-центре Башня Федерация .Округ: Центральный (ЦАО). Район: Пресненский. Ближайшие станции метро: Деловой центр, Москва-Сити. Характеристики:- Класс: A; - Арендопригодная площадь: 232400; - Код налоговой: 03; - Высота...
    • 36/97 эт.
    2 147 221 Р
    Агент
    +7 (915) Показать номер
    Посмотреть контакты
    Офис в Москва Последний пер., 17 (351 м) - Фото 1
    Офис в Москва Последний пер., 17 (351 м) - Фото 2
    2-й этаж, всего 5 этажей

    Предлагаем в аренду офис в Бизнес Центре класса А . Общая площадь 351 кв.м.Офис занимает целиком этаж. Есть собственный с/у и кухня.2-й этажБизнес-центр на Сретенке полностью соответствует классу А. 3 парковочных места на наземной автостоянкеТехнические...
    • 2/5 эт.
    2 035 000 Р
    Агент
    +7 (985) Показать номер
    Посмотреть контакты

    Не нашли подходящего объявления?

    Оставьте заявку, и наши риэлторы подберут офис в районе Москвы

    (0)