9 110 553 Р 119 800 $ или 100 100

Информация о помещении и здании

6
Этаж
76
Этажность
Развернуть
Агент
+7 (933) 786-98-66
Начать чат с агентом

Офис в Москва Нахимовский просп., 58 (2084 м)

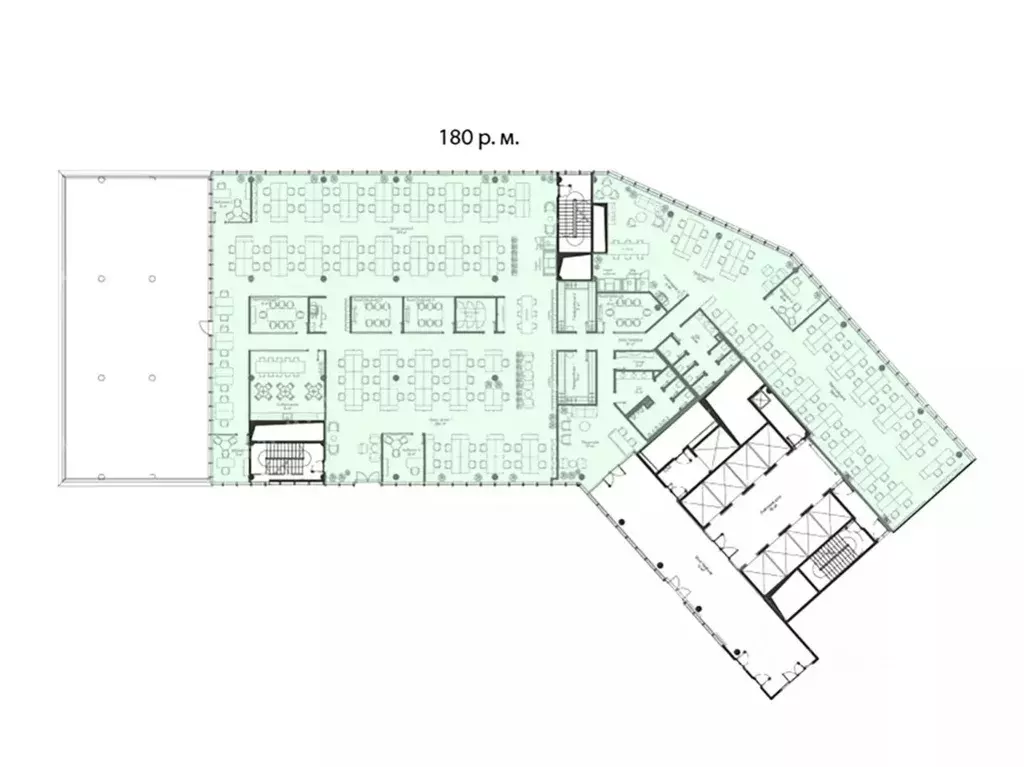
НЕ ФЕЙК Объект 315278. Вашему вниманию представляется офисное помещение в БЦ iCube . Бизнес-центр Фабрика iCube — это современное офисное здание. Он сочетает в себе историческую архитектуру и современные технологии, что делает его привлекательным местом для ведения бизнеса. БЦ предлагает широкий спектр услуг, включая удобные офисные помещения, конференц-залы, зоны для отдыха и кафе. Удобная транспортная доступность и развитая инфраструктура в окрестностях делают Большевик идеальным выбором как для крупных компаний, так и для стартапов. Кроме того, бизнес-центр активно поддерживает экологические инициативы и создает комфортную рабочую среду для своих арендаторовОперативно покажем и расскажем Звоните за подробной информацией.We can speak English

Читать полностью
    Позвонить Написать
    9 110 553 Р119 800 $ или 100 100
    Агент
    +7 (933) 786-98-66
    Начать чат с агентом
    Похожие предложения
    Офис в Москва Нахимовский просп., 58 (2084 м) - Фото 1
    Офис в Москва Нахимовский просп., 58 (2084 м) - Фото 2
    6-й этаж, всего 11 этажей

    Офис площадью 2 084 м в Басманном районе. Офис расположен на 6 этаже в многофункциональном центре iCUBE. В объекте с комбинированной планировкой установлены современные системы приточно-вытяжной вентиляции и центрального кондиционирования. Выполнена отделка...
    • 6/11 эт.
    9 110 000 Р
    Агент
    +7 (923) Показать номер
    Посмотреть контакты
    Офис в Москва Нахимовский просп., 58 (2084 м) - Фото 1
    Офис в Москва Нахимовский просп., 58 (2084 м) - Фото 2
    6-й этаж, всего 11 этажей

    Сдается в прямую аренду офисное помещение класса А площадью 2084 квадр. метров в бизнес-центре iCube .Москва, ЮЗАО, Нахимовский проспект, 58Удобная локация здания:- Автомобиль: близость транспортных магистралей, таких как Профсоюзная улица, Ленинский...
    • 6/11 эт.
    9 110 600 Р
    Агент
    +7 (985) Показать номер
    Посмотреть контакты
    Офис в Москва Серебряническая наб., 29 (1134 м) - Фото 1
    Офис в Москва Серебряническая наб., 29 (1134 м) - Фото 2
    6-й этаж, всего 9 этажей

    Офисное помещение 1 134 кв. м в бизнес-центре Silver City. Built-to-Suit. Готовность ко въезду уточняется по запросу. Округ: Центральный (ЦАО). Район: Таганский. Ближайшие станции метро: Курская, Чкаловская. Характеристики:- Класс: A; - Арендопригодная...
    • 6/9 эт.
    9 000 558 Р
    Агент
    +7 (915) Показать номер
    Посмотреть контакты
    Офис (1756 м) - Фото 1
    Офис (1756 м) - Фото 2
    11-й этаж, всего 39 этажей

    Предлагается в аренду КОМФОРТНЫЙ ОФИС 1756 кв.м. в пешей доступности от метро.В указанную стоимость включены эксплуатационные расходы.Просмотр офиса в удобное для вас время по предварительной договоренности.Прямой договор с СОБСТВЕННИКОМ. Комиссии НЕТ.Более...
    • 11/39 эт.
    9 069 447 Р
    Агент
    +7 (988) Показать номер
    Посмотреть контакты
    Офис в Москва Ленинградский просп., 31АС1 (1756 м) - Фото 1
    Офис в Москва Ленинградский просп., 31АС1 (1756 м) - Фото 2
    11-й этаж, всего 38 этажей

    ID: o98901Уважаемый Арендатор, предлагаем Вам арендовать в БЦ Монарх офис 1756.0 м на 11 этаже на выгодных условиях.Приточно-вытяжная вентиляция. Центральное кондиционирование. Пожарная сигнализация. Интернет, телефония. Охрана. Видеонаблюдение. Система...
    • 11/38 эт.
    9 104 860 Р
    Агент
    +7 (985) Показать номер
    Посмотреть контакты

    Не нашли подходящего объявления?

    Оставьте заявку, и наши риэлторы подберут офис в районе Москвы

    (0)