450 000 Р 5 880 $ или 4 980

Информация о помещении и здании

3
Этаж
3
Этажность
Развернуть
Агент
+7 (919) 763-09-45
Начать чат с агентом

Офис в Москва просп. Мира, 102С38 (156 м)

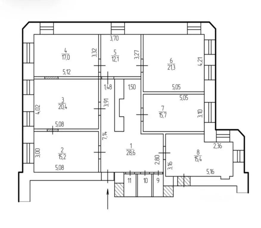
Сдается в долгосрочную прямую аренду помещение в бизнес-центре Парк Мира на третьем этаже, с отдельным входом, площадь 155.9 кв.м. Свободный доступ 24/7. В Бизнес парке развитая инфраструктура, здесь расположены жилые апартаменты, деловой комплекс, рестораны, кофейни, магазины и др. Территория комплекса облагорожена зелеными насаждениями и местами для отдыха. Наземный и подземный паркинг за дополнительную оплату. Удобная локация: 10 мин. пешком от станций метро Рижская и Алексеевская, от Садового кольца 3 км, от ТТК - 0,5 км. Коммунальные и эксплуатационные расходы и уборку помещения оплачивает арендатор. Посмотреть офис можно в удобное для вас время.На фото можете увидеть, как выглядит помещение с текущим арендатором. Есть возможность частично оставить мебель. По текущей планировке предусмотрены: open space, кухня, переговорная, c/у. Аренда возможна с 1 марта

Читать полностью
    Позвонить Написать
    450 000 Р5 880 $ или 4 980
    Агент
    +7 (919) 763-09-45
    Начать чат с агентом
    Похожие предложения
    Офис в Москва Яузский бул., 13 (150 м) - Фото 1
    Офис в Москва Яузский бул., 13 (150 м) - Фото 2
    3-й этаж, всего 5 этажей

    ВАЖНО: БЕЗ КОММИССИ ДЛЯ АРЕНДАТОРОВ, ПРЯМАЯ АРЕНДА ОТ СОБСТВЕННИКАБизнес-центр B класса Яузскийасположен по адресу Москва, ЦАО, район Таганский, Яузский бульв., 13, в пешей доступности от метро Курская (16 мин), метро Китай-город (10 мин).Характеристики...
    • 3/5 эт.
    450 000 Р
    Агент
    +7 (916) Показать номер
    Посмотреть контакты
    Офис (191.6 м) - Фото 1
    Офис (191.6 м) - Фото 2
    1-й этаж, всего 16 этажей

    Сдается в аренду офисное помещение на 1 этаже в жилом доме, С класса, который находится по адресу: ул. Петрозаводская, д. 18, корп. 1. Без комиссии для Арендатора ЛОКАЦИЯ:- В пешей доступности станции метро Грачевская, Беломорская.- В непосредственной...
    • 1/16 эт.
    447 067 Р
    Агент
    +7 (930) Показать номер
    Посмотреть контакты
    Офис в Москва Ермолаевский пер., 25 (130 м) - Фото 1
    Офис в Москва Ермолаевский пер., 25 (130 м) - Фото 2
    3-й этаж, всего 6 этажей

    Арт.. бизнес-центр Ермолаевский.Сдается в аренду офис площадью 130 м2 на 3 этаже в бизнес-центре класса В+ Ермолаевский, расположенном в 5 минут пешком от метро Маяковская. Планировка: кабинетная. Состояние помещения: с ремонтом. Провайдеры: интернет/телефония,...
    • 3/6 эт.
    455 000 Р
    Агент
    +7 (985) Показать номер
    Посмотреть контакты
    Офис в Москва Дорогобужская ул., 14С4 (71 м) - Фото 1
    Офис в Москва Дорогобужская ул., 14С4 (71 м) - Фото 2
    3-й этаж, всего 4 этажа

    АРЕНДА ОТ СОБСТВЕННИКАМосква, ул Дорогобужская, 14 стр 4Звоните и пишите прямо сейчас — не упустите возможность арендовать идеальный офис для Вашего бизнеса в отличном месте Сотрудничаем с агентами.- Удобная транспортная доступность — всего несколько...
    • 3/4 эт.
    440 792 Р
    Агент
    +7 (982) Показать номер
    Посмотреть контакты
    Офис в Москва Верейская ул., 17 (199 м) - Фото 1
    Офис в Москва Верейская ул., 17 (199 м) - Фото 2
    6-й этаж, всего 8 этажей

    АРЕНДА ОТ СОБСТВЕННИКАВерейская Плаза II, Москва, ул Верейская, 17Звоните и пишите прямо сейчас — не упустите возможность арендовать идеальный офис для Вашего бизнеса в отличном месте Сотрудничаем с агентами.- Удобная транспортная доступность — всего...
    • 6/8 эт.
    447 750 Р
    Агент
    +7 (982) Показать номер
    Посмотреть контакты

    Не нашли подходящего объявления?

    Оставьте заявку, и наши риэлторы подберут офис в районе Москвы

    (0)