13 445 833 Р 165 400 $ или 143 900

Информация о помещении и здании

2
Этаж
5
Этажность
Развернуть
Агент
+7 (980) 417-92-31
Начать чат с агентом

Офис в Москва Подкопаевский пер., 4 (1844 м)

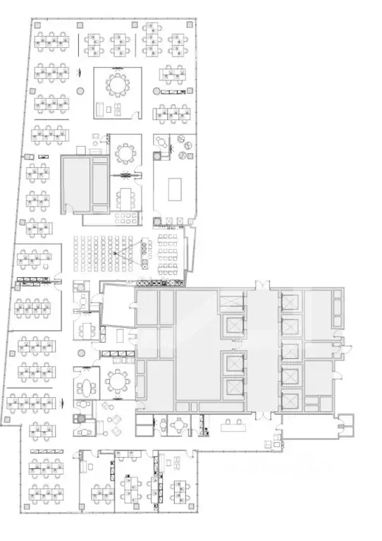
Экономьте до 3 недель на переезде - бесплатно разработаем планировку под вашу команду с неограниченными правками.Офис 1 844 м на 231-абочих мест* в бизнес-центре Ивановская горка (класс A), без комиссии. Открыты к диалогу по условиям аренды.Ключевые параметры:Площадь: 1 844 м.Рабочие места: 231-409*.Планировка: смешанная.Состояние: готов к въезду.Этаж: 1, 2 из 5.Налоговая: 9.Метро рядом: м. Китай-город в 5 минутах пешком, м. Лубянка в 14 минутах пешком, м. Чкаловская в 15 минутах пешком. Помещение с функциональной смешанной планировкой. Инженерные системы:Вентиляция: приточно-вытяжная.Кондиционирование: центральное.Охрана: круглосуточная охрана здания.Ивановская горка — бизнес-центр класса А, здание оформлено в стиле нового барокко с отделкой премиального класса и панорамными окнами. Ближайшая станция метро — Китай-город, для автомобилистов удобен выезд на улицу Солянка. На территории предусмотрена подземная парковка на 92 машиноместа.Инфраструктура бизнес-центра включает кафе, ресторан, фитнес-клуб, банкомат и медицинский центр. В пешей доступности расположены Хитровская площадь и парк Горка. Бизнес-центр оборудован современными инженерными системами и 4 пассажирскими лифтами. Юридические адреса обслуживаются в налоговой 9.Коммерческие условия:Арендная плата:/мес.Ставка:/м/год (включая эксплуатацию).Налогообложение: включая НДС.Коммунальные расходы: оплачиваются по факту.Тип аренды: Прямая аренда.Без комиссии.Почему с нами удобно:Поможем согласовать условия аренды и организуем быстрый выход на сделку.Позвоните сейчас - организуем просмотр в день обращения, пришлём презентацию и подготовим альтернативные варианты.Также бесплатно:Разработаем планировку под вашу команду.Рассчитаем оптимальную рассадку и зонирование.*Количество рабочих мест рассчитано автоматически: от 4,5 до 8 м на человека.ID объекта: 031464

Читать полностью
    Позвонить Написать
    13 445 833 Р165 400 $ или 143 900
    Агент
    +7 (980) 417-92-31
    Начать чат с агентом
    Похожие предложения
    Офис в Москва Подкопаевский пер., 4 (1721 м) - Фото 1
    Офис в Москва Подкопаевский пер., 4 (1721 м) - Фото 2
    2-й этаж, всего 5 этажей

    Экономьте до 3 недель на переезде - бесплатно разработаем планировку под вашу команду с неограниченными правками.Офис 1 721 м на 216-абочих мест* в бизнес-центре Ивановская горка (класс A), без комиссии. Открыты к диалогу по условиям аренды.Ключевые...
    • 2/5 эт.
    12 548 958 Р
    Агент
    +7 (980) Показать номер
    Посмотреть контакты
    Офис в Москва Лесная ул., 7 (1522 м) - Фото 1
    Офис в Москва Лесная ул., 7 (1522 м) - Фото 2
    8-й этаж, всего 16 этажей

    1154205. Предлагаем в аренду офисное помещение площадью 1522 кв. м, расположенное в бизнес-центре Белые Сады Преимущества объекта: - Бизнес-центр класса А- Шаговая доступность от станции метро Белорусская (2 минуты пешком)- Этаж: 8- Помещение предлагается...
    • 8/16 эт.
    13 926 300 Р
    Агент
    +7 (938) Показать номер
    Посмотреть контакты
    Офис в Москва Верхняя Красносельская ул., 2/1С1 (5319 м) - Фото 1
    Офис в Москва Верхняя Красносельская ул., 2/1С1 (5319 м) - Фото 2
    2-й этаж, всего 8 этажей

    ЛотАренда офисных этажей в Красносельском районе ЦАО. Ближайшая станция метро Красносельская - 800 метров. В 1 км съезд на ТТК и Русаковскую улицу, Садовое кольцо в 3-х км. Этажи кабинетной планировки с отделкой, оборудованы централизованной системой...
    • 2/8 эт.
    13 297 500 Р
    Агент
    +7 (986) Показать номер
    Посмотреть контакты
    Офис в Москва Малая Сухаревская пл., 12 (1032 м) - Фото 1
    Офис в Москва Малая Сухаревская пл., 12 (1032 м) - Фото 2
    1-й этаж, всего 6 этажей

    Аренда офиса 1032.4 кв. м в бизнес-центре Садовая Галерея (класс A).Этаж: 1.Отделка - с отделкойТип планировки - смешанная.Вход - общий с улицыМокрые точки - даСан. узлы - на этажеНазначение: ОфисПолная ставка аренды - за кв. м/год. НДС включен, эксплуатация...
    • 1/6 эт.
    12 595 280 Р
    Агент
    +7 (917) Показать номер
    Посмотреть контакты
    Офис в Москва Киевское шоссе, 22-й км, 6Ас1кВ2 (5060 м) - Фото 1
    Офис в Москва Киевское шоссе, 22-й км, 6Ас1кВ2 (5060 м) - Фото 2
    2-й этаж, всего 7 этажей

    Аренда офиса 5060 кв. м в ТЦ Comcity (Фаза Браво) (класс A).Этаж: 2.Кол-во рабочих мест - 550Отделка - без отделкиТип планировки - open-space.Вход - общий с улицыМокрые точки - даСан. узлы - в блокеНазначение: ОфисПолная ставка аренды - за кв. м/год....
    • 2/7 эт.
    13 118 050 Р
    Агент
    +7 (917) Показать номер
    Посмотреть контакты

    Не нашли подходящего объявления?

    Оставьте заявку, и наши риэлторы подберут офис в районе Москвы

    (0)