2 248 800 Р 29 180 $ или 24 700

Информация о помещении и здании

2
Этаж
8
Этажность
Развернуть
Агент
+7 (925) 820-61-37
Начать чат с агентом

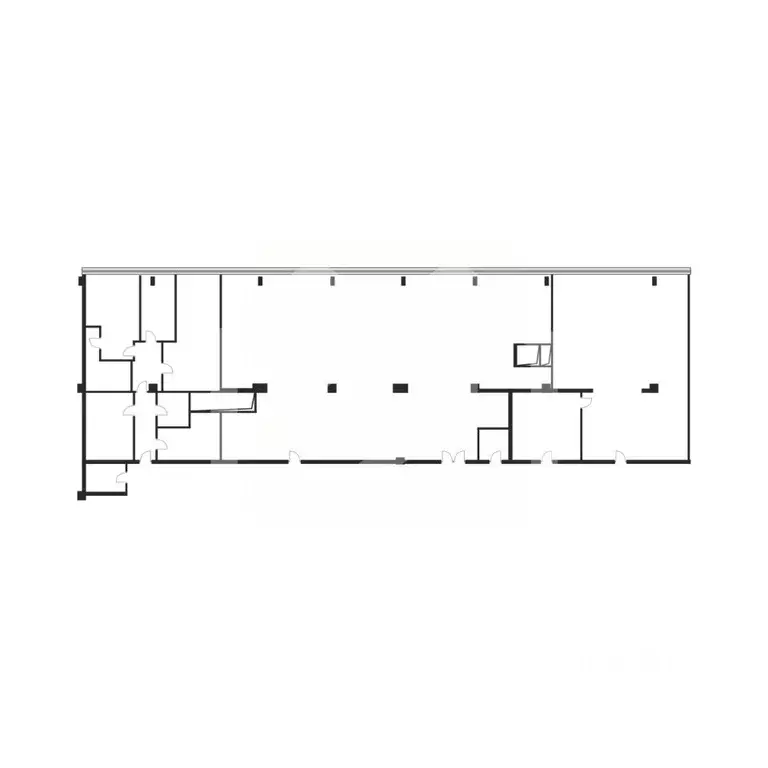
Офис (1223 м)

Предлагается в долгосрочную прямую аренду помещение под офис класса B площадью 1223 кв. метров в недавно отреконструированном бизнес-центре Калибр .Москва, СВАО, улица Годовикова, 9 с1Удобная локация здания:- Автомобиль: близость транспортных магистралей, таких как Третье Транспортное Кольцо, Проспект Мира и других.- Возможность аренды парковочных мест.- Ближайшее метро: от метро Алексеевская всего 10 мин пешком Офис класса B:- Помещение готово к въезду- Вентиляция: Приточно-вытяжная вентиляция - Кондиционирование: центральное - Круглосуточная охрана и видеонаблюдение- Развитая инфраструктура внутри зданияЕсли данное предложение подходит Вашему запросу: 1. Получите презентацию в течение 10 минут в Whatsapp или на почту с фотографиями и планировкой, чтобы обсудить данный вариант с коллегами или переслать руководству. Для этого позвоните по телефону, указанному в объявлении. 2. Мы готовы ответить на любые Ваши вопросы о помещении и коммерческих условиях аренды. 3. Покажем помещение в удобное для Вас время с менеджером в здании, при необходимости подготовим виртуальный тур. Звоните нам в любое время. По будням мы сможем ответить на Ваши вопросы до 19:00. В выходные или вечернее время мы передадим Ваш контакт нашему менеджеру по аренде. НОМЕР ОБЪЯВЛЕНИЯ: №1375369

Читать полностью
    Позвонить Написать
    2 248 800 Р29 180 $ или 24 700
    Агент
    +7 (925) 820-61-37
    Начать чат с агентом
    Похожие предложения
    Офис в Москва ул. Обручева, 30/1С2 (562 м) - Фото 1
    Офис в Москва ул. Обручева, 30/1С2 (562 м) - Фото 2
    7-й этаж, всего 8 этажей

    984757 . Предлагаем в аренду офисное помещение площадью 562 кв. м, расположенное в бизнес-центре Кругозор Преимущества объекта:- Бизнес-центр класса А- Шаговая доступность от станции метро Калужская (10 минут пешком)- Этаж: 7- Помещение предлагается...
    • 7/8 эт.
    2 154 052 Р
    Агент
    +7 (938) Показать номер
    Посмотреть контакты
    Офис в Москва Новодмитровская ул., 2Б (708 м) - Фото 1
    Офис в Москва Новодмитровская ул., 2Б (708 м) - Фото 2
    6-й этаж, всего 9 этажей

    943240 . Предлагаем в аренду офисное помещение площадью 708 кв. м, расположенное в деловом центре Дмитровский Преимущества объекта:- Бизнес-центр класса B- Шаговая доступность от станции метро Дмитровская (8 минут пешком)- Этаж: 6- Помещение предлагается...
    • 6/9 эт.
    2 216 666 Р
    Агент
    +7 (938) Показать номер
    Посмотреть контакты
    Офис в Москва 3-я Рыбинская ул., 18С2 (693 м) - Фото 1
    Офис в Москва 3-я Рыбинская ул., 18С2 (693 м) - Фото 2
    2-й этаж, всего 4 этажа

    1109929 . Предлагаем в аренду офисное помещение площадью 692,6 кв. м, расположенное в бизнес-центре Буревестник Преимущества объекта: - Бизнес-центр класса В+- Шаговая доступность от станции метро Красносельская (15 минут пешком)- Этаж: 2- Помещение...
    • 2/4 эт.
    2 260 300 Р
    Агент
    +7 (938) Показать номер
    Посмотреть контакты
    Офис в Москва ул. Академика Королева, 12 (739 м) - Фото 1
    Офис в Москва ул. Академика Королева, 12 (739 м) - Фото 2
    3-й этаж, всего 13 этажей

    1097069 . Предлагаем в аренду офисное помещение площадью 738,6 кв. м, расположенное в телецентре Останкино Преимущества объекта:- Шаговая доступность от станции метро Бутырская, Фонвизинская (17 минут пешком)- Этаж: 3- Помещение предлагается с отделкой-...
    • 3/13 эт.
    2 177 393 Р
    Агент
    +7 (938) Показать номер
    Посмотреть контакты
    Офис в Москва Валовая ул., 35Б (295 м) - Фото 1
    Офис в Москва Валовая ул., 35Б (295 м) - Фото 2
    8-й этаж, всего 8 этажей

    1107129 . Предлагаем в аренду офисное помещение площадью 295 кв. м, расположенное в бизнес-центре Wall Street Преимущества объекта: - Бизнес-центр класса А- Шаговая доступность от станции метро Добрынинская (4 минуты пешком)- Этаж: 8- Помещение предлагается...
    • 8/8 эт.
    2 159 400 Р
    Агент
    +7 (938) Показать номер
    Посмотреть контакты

    Не нашли подходящего объявления?

    Оставьте заявку, и наши риэлторы подберут офис в районе Москвы

    (0)