1 592 100 Р 20 660 $ или 17 490

Информация о помещении и здании

3
Этаж
6
Этажность
Развернуть
Агент
+7 (986) 274-27-15
Начать чат с агентом

Офис в Москва Кирпичная ул., 21К4 (870 м)

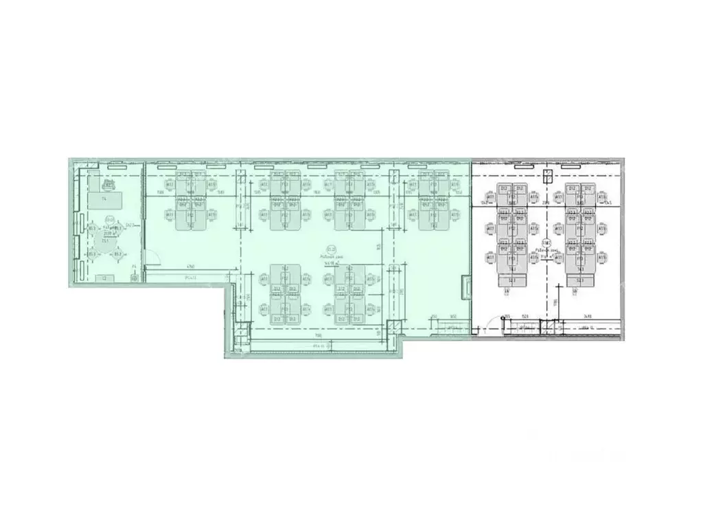
ЛотАренда офисных этажей в районе Соколиная Гора ВАО. Ближайшая станция метро Семеновская. В непосредственной близости съезд на Измайловское шоссе в 1,5 км набережная Яузы, в 3 км ТТК.Предлагаемые блоки занимают целиком 2-й и 3-й этажи. Все помещения в идеальном состоянии - только что окончен косметический ремонт. Планировка смешанная - кабинеты разной площади, залы для коллективной работы, подсобные помещения, обустроенная кухня, с\у в достаточном количестве. Помещение свободно и готово к использованию.В указанную цену включены до 15 парковочных мест во дворе. Звоните, показ в удобное время по предварительной договорённости. Актуальные площади и цены (м2):870 м2 (3 эт.) -/м2/год В цену включено: НДС 22 . Обеспечительный платеж 2 месяцa.Чтобы получить ПОДРОБНУЮ ПРЕЗЕНТАЦИЮ С ПЛАНИРОВКОЙ И ФОТОГРАФИЯМИ, звоните или отправьте свой email и номер телефона в сообщении на портале. Высылаем в течение 15 минут по запросу Конт. лицо: Филипп , доб. 261, ЛОТ 1018006

Читать полностью
    Позвонить Написать
    1 592 100 Р20 660 $ или 17 490
    Агент
    +7 (986) 274-27-15
    Начать чат с агентом
    Похожие предложения
    Офис в Москва Огородный проезд, 16С16 (241 м) - Фото 1
    Офис в Москва Огородный проезд, 16С16 (241 м) - Фото 2
    3-й этаж, всего 12 этажей

    Офисное помещение 240.6 кв. м в бизнес-центре Ostankino.Округ: Северо-Восточный (СВАО). Район: Бутырский. Ближайшие станции метро: Бутырская. Характеристики:- Класс: B+; - Арендопригодная площадь: 103700; - Код налоговой: 15; - Высота потолков: 3.7 м;...
    • 3/12 эт.
    1 541 172 Р
    Агент
    +7 (915) Показать номер
    Посмотреть контакты
    Офис в Москва Дубининская ул., 33Б (760 м) - Фото 1
    Офис в Москва Дубининская ул., 33Б (760 м) - Фото 2
    2-й этаж, всего 4 этажа

    Экономьте время и деньги: отрисуем планировку под вас бесплатно, с любым количеством правок. Предлагаем в аренду Офис в бизнес-центре Дубининская 33Б по адресу: Москва, Дубининская улица, 33Б.Рабочих мест: от 95 до 168*.Площадь: 760 м2.Планировка: смешанная.Состояние:...
    • 2/4 эт.
    1 520 000 Р
    Агент
    +7 (980) Показать номер
    Посмотреть контакты
    Офис в Москва 2-й Рощинский проезд, 8 (700 м) - Фото 1
    Офис в Москва 2-й Рощинский проезд, 8 (700 м) - Фото 2
    13-й этаж, всего 13 этажей

    Экономьте время и деньги: отрисуем планировку под вас бесплатно, с любым количеством правок. Предлагаем в аренду Офис в бизнес-центре Серпуховской Двор 1 по адресу: Москва, 2-й Рощинский проезд, 8.Рабочих мест: от 88 до 155*.Площадь: 700 м2.Планировка:...
    • 13/13 эт.
    1 577 035 Р
    Агент
    +7 (980) Показать номер
    Посмотреть контакты
    Офис в Москва просп. Лихачева, 5 (560 м) - Фото 1
    Офис в Москва просп. Лихачева, 5 (560 м) - Фото 2
    1-й этаж, всего 6 этажей

    Предлагаются в аренду лабораторно-офисные помещения, расположенные в корпусе B Технопарка ЗИЛ , для наукоемких компаний и фармацевтических производств. Свободные блоки на первом этаже: 711 кв.м, 560 кв.м. ВАЖНО: помещения на первом этаже предлагаются...
    • 1/6 эт.
    1 633 333 Р
    Агент
    +7 (986) Показать номер
    Посмотреть контакты
    Офис в Москва МКАД, 47-й км, с20 (900 м) - Фото 1
    Офис в Москва МКАД, 47-й км, с20 (900 м) - Фото 2
    2-й этаж, всего 10 этажей

    Бизнес-центр Боровский класса AПлощадь: 900 м2Арендная ставка:. за м2 в год включая НДССтоимость площади в месяц:,. включая НДССистема налогообложения: НДСГотовность: готово к въездуЭтаж: 2Планировка: кабинетнаяНаличие с/у: , ВнутриСтатус: свободенХарактеристики...
    • 2/10 эт.
    1 647 000 Р
    Агент
    +7 (911) Показать номер
    Посмотреть контакты

    Не нашли подходящего объявления?

    Оставьте заявку, и наши риэлторы подберут офис в районе Москвы

    (0)