1 793 400 Р 23 230 $ или 19 510

Информация о помещении и здании

8
Этаж
12
Этажность
Развернуть
Агент
+7 (980) 417-92-31
Начать чат с агентом

Офис в Москва ул. Земляной Вал, 9 (280 м)

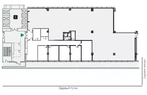
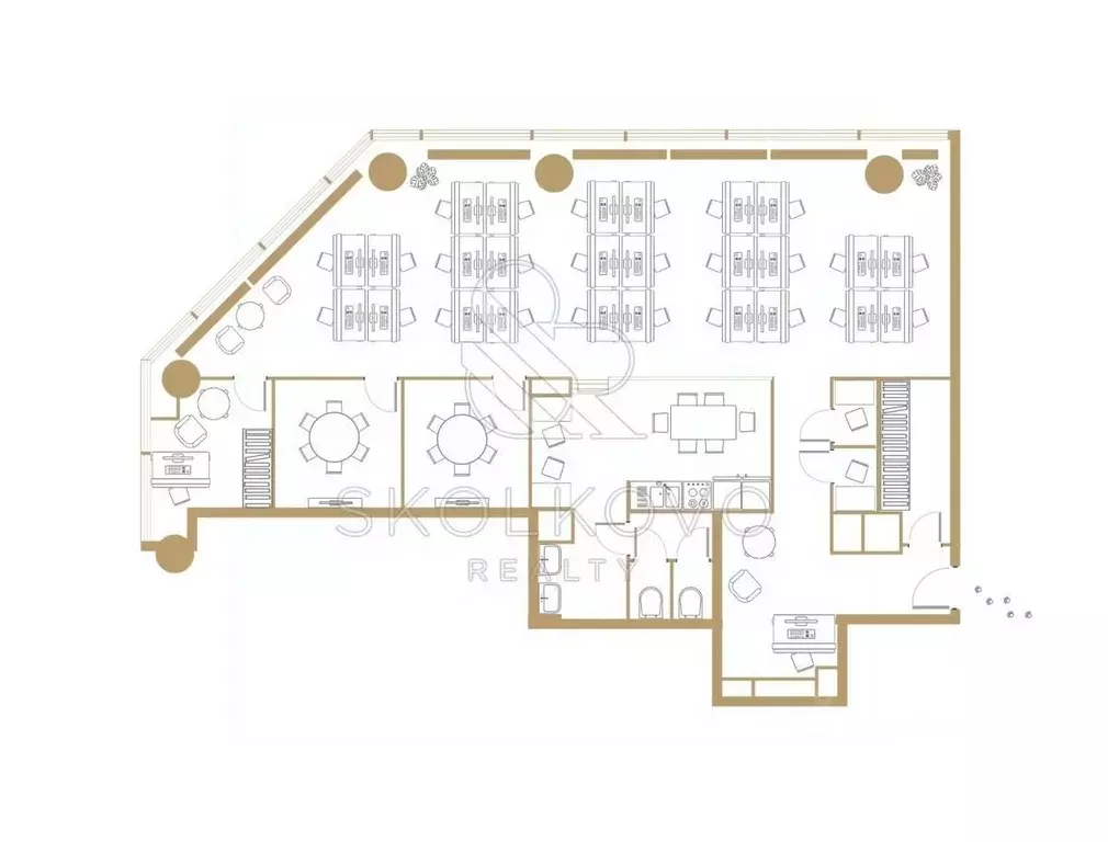
Экономьте время и деньги: отрисуем планировку под вас бесплатно, с любым количеством правок. Предлагаем в аренду Офис в бизнес-центре Ситидел по адресу: Москва, улица Земляной Вал, 9.Рабочих мест: от 35 до 62*.Площадь: 280 м2.Планировка: открытая.Состояние: готовность к въезду с.Ставка (включая эксплуатацию): за м2/год.Арендная плата:/мес.Налог: включая НДС.Коммунальные расходы: оплачиваются по факту.Этаж: 8 из 12.Тип аренды: прямая аренда.Охрана: круглосуточная охрана здания.Метро рядом: м. Курская в 5 минутах пешком, м. Чкаловская в 8 минутах пешком, м. Красные ворота в 13 минутах пешком. Этот адрес обслуживает налоговая 9. Парковка наземная, подземная.Системы здания:Вентиляция: приточно-вытяжная.Кондиционирование: центральное.Пожарная сигнализация: датчики пожаротушения.>ID объекта - 5214.*Количество рабочих мест рассчитано автоматически: от 4,5 м2 на человека до 8 м2 на человека.Почему клиенты доверяют нам?1. 12000 объектов коммерческой недвижимости Москвы и Области, включая эксклюзивные и внерыночные.2. Работаем без комиссии и скрытых платежей. Вы заключаете договор напрямую с собственником.3. Профессиональное сопровождение: консультации на каждом этапе, помощь в подборе оптимального решения для вашего бизнеса.4. 17 лет опыта в коммерческой недвижимости.Не тратьте время, доверьте поиски нам Позвоните, и мы оперативно организуем просмотр или подготовим подборку объектов.

Читать полностью
    Позвонить Написать
    1 793 400 Р23 230 $ или 19 510
    Агент
    +7 (980) 417-92-31
    Начать чат с агентом
    Похожие предложения
    Офис в Москва наб. Пресненская, 12 (400 м) - Фото 1
    Офис в Москва наб. Пресненская, 12 (400 м) - Фото 2
    33-й этаж, всего 95 этажей

    В аренду предлагается стильный и современный офис в башне Федерация. Из окон открывается панорамный вид на Москва Сити и город Пространство, спроектированное для эффективной работы, обеспечено максимальное количество полезной площади для ваших задач.Стильный...
    • 33/95 эт.
    1 833 334 Р
    Агент
    +7 (986) Показать номер
    Посмотреть контакты
    Офис в Москва ул. Годовикова, 9С31 (955 м) - Фото 1
    Офис в Москва ул. Годовикова, 9С31 (955 м) - Фото 2
    3-й этаж, всего 4 этажа

    Бизнес-парк находится в восьми минутах пешком от метро Алексеевская. Удобный заезд и выезд на проспект Мира и Третье транспортное кольцо определяют хорошую транспортную доступность здания для автомобилистов.Налоговая: 17. Лифты: Есть. Вентиляция: Приточно-вытяжная....
    • 3/4 эт.
    1 776 778 Р
    Агент
    +7 (933) Показать номер
    Посмотреть контакты
    Офис в Москва ул. Земляной Вал, 9 (280 м) - Фото 1
    Офис в Москва ул. Земляной Вал, 9 (280 м) - Фото 2
    8-й этаж, всего 14 этажей

    ВАЖНО: БЕЗ КОММИССИ ДЛЯ АРЕНДАТОРОВ, ПРЯМАЯ АРЕНДА ОТ СОБСТВЕННИКАБизнес-центр A класса Ситидел расположен по адресу Москва, ЦАО, район Басманный, ул. Земляной Вал, дом 9, в пешей доступности от метро Курская (5 мин).Характеристики здания: 14 этажей,...
    • 8/14 эт.
    1 793 400 Р
    Агент
    +7 (916) Показать номер
    Посмотреть контакты
    Офис в Москва Шмитовский проезд, 37с2 (244 м) - Фото 1
    Офис в Москва Шмитовский проезд, 37с2 (244 м) - Фото 2
    23-й этаж, всего 61 этаж

    id: 551095 Просторный офис на 23 этаже с общей площадью 244,1 кв.м. уже ждет своего арендатора Это идеальное помещение для вашего бизнеса, с прекрасным видом на город и удобным расположением в деловом центре.Офис находится в здании премиум-класса БЦ...
    • 23/61 эт.
    1 799 000 Р
    Агент
    +7 (916) Показать номер
    Посмотреть контакты
    Офис в Москва наб. Пресненская, 12 (380 м) - Фото 1
    Офис в Москва наб. Пресненская, 12 (380 м) - Фото 2
    73-й этаж, всего 95 этажей

    В аренду предлагается стильный и современный офис в башне Федерация. Из окон открывается панорамный вид на Москва Сити и город Пространство, спроектированное для эффективной работы, обеспечено максимальное количество полезной площади для ваших задач.Стильный...
    • 73/95 эт.
    1 741 667 Р
    Агент
    +7 (916) Показать номер
    Посмотреть контакты

    Не нашли подходящего объявления?

    Оставьте заявку, и наши риэлторы подберут офис в районе Москвы

    (0)