4 632 000 Р 60 140 $ или 50 760

Информация о помещении и здании

14
Этаж
14
Этажность
Развернуть
Агент
+7 (985) 633-65-61
Начать чат с агентом

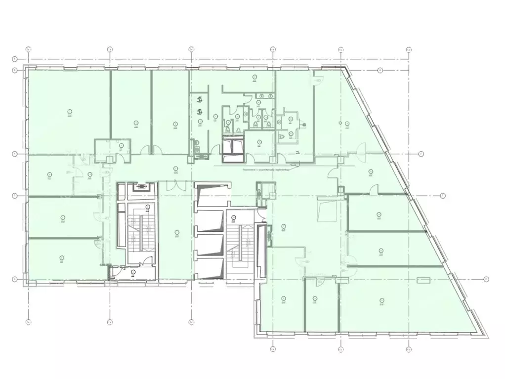
Офис в Москва Снежная ул., 26 (1544 м)

Предлагаем в прямую аренду помещение под офис класса B+ общей площадью 1544 квадратных метров в бизнес-центре.Москва, СВАО, Снежная улица, 26Удобное расположение здания для всех видов транспорта:- Автомобиль: близость транспортных магистралей, таких как Проспект Мира, Ярославское шоссе и других.- Возможность аренды парковочных мест.- Ближайшее метро: буквально 1 мин пешком от метро Свиблово Офис класса B+:- Помещение с отделкой, готово к въезду- Вентиляция: Приточно-вытяжная вентиляция - Кондиционирование: центральное - Презентабельный центральный ресепшн- Круглосуточная охрана и видеонаблюдение- Развитая инфраструктура внутри зданияВозможность заключения контракта в соответствии с 44ФЗ по госзакупкам.Что еще можно узнать о предложении: 1. Мы отправим Вам подробную презентацию с планировкой и фотографиями в течение 10 минут после звонка, чтобы Вы могли поделиться информацией с руководством или с коллегами. 2. Ответим на любые Ваши вопросы, готовы обсуждать любые предложения по коммерческим условиям аренды помещения. 3. Оперативно организуем просмотр помещения с менеджерами на объекте или подготовим виртуальный тур. Вы можете позвонить нам в любое время. Мы ответим на Ваши вопросы по будням до 19:00, а поздно вечером или в выходные зафиксируем Ваш контакт и перезвоним в рабочее время.

Читать полностью
    Позвонить Написать
    4 632 000 Р60 140 $ или 50 760
    Агент
    +7 (985) 633-65-61
    Начать чат с агентом
    Похожие предложения
    Офис в Москва Сколковское ш., 43 (655 м) - Фото 1
    Офис в Москва Сколковское ш., 43 (655 м) - Фото 2
    4-й этаж, всего 6 этажей

    Аренда офиса 655 кв. м в бизнес-парке Сколково Парк (класс A).Этаж: 4.Отделка - с отделкойТип планировки - смешанная.Мокрые точки - даПолная ставка аренды - за кв. м/год. НДС включен, эксплуатация включенаМесячный арендный платеж/месяц.Коммунальные...
    • 4/6 эт.
    4 661 417 Р
    Агент
    +7 (985) Показать номер
    Посмотреть контакты
    Офис в Москва Новослободская ул., 16 (576 м) - Фото 1
    Офис в Москва Новослободская ул., 16 (576 м) - Фото 2
    2-й этаж, всего 8 этажей

    ПЛАТИМ АГЕНТАМ. Поможем с планом рассадки, ремонтом, мебелью. Торгово-офисный комплекс расположен у входа в станцию метро Менделеевская. Транспортная доступность обеспечена близостью к Тверской улице, ТТК и Садовому Кольцу. Презентабельная входная группа...
    • 2/8 эт.
    4 608 000 Р
    Агент
    +7 (933) Показать номер
    Посмотреть контакты
    Офис в Москва ул. Можайский Вал, 8 (784 м) - Фото 1
    Офис в Москва ул. Можайский Вал, 8 (784 м) - Фото 2
    4-й этаж, всего 14 этажей

    Офисное помещение 784.3 кв. м в бизнес-центре Атлантик .Округ: Западный (ЗАО). Район: Дорогомилово. Ближайшие станции метро: Киевская, Студенческая, Деловой центр, Москва-Сити. Характеристики:- Класс: A; - Размер типового этажа: 1600; - Арендопригодная...
    • 4/14 эт.
    4 625 018 Р
    Агент
    +7 (915) Показать номер
    Посмотреть контакты
    Офис в Москва ул. Обручева, 23С1 (985 м) - Фото 1
    Офис в Москва ул. Обручева, 23С1 (985 м) - Фото 2
    3-й этаж, всего 13 этажей

    Аренда офиса 985.2 кв. м в бизнес-центре GEOLOG (геолог) (класс A).Этаж: 3.Отделка - с отделкойТип планировки - open-space.Вход - общий с улицыМокрые точки - даПолная ставка аренды - за кв. м/год. НДС включен, эксплуатация включенаМесячный арендный...
    • 3/13 эт.
    4 646 860 Р
    Агент
    +7 (985) Показать номер
    Посмотреть контакты
    Офис в Москва Ленинградский просп., 36с41 (373 м) - Фото 1
    Офис в Москва Ленинградский просп., 36с41 (373 м) - Фото 2
    4-й этаж, всего 23 этажа

    ID: L13046Офисное помещение с отделкойПлощадь: 373.0мЭтаж: 4Может использоваться под коворкинг О здании:Арена парк. Класс A . Год постройки: 2020. Бизнес-центр Арена класса А является частью городского квартала ВТБ Арена парк . Рациональная планировка...
    • 4/23 эт.
    4 526 200 Р
    Агент
    +7 (923) Показать номер
    Посмотреть контакты

    Не нашли подходящего объявления?

    Оставьте заявку, и наши риэлторы подберут офис в районе Москвы

    (0)