Россия, Москва, наб. Пресненская, 6с2
700 000 Р 8 730 $ или 7 610

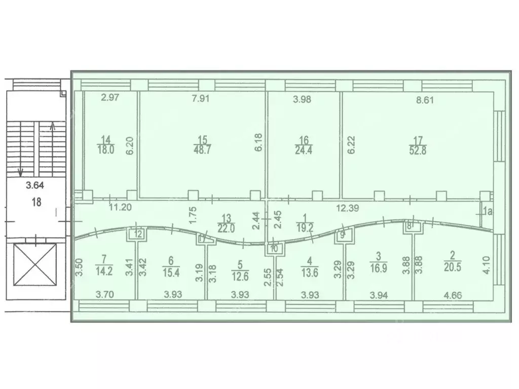
Информация о помещении и здании

55
Этаж
60
Этажность
Развернуть
Агент
+7 (989) 048-35-61
Начать чат с агентом

Офис в Москва наб. Пресненская, 6с2 (120 м)

Сдается в аренду офисное помещение на 55 этаже в МФК Империя, А класса, который находится по адресу: Пресненская наб., д. 6, стр. 2. Шаговая доступность от м. Деловой Центр, Выставочная. Удобный выезд на ТТК, Кутузовский проспект, Краснопресненскую набережную, улицу Новый Арбат. До Садового кольца примерно 2 км.В помещении качественная офисная отделка, смешанная планировка. Центральная система кондиционирования и приточно-вытяжная система вентиляции. В наличии подземная парковка ( в месяц за м/место).Условия сделки подлежат обсуждению.

Читать полностью
    Позвонить Написать
    700 000 Р8 730 $ или 7 610
    Агент
    +7 (989) 048-35-61
    Начать чат с агентом
    Похожие предложения
    Офис в Москва наб. Пресненская, 12 (185 м) - Фото 1
    Офис в Москва наб. Пресненская, 12 (185 м) - Фото 2
    14-й этаж, всего 101 этаж

    Бизнес-центр Башня Федерация класса AПлощадь: 185 м2Арендная ставка: 44 756,. за м2 в годСтоимость площади в месяц: 690 000,.Система налогообложения: УСНГотовность: готово к въездуЭтаж: 14Статус: свободенХарактеристики зданияАдрес: Пресненская набережная,...
    • 14/101 эт.
    690 000 Р
    Агент
    +7 (911) Показать номер
    Посмотреть контакты
    Офис в Москва просп. Вернадского, 29 (380 м) - Фото 1
    Офис в Москва просп. Вернадского, 29 (380 м) - Фото 2
    17-й этаж, всего 23 этажа

    БЕЗ КОМИССИИ БЦ класса B Лето . Сдаётся под офис блок (11 кабинетов, с/у) на 17-м этаже площадью 380 кв.м. Высококачественная офисная отделка. Кондиционер (сплит), вентиляция. Есть охрана.УСН, эксплуатационные расходы включены. Проспект Вернадского,...
    • 17/23 эт.
    699 992 Р
    Агент
    +7 (917) Показать номер
    Посмотреть контакты
    Офис в Москва ул. Ленинская Слобода, 19 (277 м) - Фото 1
    Офис в Москва ул. Ленинская Слобода, 19 (277 м) - Фото 2
    3-й этаж, всего 7 этажей

    Уважаемый Арендатор, предлагаем Вам арендовать в БЦ Омега Плаза ( Omega Plaza ) офис 277.2 м на 3 этаже на выгодных условиях.Планировка - смешанная. Приточно-вытяжная вентиляция. Центральное кондиционирование. Электрическая мощность: 75Вт/м. Интернет,...
    • 3/7 эт.
    704 550 Р
    Агент
    +7 (985) Показать номер
    Посмотреть контакты
    Офис в Москва Петровский бул., 5С1 (230 м) - Фото 1
    Офис в Москва Петровский бул., 5С1 (230 м) - Фото 2
    2-й этаж, всего 4 этажа

    Сдается в аренду офисное помещение на 2 этаже в особняке В класса, который находится по адресу: Петровский бульвар, д. 5, стр. 1. Без комиссии для Арендатора ЛОКАЦИЯ: Шаговая доступность от станций метро Чеховская, Трубная, Цветной бульвар. Удобный выезд...
    • 2/4 эт.
    690 000 Р
    Агент
    +7 (989) Показать номер
    Посмотреть контакты
    Офис в Москва Шереметьевская ул., 47 (282 м) - Фото 1
    Офис в Москва Шереметьевская ул., 47 (282 м) - Фото 2
    2-й этаж, всего 6 этажей

    Офисное помещение 282.3 кв. м в бизнес-центре Шереметьевская 47 . Объект скоро освободится. Успейте забронировать на выгодных условиях. Готовность ко въезду уточняется по запросу. Округ: Северо-Восточный (СВАО). Район: Марьина Роща. Ближайшие станции...
    • 2/6 эт.
    705 750 Р
    Агент
    +7 (915) Показать номер
    Посмотреть контакты

    Не нашли подходящего объявления?

    Оставьте заявку, и наши риэлторы подберут офис в районе Москвы

    (0)