2 429 600 Р 31 340 $ или 26 780

Информация о помещении и здании

2
Этаж
8
Этажность
Развернуть
Агент
+7 (925) 820-61-37
Начать чат с агентом

Офис (534 м)

Сдается в долгосрочную прямую аренду офисное помещение класса B площадью 534 квадр. метров в бизнес-центре.Москва, ЦАО, Цветной бульвар, 30 с1Удобное расположение в пределах Садового кольца:- Возможность аренды парковочных мест.- Ближайшее метро: от метро Цветной бульвар всего 5 мин пешком Офис класса B:- Помещение с отделкой, готово к въезду- Вентиляция: Приточно-вытяжная вентиляция - Кондиционирование: сплит-системы Если предложение предварительно Вам подходит: 1. Мы подготовили презентацию с информацией о помещении, фотографиями и планировкой, чтобы Вы могли поделиться ей с коллегами или руководством. Попросите об этом нашего менеджера по телефону в объявлении. 2. Задайте любые вопросы менеджеру по телефону, готовы обсуждать любые предложения по финансовым условиям договора аренды. 3. Покажем помещение в удобное для Вас время с менеджером в здании, при необходимости подготовим виртуальный тур. Звоните нам в любое время. По будням мы сможем ответить на Ваши вопросы до 19:00. В выходные или вечернее время мы передадим Ваш контакт нашему менеджеру по аренде. НОМЕР ОБЪЯВЛЕНИЯ: №1374633

Читать полностью
    Позвонить Написать
    2 429 600 Р31 340 $ или 26 780
    Агент
    +7 (925) 820-61-37
    Начать чат с агентом
    Похожие предложения
    Офис в Москва Ленинский просп., 119А (829 м) - Фото 1
    Офис в Москва Ленинский просп., 119А (829 м) - Фото 2
    4-й этаж, всего 8 этажей

    Экономьте время и деньги: отрисуем планировку под вас бесплатно, с любым количеством правок. Предлагаем в аренду Офис в бизнес-центре Ленинский по адресу: Москва, Ленинский проспект, 119А.Рабочих мест: от 104 до 184*.Площадь: 829 м2.Планировка: смешанная.Состояние:...
    • 4/8 эт.
    2 358 667 Р
    Агент
    +7 (980) Показать номер
    Посмотреть контакты
    Офис в Москва ул. Гиляровского, 65С1 (1414 м) - Фото 1
    Офис в Москва ул. Гиляровского, 65С1 (1414 м) - Фото 2
    5-й этаж, всего 5 этажей

    Экономьте время и деньги: отрисуем планировку под вас бесплатно, с любым количеством правок. Предлагаем в аренду Офис в бизнес-центре ул. Гиляровского, 65 с1, 2, 4, 5 по адресу: Москва, улица Гиляровского, 65с1.Рабочих мест: от 177 до 314*.Площадь:...
    • 5/5 эт.
    2 325 167 Р
    Агент
    +7 (980) Показать номер
    Посмотреть контакты
    Офис в Москва ул. Гиляровского, 65С1 (1409 м) - Фото 1
    Офис в Москва ул. Гиляровского, 65С1 (1409 м) - Фото 2
    5-й этаж, всего 5 этажей

    Экономьте время и деньги: отрисуем планировку под вас бесплатно, с любым количеством правок. Предлагаем в аренду Офис в бизнес-центре ул. Гиляровского, 65 с1, 2, 4, 5 по адресу: Москва, улица Гиляровского, 65с1.Рабочих мест: от 177 до 313*.Площадь:...
    • 5/5 эт.
    2 317 667 Р
    Агент
    +7 (980) Показать номер
    Посмотреть контакты
    Офис в Москва Варшавское ш., 1С1-2 (752 м) - Фото 1
    Офис в Москва Варшавское ш., 1С1-2 (752 м) - Фото 2
    5-й этаж, всего 7 этажей

    Предлагается к аренде офисное помещение в БЦ W-Plaza.Площадь Офиса - 752 м (5/7 этаж).Панорамные окна, живописные виды на Москва-реку и Симоновскую набережную, ЖК Зил-Арт. Планировка смешанная: состоит из зоны open-space и нескольких кабинетов, изолированный...
    • 5/7 эт.
    2 350 000 Р
    Агент
    +7 (923) Показать номер
    Посмотреть контакты
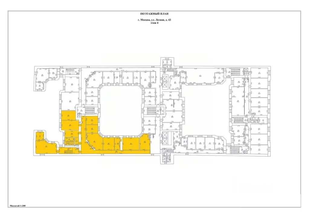
    Офис в Москва Лесная ул., 43 (410 м) - Фото 1
    Офис в Москва Лесная ул., 43 (410 м) - Фото 2
    4-й этаж, всего 7 этажей

    ВАЖНО: БЕЗ КОММИССИ ДЛЯ АРЕНДАТОРОВ, ПРЯМАЯ АРЕНДА ОТ СОБСТВЕННИКАБизнес-центр B+ класса Лесной расположен по адресу Москва, ЦАО, район Тверской, Лесная ул., дом 43, в пешей доступности от метро Белорусская (6 мин), метро Менделеевская (7 мин).Характеристики...
    • 4/7 эт.
    2 425 834 Р
    Агент
    +7 (916) Показать номер
    Посмотреть контакты

    Не нашли подходящего объявления?

    Оставьте заявку, и наши риэлторы подберут офис в районе Москвы

    (0)