Россия, Москва, Большой Краснопрудный тупик, 8/12
180 000 Р 2 300 $ или 1 950

Информация о помещении и здании

1
Этаж
5
Этажность
Развернуть
Агент
+7 (989) 601-82-82
Начать чат с агентом

Офис (100 м)

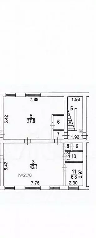
АРЕНДА ОТ 11 МЕС. Жилой дом. Сдаётся под офис, магазин или салон блок с санузлом на первом этаже площадью 100 кв.м. Высота потолка 2.7 м. Стандартная отделка, требуется косметический ремонт. Электрическая мощность 30 кВт.НДС включен. Лот № 244776. С риелторами не сотрудничаем

Читать полностью
    Позвонить Написать
    180 000 Р2 300 $ или 1 950
    Агент
    +7 (989) 601-82-82
    Начать чат с агентом
    Похожие предложения
    Офис в Москва Большой Краснопрудный туп., 8/12 (100 м) - Фото 1
    Офис в Москва Большой Краснопрудный туп., 8/12 (100 м) - Фото 2
    1-й этаж, всего 5 этажей

    БЕЗ КОМИССИИ Жилой дом. Сдаётся под офис, магазин или салон блок с санузлом на первом этаже площадью 100 кв.м. Стандартная отделка, требуется косметический ремонт. Электрическая мощность 30 кВт.НДС включен. Большой Краснопрудный тупик, 8/12, 5 минут...
    • 1/5 эт.
    180 000 Р
    Агент
    +7 (915) Показать номер
    Посмотреть контакты
    Офис в Москва Николоямская ул., 52С1 (46 м) - Фото 1
    Офис в Москва Николоямская ул., 52С1 (46 м) - Фото 2
    1-й этаж, всего 2 этажа

    ЛотПредложение от Собственника Предлагается в аренду офисный блок площадью 46.2 кв.м на 1-ом этаже Офисного здания класса Б. Офис открытой планировки после косметического ремонта и готовый к въезду. Офис расположен в 11-ти минутах ходьбы до станции м....
    • 1/2 эт.
    170 001 Р
    Агент
    +7 (986) Показать номер
    Посмотреть контакты
    Офис (49 м) - Фото 1
    Офис (49 м) - Фото 2
    2-й этаж, всего 2 этажа

    АРЕНДА ОТ 11 МЕС. Торговый центр, первая линия домов, рядом с метро. Сдаётся под офис или магазин (кроме продуктового) помещение свободной планировки на 2-м этаже площадью 49 кв.м. Стандартная отделка.УСН. Лот № 242208. С риелторами не сотрудничаем
    • 2/2 эт.
    180 002 Р
    Агент
    +7 (989) Показать номер
    Посмотреть контакты
    Офис (126 м) - Фото 1
    Офис (126 м) - Фото 2
    1-й этаж, всего 24 этажа

    АРЕНДА ОТ 11 МЕС. Жилой дом бизнес-класса, первая линия домов. Сдаётся блок с санузлом на первом этаже площадью 126 кв.м с отдельным входом с улицы. Высота потолка 4.1 м. Новое помещение под чистовую отделку (Shell Core). Электрическая мощность 29 кВт.УСН....
    • 1/24 эт.
    189 693 Р
    Агент
    +7 (989) Показать номер
    Посмотреть контакты
    Офис (37 м) - Фото 1
    Офис (37 м) - Фото 2
    1-й этаж, всего 12 этажей

    АРЕНДА ОТ 11 МЕС. Жилой дом бизнес-класса, первая линия домов. Сдаётся комната на первом этаже площадью 37 кв.м. Высота потолка 4 м. Стандартная отделка. Электрическая мощность 15 кВт.УСН. Лот № 245160. С риелторами не сотрудничаем
    • 1/12 эт.
    184 001 Р
    Агент
    +7 (989) Показать номер
    Посмотреть контакты

    Не нашли подходящего объявления?

    Оставьте заявку, и наши риэлторы подберут офис в районе Москвы

    (0)