1 100 000 Р 14 160 $ или 12 060

Информация о помещении и здании

1
Этаж
4
Этажность
Развернуть
Агент
+7 (989) 048-35-61
Начать чат с агентом

Офис в Москва Островной проезд, 12К1 (412 м)

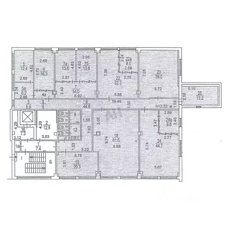
Сдается в аренду офисное помещение на 1-2 этажах в ЖК Остров Фантазий, А класса, который находится по адресу: Островной проезд, д 12 к 1. Без комиссии для Арендатора ЛОКАЦИЯ:- Ближайшие станции метро: м. Молодежная, м. Крылатское и м. Терехово. - Близость транспортных магистралей, таких как Проспект Маршала Жукова и других.ПОМЕЩЕНИЕ:- В помещении стандартная офисная отделка, смешанная планировка, два отдельных входа, панорамное остекление, стеклянные перегородки, 5-ти метровые потолки, 80 помещения занимают окна.- Помещение двухуровневое: 9 офисных помещений, разделенные стеклянными перегородками, кухня со встроенной техникой, два санузла, две гардеробные, два тамбура, холл, кладовая, коридор и технические помещения.- Центральная система кондиционирования и приточно-вытяжная система вентиляции.- В наличии наземная парковка.- Арендные каникулы и ставка подлежат обсуждению.Звоните, отвечаем по будням с 09:00 до 18:00, а в другое время передадим Ваш контакт нашему менеджеру

Читать полностью
    Позвонить Написать
    1 100 000 Р14 160 $ или 12 060
    Агент
    +7 (989) 048-35-61
    Начать чат с агентом
    Похожие предложения
    Офис в Москва Островной проезд, 12К1 (412 м) - Фото 1
    Офис в Москва Островной проезд, 12К1 (412 м) - Фото 2
    1-й этаж, всего 4 этажа

    Аренда офиса 412 кв.м с отдельным входом недалеко от метро. Состояние отделки — готово к въезду.Договор аренды заключаете с собственником помещения. Без надбавки к итоговой стоимости аренды.В арендную ставку включено: - эксплуат.расходы.В арендную ставку...
    • 1/4 эт.
    1 100 000 Р
    Агент
    +7 (932) Показать номер
    Посмотреть контакты
    Офис в Москва Островной проезд, 12К1 (412 м) - Фото 1
    Офис в Москва Островной проезд, 12К1 (412 м) - Фото 2
    1-й этаж, всего 4 этажа

    Показ в удобное время. С АГЕНТАМИ РАБОТАЕМ И ПЛАТИМ. Жилой дом расположенный в Западном округе Москвы, в одном км от Рублевского шоссе в закрытом элитном посёлке Мир Фантазий район Крылатское в лесопарковой зоне.Налоговая: 31. Лифты: Есть. Вентиляция:...
    • 1/4 эт.
    1 100 000 Р
    Агент
    +7 (933) Показать номер
    Посмотреть контакты
    Офис в Москва 2-й Хорошевский проезд, 7с1В (716 м) - Фото 1
    Офис в Москва 2-й Хорошевский проезд, 7с1В (716 м) - Фото 2
    2-й этаж, всего 3 этажа

    БЕЗ КОМИССИИ Складской комплекс. Сдаётся под офис или тёплый склад блок с санузлом на 2-м этаже площадью 716 кв.м. Стандартная отделка. Есть охрана.НДС включен. 2-й Хорошёвский проезд, 7с1В, 15 минут пешком от метро Беговая. ЛОТ 232429
    • 2/3 эт.
    1 074 000 Р
    Агент
    +7 (915) Показать номер
    Посмотреть контакты
    Офис в Москва 2-й Хорошевский проезд, 7с1В (687 м) - Фото 1
    Офис в Москва 2-й Хорошевский проезд, 7с1В (687 м) - Фото 2
    2-й этаж, всего 3 этажа

    БЕЗ КОМИССИИ Складской комплекс. Сдаётся под офис или тёплый склад блок с санузлом на 2-м этаже площадью 687 кв.м. Стандартная отделка. Есть охрана.НДС и эксплуатационные расходы включены. 2-й Хорошёвский проезд, 7с1В, 15 минут пешком от метро Беговая....
    • 2/3 эт.
    1 030 500 Р
    Агент
    +7 (915) Показать номер
    Посмотреть контакты
    Офис в Москва ул. Бутырский Вал, 68/70С2 (434 м) - Фото 1
    Офис в Москва ул. Бутырский Вал, 68/70С2 (434 м) - Фото 2
    4-й этаж, всего 8 этажей

    Показ в удобное время. С АГЕНТАМИ РАБОТАЕМ И ПЛАТИМ. БЦ расположен на первой линии домов по улице Бутырский вал. Транспортная доступность обеспечена близостью к ТТК и Ленинградскому проспекту. Шаговая доступность от 3 станций метро - Белорусская, Савеловская...
    • 4/8 эт.
    1 085 000 Р
    Агент
    +7 (933) Показать номер
    Посмотреть контакты

    Не нашли подходящего объявления?

    Оставьте заявку, и наши риэлторы подберут офис в районе Москвы

    (0)