238 000 Р 3 060 $ или 2 610

Информация о помещении и здании

2
Этаж
4
Этажность
Развернуть
Агент
+7 (932) 720-03-65
Начать чат с агентом

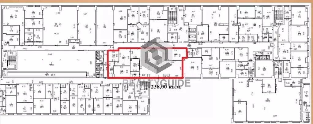
Офис в Москва Высоковольтный проезд, 1С49 (238 м)

Аренда офисного блока 238 кв.м. Состояние отделки — готово к въезду.Помещение доступно для аренды с 31.12.2025.Подписание договора аренды напрямую с владельцем помещения. Работаем без комиссии, процентов и надбавок.В арендную ставку включено: - НДС,- эксплуат.расходы.В арендную ставку не входит: коммунальные услуги, электроэнергия, уборка офиса, уборка общих мест.• планировка в офисе: смешанная;• в офисе имеется: кухня;• кондиционер: в каждом офисе;• вентиляция: есть;• условия договора: 11 мес. предоплата за первый и последний месяц;• налогообложение: НДС или УСН;• вход в здание: для арендаторов по документу, для клиентов по документу;• интернет провайдеры: Мастертелл, НьюКомПорт, Весткол, МТС, Стартелл;• парковка: на территории БЦ;• здание работает: круглосуточно;Показы с 10.00 до 18.00 по будням.Поможем провести переговоры по условиям аренды, удовлетворив все стороны.Звоните. Мы оперативно организуем просмотр помещения в удобную для вас дату и ответим на все интересующие вопросы.Для вас наши услуги бесплатны, их оплачивает БЦ.Описание бизнес-центра:На расстоянии транспортной досягаемости от МКАД и Алтуфьевского шоссе, а также от станций подземки Бибирево и Отрадноеазместился бизнес-центр Вольт Центр , такое весьма удачное с транспортной точки зрения расположение. Безопасность обеспечивается наличием контрольно-пропускного режима, а также круглосуточной охраной. Несомненно, аренда офиса в Вольт Центр это вполне надежный старт для современного и эффективного бизнеса.

Читать полностью
    Позвонить Написать
    238 000 Р3 060 $ или 2 610
    Агент
    +7 (932) 720-03-65
    Начать чат с агентом
    Похожие предложения
    Офис в Москва Высоковольтный проезд, 1С49 (238 м) - Фото 1
    Офис в Москва Высоковольтный проезд, 1С49 (238 м) - Фото 2
    2-й этаж, всего 3 этажа

    Бизнес-центр Вольт-Центр класса B+Площадь: 238 м2Арендная ставка:. за м2 в год включая НДССтоимость площади в месяц: 238 000,. включая НДССистема налогообложения: НДСГотовность: готово к въездуЭтаж: 2Планировка: открытаяНаличие с/у: , ЕстьСтатус: свободенХарактеристики...
    • 2/3 эт.
    238 000 Р
    Агент
    +7 (911) Показать номер
    Посмотреть контакты
    Офис в Москва Высоковольтный проезд, 1С49 (238 м) - Фото 1
    Офис в Москва Высоковольтный проезд, 1С49 (238 м) - Фото 2
    2-й этаж, всего 3 этажа

    Лот: 418895, бизнес-центр Вольт-Центр. БЕЗ КОМИССИИ Сдается в аренду офис площадью 238 м2 на 2 этаже в бизнес-центре класса B+ Вольт-Центр, расположенном в 10 минутах транспортом от метро Отрадное. Планировка: смешанная. Состояние помещения: с ремонтом....
    • 2/3 эт.
    238 000 Р
    Агент
    +7 (917) Показать номер
    Посмотреть контакты
    Офис в Москва ул. Сущевский Вал, 49 (60 м) - Фото 1
    Офис в Москва ул. Сущевский Вал, 49 (60 м) - Фото 2
    3-й этаж, всего 7 этажей

    Офис в БЦ Джаз | 60 м | м. Марьина РощаСдаётся светлый офис площадью 60 м с собственной кухней в современном бизнес-центре Джаз.Преимущества:Потолки 4,2 м — ощущение пространства и светаЮридический адрес предоставляетсяАрендные каникулы предоставляютсяУдобная...
    • 3/7 эт.
    240 000 Р
    Агент
    +7 (989) Показать номер
    Посмотреть контакты
    Офис (60 м) - Фото 1
    Офис (60 м) - Фото 2
    3-й этаж, всего 7 этажей

    АРЕНДА ОТ 11 МЕС. БЦ класса B+ «Jazz-квартал, корпус Louis , первая линия домов, рядом с метро. Сдаётся под офис или салон помещение свободной планировки с санузлом на 3-м этаже площадью 60 кв.м. Высота потолка 4.6 м. Новое помещение под чистовую отделку...
    • 3/7 эт.
    240 000 Р
    Агент
    +7 (985) Показать номер
    Посмотреть контакты
    Офис в Москва проезд 3-й Марьиной рощи, 40С1 (70 м) - Фото 1
    Офис в Москва проезд 3-й Марьиной рощи, 40С1 (70 м) - Фото 2
    6-й этаж, всего 9 этажей

    Лот 992682 Предложение от Собственника Сдаем офис 70 кв. м., рядом со ст. м. Марьина Роща (СВАО) с новым ремонтом и прекрасным видом Планировка открытая. Ремонт с открытыми потолками , Армстронга у нас нет В помещении много дневного света Большие панорамные...
    • 6/9 эт.
    245 000 Р
    Агент
    +7 (986) Показать номер
    Посмотреть контакты

    Не нашли подходящего объявления?

    Оставьте заявку, и наши риэлторы подберут офис в районе Москвы

    (0)