6 132 500 Р 78 390 $ или 66 590

Информация о помещении и здании

9
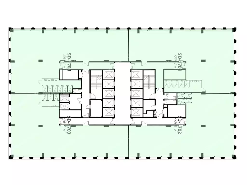
Этаж
27
Этажность
Развернуть
Агент
+7 (966) 172-51-09
Начать чат с агентом

Офис (995 м)

Экономьте время и деньги: отрисуем планировку под вас бесплатно, с любым количеством правок. Предлагаем в аренду Офис в бизнес-центре Павелецкая Плаза по адресу: Москва, Павелецкая площадь, 2с1.Рабочих мест: от 125 до 221*.Площадь: 995 м2.Планировка: смешанная.Состояние: готовность к въезду с.Ставка (включая эксплуатацию): за м2/год.Арендная плата:/мес.Налог: не включая НДС.Коммунальные расходы: оплачиваются по факту.Этаж: 2, 9 из 27.Тип аренды: Прямая аренда.Охрана: круглосуточная охрана здания.Метро рядом: м. Павелецкая в 1 минуте пешком, м. Серпуховская в 8 минутах пешком, м. Добрынинская в 11 минутах пешком. Этот адрес обслуживает налоговая №5. Парковка подземная, наземная.Системы здания:Вентиляция: приточно-вытяжная.Кондиционирование: центральное.Пожарная сигнализация: спринклерная система.Этот лот состоит из нескольких помещений: 172 кв. м., 461 кв. м. и 362 кв. м.>ID объекта - 024246.*Количество рабочих мест рассчитано автоматически: от 4,5 м2 на человека до 8 м2 на человека.Почему клиенты доверяют нам?1. 12000 объектов коммерческой недвижимости Москвы и Области, включая эксклюзивные и внерыночные.2. Работаем без комиссии и скрытых платежей. Вы заключаете договор напрямую с собственником.3. Профессиональное сопровождение: консультации на каждом этапе, помощь в подборе оптимального решения для вашего бизнеса.4. 17 лет опыта в коммерческой недвижимости.Не тратьте время, доверьте поиски нам Позвоните, и мы оперативно организуем просмотр или подготовим подборку объектов.

Читать полностью
    Позвонить Написать
    6 132 500 Р78 390 $ или 66 590
    Агент
    +7 (966) 172-51-09
    Начать чат с агентом
    Похожие предложения
    Офис в Москва Кожевническая ул., 14с5 (620 м) - Фото 1
    Офис в Москва Кожевническая ул., 14с5 (620 м) - Фото 2
    1-й этаж, всего 3 этажа

    Бизнес-центр Black and White (Блэк энд Вайт) класса AПлощадь: 620 м2Арендная ставка:. за м2 в год включая НДССтоимость площади в месяц:,. включая НДССистема налогообложения: НДСГотовность: готово к въездуЭтаж: 1Планировка: открытаяНаличие с/у: , ЕстьСтатус:...
    • 1/3 эт.
    6 076 000 Р
    Агент
    +7 (911) Показать номер
    Посмотреть контакты
    Офис в Москва ул. Академика Королева, 12 (2000 м) - Фото 1
    Офис в Москва ул. Академика Королева, 12 (2000 м) - Фото 2
    8-й этаж, всего 13 этажей

    Телецентр Останкино находится в одноименном районе Северо-Восточного административного округа. Недалеко находятся станции метро Бутырская и Фонвизинская.Налоговая: 17. Лифты: Есть. Вентиляция: Приточно-вытяжная. Кондиционирование: Центральное. Безопасность:...
    • 8/13 эт.
    6 000 000 Р
    Агент
    +7 (933) Показать номер
    Посмотреть контакты
    Офис в Москва просп. Лихачева, 5 (1606 м) - Фото 1
    Офис в Москва просп. Лихачева, 5 (1606 м) - Фото 2
    2-й этаж, всего 6 этажей

    Офисное помещение 1 606.4 кв. м в бизнес-центре Технопарк ЗИЛ Комплекс Б . Built-to-Suit. Готовность ко въезду уточняется по запросу. Округ: Южный (ЮАО). Район: Даниловский. Ближайшие станции метро: ЗИЛ, Тульская. Характеристики:- Класс: A; - Арендопригодная...
    • 2/6 эт.
    6 024 038 Р
    Агент
    +7 (915) Показать номер
    Посмотреть контакты
    Офис в Москва Дмитровский проезд, вл1Г (1473 м) - Фото 1
    Офис в Москва Дмитровский проезд, вл1Г (1473 м) - Фото 2
    17-й этаж, всего 23 этажа

    Офисное помещение 1 473.3 кв. м в бизнес-центре STONE Дмитровская . Объект на стадии активного строительства, готовность ко въезду уточняется по запросу. Округ: Северный (САО). Район: Тимирязевский. Ближайшие станции метро: Тимирязевская, Дмитровская....
    • 17/23 эт.
    6 120 089 Р
    Агент
    +7 (915) Показать номер
    Посмотреть контакты
    Офис в Москва Дмитровский проезд, вл1Г (1472 м) - Фото 1
    Офис в Москва Дмитровский проезд, вл1Г (1472 м) - Фото 2
    18-й этаж, всего 23 этажа

    Офисное помещение 1 472 кв. м в бизнес-центре STONE Дмитровская . Объект на стадии активного строительства, готовность ко въезду уточняется по запросу. Округ: Северный (САО). Район: Тимирязевский. Ближайшие станции метро: Тимирязевская, Дмитровская....
    • 18/23 эт.
    6 180 928 Р
    Агент
    +7 (915) Показать номер
    Посмотреть контакты

    Не нашли подходящего объявления?

    Оставьте заявку, и наши риэлторы подберут офис в районе Москвы

    (0)