Россия, Москва, ул. Авиаконструктора Сухого, 2к2
18 375 000 Р 235 900 $ или 200 000

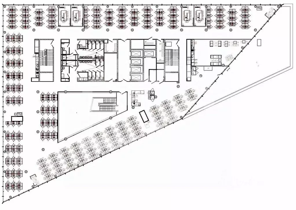
Информация о помещении и здании

3
Этаж
24
Этажность
Развернуть
Агент
+7 (980) 417-92-31
Начать чат с агентом

Офис в Москва ул. Авиаконструктора Сухого, 2к2 (4900 м)

Экономьте время и деньги: отрисуем планировку под вас бесплатно, с любым количеством правок. Предлагаем в аренду Офис в бизнес-центре Лица по адресу: Москва, улица Авиаконструктора Сухого, 2к2.Рабочих мест: от 613 до 1088*.Площадь: 4 900 м2.Планировка: смешанная.Состояние: готово к въезду.Ставка (включая эксплуатацию): за м2/год.Арендная плата:/мес.Налог: включая НДС.Коммунальные расходы: оплачиваются по факту.Этаж: 3 из 24.Тип аренды: Субаренда.Охрана: круглосуточная охрана здания.Метро рядом: м. ЦСКА в 8 минутах пешком, м. Динамо в 13 минутах пешком, м. Петровский Парк в 13 минутах пешком. Этот адрес обслуживает налоговая 14. Парковка наземная, стихийная, подземная.Системы здания:Вентиляция: приточно-вытяжная.Кондиционирование: центральное.Пожарная сигнализация: датчики пожаротушения.Этот лот состоит из нескольких помещений: 500 кв. м., 900 кв. м. и 3500 кв. м.>ID объекта - 027084.*Количество рабочих мест рассчитано автоматически: от 4,5 м2 на человека до 8 м2 на человека.Почему клиенты доверяют нам?1. 12000 объектов коммерческой недвижимости Москвы и Области, включая эксклюзивные и внерыночные.2. Работаем без комиссии и скрытых платежей. Вы заключаете договор напрямую с собственником.3. Профессиональное сопровождение: консультации на каждом этапе, помощь в подборе оптимального решения для вашего бизнеса.4. 17 лет опыта в коммерческой недвижимости.Не тратьте время, доверьте поиски нам Позвоните, и мы оперативно организуем просмотр или подготовим подборку объектов.

Читать полностью
    Позвонить Написать
    18 375 000 Р235 900 $ или 200 000
    Агент
    +7 (980) 417-92-31
    Начать чат с агентом
    Похожие предложения
    Офис в Москва ул. Авиаконструктора Микояна, 1 (1478 м) - Фото 1
    Офис в Москва ул. Авиаконструктора Микояна, 1 (1478 м) - Фото 2
    5-й этаж, всего 5 этажей

    862975 . Предлагаем в аренду офисное помещение площадью 1 478 кв. м, в бизнес-центре Obsidian Преимущества объекта:- Новый бизнес-центр класса А- Шаговая доступность от станции метро БКЛ ЦСКА (6-8 минут пешком)-Этаж: 5- Помещение предлагается с отделкой-...
    • 5/5 эт.
    18 060 000 Р
    Агент
    +7 (938) Показать номер
    Посмотреть контакты
    Офис в Москва Ленинградский просп., 37Ак4 (2550 м) - Фото 1
    Офис в Москва Ленинградский просп., 37Ак4 (2550 м) - Фото 2
    7-й этаж, всего 15 этажей

    Аренда офиса 2550 кв. м в бизнес-центре Аркус 3 (ARCUS III) (класс A).Этаж: 7.Кол-во рабочих мест - 200Отделка - с отделкойТип планировки - смешанная.Вход - общий с улицыМокрые точки - даСан. узлы - в блокеПомещение - свободно с 21.12.2025.Полная ставка...
    • 7/15 эт.
    17 467 500 Р
    Агент
    +7 (985) Показать номер
    Посмотреть контакты
    Офис (4071 м) - Фото 1
    Офис (4071 м) - Фото 2
    15-й этаж, всего 22 этажа

    Экономьте время и деньги: отрисуем планировку под вас бесплатно, с любым количеством правок. Предлагаем в аренду Офис в бизнес-центре НОВО (Новосущевский) по адресу: Москва, улица Сущёвский Вал, 18.Рабочих мест: от 509 до 904*.Площадь: 4 071 м2.Планировка:...
    • 15/22 эт.
    18 605 584 Р
    Агент
    +7 (966) Показать номер
    Посмотреть контакты
    Офис (4011 м) - Фото 1
    Офис (4011 м) - Фото 2
    14-й этаж, всего 22 этажа

    Экономьте время и деньги: отрисуем планировку под вас бесплатно, с любым количеством правок. Предлагаем в аренду Офис в бизнес-центре НОВО (Новосущевский) по адресу: Москва, улица Сущёвский Вал, 18.Рабочих мест: от 502 до 891*.Площадь: 4 011 м2.Планировка:...
    • 14/22 эт.
    18 988 250 Р
    Агент
    +7 (966) Показать номер
    Посмотреть контакты
    Офис (4049 м) - Фото 1
    Офис (4049 м) - Фото 2
    14-й этаж, всего 22 этажа

    Экономьте время и деньги: отрисуем планировку под вас бесплатно, с любым количеством правок. Предлагаем в аренду Офис в бизнес-центре НОВО (Новосущевский) по адресу: Москва, улица Сущёвский Вал, 18.Рабочих мест: от 507 до 899*.Площадь: 4 049 м2.Планировка:...
    • 14/22 эт.
    18 952 084 Р
    Агент
    +7 (966) Показать номер
    Посмотреть контакты

    Не нашли подходящего объявления?

    Оставьте заявку, и наши риэлторы подберут офис в районе Москвы

    (0)